mobile_sound +7 (930) 655-55-90

Колонны Серия 3.015-2/82

Поделиться:
Фильтр по характеристикам
Длина (мм.)
keyboard_arrow_down
мм.
мм.
Ширина (мм.)
keyboard_arrow_down
мм.
мм.
Высота (мм.)
keyboard_arrow_down
мм.
мм.
Вес (кг.)
keyboard_arrow_down
кг.
кг.
Поделиться:

Завод "Бетон365" производит колонны серии 3.015-2/82 — ключевые несущие элементы для каркасов промышленных и гражданских зданий. Эти железобетонные конструкции обеспечивают пространственную жесткость сооружений, равномерно распределяя нагрузку между этажами и значительно ускоряя монтаж объектов. Изготовленные в строгом соответствии с ГОСТ, колонны демонстрируют exceptionalную долговечность и устойчивость к агрессивным средам, что делает их оптимальным решением для строительства в условиях северо-западного региона.

В Москве и МО мы реализуем колонны серии 3.015-2/82 по конкурентной цене от производителя, с полным комплектом документов и гарантией качества. Предлагаем оперативную доставку на объект и профессиональные консультации по выбору и монтажу данных ЖБИ. Для расчета стоимости и оформления заказа — свяжитесь с нашими специалистами!

К 1-1
Колонны Серия 3.015-2/82
  • Длина 6200 мм.
  • Ширина 300 мм.
  • Высота 300 мм.
  • Вес 1400 кг.
  • Объем бетона 0,56 м3
  • Геометрический объем 0,558 м3
Цена: 11950 руб.
Подробнее
К 1-1 АтIVс
Колонны Серия 3.015-2/82
  • Длина 6200 мм.
  • Ширина 300 мм.
  • Высота 300 мм.
  • Вес 1400 кг.
  • Объем бетона 0,56 м3
  • Геометрический объем 0,558 м3
Цена: 11950 руб.
Подробнее
К 1-2 АтIVс
Колонны Серия 3.015-2/82
  • Длина 6200 мм.
  • Ширина 300 мм.
  • Высота 300 мм.
  • Вес 1400 кг.
  • Объем бетона 0,56 м3
  • Геометрический объем 0,558 м3
Цена: 11950 руб.
Подробнее
К 1-2
Колонны Серия 3.015-2/82
  • Длина 6200 мм.
  • Ширина 300 мм.
  • Высота 300 мм.
  • Вес 1400 кг.
  • Объем бетона 0,56 м3
  • Геометрический объем 0,558 м3
Цена: 11950 руб.
Подробнее
К 10-1 АтIVс
Колонны Серия 3.015-2/82
  • Длина 6200 мм.
  • Ширина 500 мм.
  • Высота 400 мм.
  • Вес 4000 кг.
  • Объем бетона 1,58 м3
  • Геометрический объем 1,24 м3
Цена: 33717 руб.
Подробнее
К 10-1
Колонны Серия 3.015-2/82
  • Длина 6200 мм.
  • Ширина 500 мм.
  • Высота 400 мм.
  • Вес 4000 кг.
  • Объем бетона 1,58 м3
  • Геометрический объем 1,24 м3
Цена: 33717 руб.
Подробнее
К 10-2
Колонны Серия 3.015-2/82
  • Длина 6200 мм.
  • Ширина 500 мм.
  • Высота 400 мм.
  • Вес 4000 кг.
  • Объем бетона 1,58 м3
  • Геометрический объем 1,24 м3
Цена: 33717 руб.
Подробнее
К 10-2 АтIVс
Колонны Серия 3.015-2/82
  • Длина 6200 мм.
  • Ширина 500 мм.
  • Высота 400 мм.
  • Вес 4000 кг.
  • Объем бетона 1,58 м3
  • Геометрический объем 1,24 м3
Цена: 33717 руб.
Подробнее
К 10-3
Колонны Серия 3.015-2/82
  • Длина 6200 мм.
  • Ширина 500 мм.
  • Высота 400 мм.
  • Вес 4000 кг.
  • Объем бетона 1,58 м3
  • Геометрический объем 1,24 м3
Цена: 33717 руб.
Подробнее
К 10-3 АтIVс
Колонны Серия 3.015-2/82
  • Длина 6200 мм.
  • Ширина 500 мм.
  • Высота 400 мм.
  • Вес 4000 кг.
  • Объем бетона 1,58 м3
  • Геометрический объем 1,24 м3
Цена: 33717 руб.
Подробнее
К 10-4
Колонны Серия 3.015-2/82
  • Длина 6200 мм.
  • Ширина 500 мм.
  • Высота 400 мм.
  • Вес 4000 кг.
  • Объем бетона 1,58 м3
  • Геометрический объем 1,24 м3
Цена: 33717 руб.
Подробнее
К 10-4 АтIVс
Колонны Серия 3.015-2/82
  • Длина 6200 мм.
  • Ширина 500 мм.
  • Высота 400 мм.
  • Вес 4000 кг.
  • Объем бетона 1,58 м3
  • Геометрический объем 1,24 м3
Цена: 33717 руб.
Подробнее
К 11-1
Колонны Серия 3.015-2/82
  • Длина 6800 мм.
  • Ширина 400 мм.
  • Высота 400 мм.
  • Вес 3600 кг.
  • Объем бетона 1,45 м3
  • Геометрический объем 1,088 м3
Цена: 30943 руб.
Подробнее
К 11-10 АтIVс
Колонны Серия 3.015-2/82
  • Длина 6800 мм.
  • Ширина 400 мм.
  • Высота 400 мм.
  • Вес 3600 кг.
  • Объем бетона 1,45 м3
  • Геометрический объем 1,088 м3
Цена: 30943 руб.
Подробнее
К 11-10
Колонны Серия 3.015-2/82
  • Длина 6800 мм.
  • Ширина 400 мм.
  • Высота 400 мм.
  • Вес 3600 кг.
  • Объем бетона 1,45 м3
  • Геометрический объем 1,088 м3
Цена: 30943 руб.
Подробнее
К 11-1 АтIVс
Колонны Серия 3.015-2/82
  • Длина 6800 мм.
  • Ширина 400 мм.
  • Высота 400 мм.
  • Вес 3600 кг.
  • Объем бетона 1,45 м3
  • Геометрический объем 1,088 м3
Цена: 30943 руб.
Подробнее
К 11-11
Колонны Серия 3.015-2/82
  • Длина 6800 мм.
  • Ширина 400 мм.
  • Высота 400 мм.
  • Вес 3600 кг.
  • Объем бетона 1,45 м3
  • Геометрический объем 1,088 м3
Цена: 30943 руб.
Подробнее
К 11-11 АтIVс
Колонны Серия 3.015-2/82
  • Длина 6800 мм.
  • Ширина 400 мм.
  • Высота 400 мм.
  • Вес 3600 кг.
  • Объем бетона 1,45 м3
  • Геометрический объем 1,088 м3
Цена: 30943 руб.
Подробнее
К 11-12
Колонны Серия 3.015-2/82
  • Длина 6800 мм.
  • Ширина 400 мм.
  • Высота 400 мм.
  • Вес 3600 кг.
  • Объем бетона 1,45 м3
  • Геометрический объем 1,088 м3
Цена: 30943 руб.
Подробнее
К 11-12 АтIVс
Колонны Серия 3.015-2/82
  • Длина 6800 мм.
  • Ширина 400 мм.
  • Высота 400 мм.
  • Вес 3600 кг.
  • Объем бетона 1,45 м3
  • Геометрический объем 1,088 м3
Цена: 30943 руб.
Подробнее
К 11-13
Колонны Серия 3.015-2/82
  • Длина 6800 мм.
  • Ширина 400 мм.
  • Высота 400 мм.
  • Вес 3600 кг.
  • Объем бетона 1,45 м3
  • Геометрический объем 1,088 м3
Цена: 30943 руб.
Подробнее
К 11-13 АтIVс
Колонны Серия 3.015-2/82
  • Длина 6800 мм.
  • Ширина 400 мм.
  • Высота 400 мм.
  • Вес 3600 кг.
  • Объем бетона 1,45 м3
  • Геометрический объем 1,088 м3
Цена: 30943 руб.
Подробнее
К 11-14
Колонны Серия 3.015-2/82
  • Длина 6800 мм.
  • Ширина 400 мм.
  • Высота 400 мм.
  • Вес 3600 кг.
  • Объем бетона 1,45 м3
  • Геометрический объем 1,088 м3
Цена: 30943 руб.
Подробнее
К 11-14 АтIVс
Колонны Серия 3.015-2/82
  • Длина 6800 мм.
  • Ширина 400 мм.
  • Высота 400 мм.
  • Вес 3600 кг.
  • Объем бетона 1,45 м3
  • Геометрический объем 1,088 м3
Цена: 30943 руб.
Подробнее
К 11-15
Колонны Серия 3.015-2/82
  • Длина 6800 мм.
  • Ширина 400 мм.
  • Высота 400 мм.
  • Вес 3600 кг.
  • Объем бетона 1,45 м3
  • Геометрический объем 1,088 м3
Цена: 30943 руб.
Подробнее
К 11-15 АтIVс
Колонны Серия 3.015-2/82
  • Длина 6800 мм.
  • Ширина 400 мм.
  • Высота 400 мм.
  • Вес 3600 кг.
  • Объем бетона 1,45 м3
  • Геометрический объем 1,088 м3
Цена: 30943 руб.
Подробнее
К 11-2 АтIVс
Колонны Серия 3.015-2/82
  • Длина 6800 мм.
  • Ширина 400 мм.
  • Высота 400 мм.
  • Вес 3600 кг.
  • Объем бетона 1,45 м3
  • Геометрический объем 1,088 м3
Цена: 30943 руб.
Подробнее
К 11-2
Колонны Серия 3.015-2/82
  • Длина 6800 мм.
  • Ширина 400 мм.
  • Высота 400 мм.
  • Вес 3600 кг.
  • Объем бетона 1,45 м3
  • Геометрический объем 1,088 м3
Цена: 30943 руб.
Подробнее
К 11-4 АтIVс
Колонны Серия 3.015-2/82
  • Длина 6800 мм.
  • Ширина 400 мм.
  • Высота 400 мм.
  • Вес 3600 кг.
  • Объем бетона 1,45 м3
  • Геометрический объем 1,088 м3
Цена: 30943 руб.
Подробнее
К 11-4
Колонны Серия 3.015-2/82
  • Длина 6800 мм.
  • Ширина 400 мм.
  • Высота 400 мм.
  • Вес 3600 кг.
  • Объем бетона 1,45 м3
  • Геометрический объем 1,088 м3
Цена: 30943 руб.
Подробнее
К 11-3
Колонны Серия 3.015-2/82
  • Длина 6800 мм.
  • Ширина 400 мм.
  • Высота 400 мм.
  • Вес 3600 кг.
  • Объем бетона 1,45 м3
  • Геометрический объем 1,088 м3
Цена: 30943 руб.
Подробнее
К 11-5 АтIVс
Колонны Серия 3.015-2/82
  • Длина 6800 мм.
  • Ширина 400 мм.
  • Высота 400 мм.
  • Вес 3600 кг.
  • Объем бетона 1,45 м3
  • Геометрический объем 1,088 м3
Цена: 30943 руб.
Подробнее
К 11-5
Колонны Серия 3.015-2/82
  • Длина 6800 мм.
  • Ширина 400 мм.
  • Высота 400 мм.
  • Вес 3600 кг.
  • Объем бетона 1,45 м3
  • Геометрический объем 1,088 м3
Цена: 30943 руб.
Подробнее
К 11-3 АтIVс
Колонны Серия 3.015-2/82
  • Длина 6800 мм.
  • Ширина 400 мм.
  • Высота 400 мм.
  • Вес 3600 кг.
  • Объем бетона 1,45 м3
  • Геометрический объем 1,088 м3
Цена: 30943 руб.
Подробнее
К 11-6
Колонны Серия 3.015-2/82
  • Длина 6800 мм.
  • Ширина 400 мм.
  • Высота 400 мм.
  • Вес 3600 кг.
  • Объем бетона 1,45 м3
  • Геометрический объем 1,088 м3
Цена: 30943 руб.
Подробнее
К 11-6 АтIVс
Колонны Серия 3.015-2/82
  • Длина 6800 мм.
  • Ширина 400 мм.
  • Высота 400 мм.
  • Вес 3600 кг.
  • Объем бетона 1,45 м3
  • Геометрический объем 1,088 м3
Цена: 30943 руб.
Подробнее
К 11-7
Колонны Серия 3.015-2/82
  • Длина 6800 мм.
  • Ширина 400 мм.
  • Высота 400 мм.
  • Вес 3600 кг.
  • Объем бетона 1,45 м3
  • Геометрический объем 1,088 м3
Цена: 30943 руб.
Подробнее
К 11-7 АтIVс
Колонны Серия 3.015-2/82
  • Длина 6800 мм.
  • Ширина 400 мм.
  • Высота 400 мм.
  • Вес 3600 кг.
  • Объем бетона 1,45 м3
  • Геометрический объем 1,088 м3
Цена: 30943 руб.
Подробнее
К 11-8
Колонны Серия 3.015-2/82
  • Длина 6800 мм.
  • Ширина 400 мм.
  • Высота 400 мм.
  • Вес 3600 кг.
  • Объем бетона 1,45 м3
  • Геометрический объем 1,088 м3
Цена: 30943 руб.
Подробнее
К 11-8 АтIVс
Колонны Серия 3.015-2/82
  • Длина 6800 мм.
  • Ширина 400 мм.
  • Высота 400 мм.
  • Вес 3600 кг.
  • Объем бетона 1,45 м3
  • Геометрический объем 1,088 м3
Цена: 30943 руб.
Подробнее
К 11-9
Колонны Серия 3.015-2/82
  • Длина 6800 мм.
  • Ширина 400 мм.
  • Высота 400 мм.
  • Вес 3600 кг.
  • Объем бетона 1,45 м3
  • Геометрический объем 1,088 м3
Цена: 30943 руб.
Подробнее
К 11-9 АтIVс
Колонны Серия 3.015-2/82
  • Длина 6800 мм.
  • Ширина 400 мм.
  • Высота 400 мм.
  • Вес 3600 кг.
  • Объем бетона 1,45 м3
  • Геометрический объем 1,088 м3
Цена: 30943 руб.
Подробнее
К 12-1
Колонны Серия 3.015-2/82
  • Длина 6800 мм.
  • Ширина 500 мм.
  • Высота 400 мм.
  • Вес 4300 кг.
  • Объем бетона 1,7 м3
  • Геометрический объем 1,36 м3
Цена: 36278 руб.
Подробнее
К 12-1 АтIVс
Колонны Серия 3.015-2/82
  • Длина 6800 мм.
  • Ширина 500 мм.
  • Высота 400 мм.
  • Вес 4300 кг.
  • Объем бетона 1,7 м3
  • Геометрический объем 1,36 м3
Цена: 36278 руб.
Подробнее
К 12-2
Колонны Серия 3.015-2/82
  • Длина 6800 мм.
  • Ширина 500 мм.
  • Высота 400 мм.
  • Вес 4300 кг.
  • Объем бетона 1,7 м3
  • Геометрический объем 1,36 м3
Цена: 36278 руб.
Подробнее
К 12-2 АтIVс
Колонны Серия 3.015-2/82
  • Длина 6800 мм.
  • Ширина 500 мм.
  • Высота 400 мм.
  • Вес 4300 кг.
  • Объем бетона 1,7 м3
  • Геометрический объем 1,36 м3
Цена: 36278 руб.
Подробнее
К 12-3 АтIVс
Колонны Серия 3.015-2/82
  • Длина 6800 мм.
  • Ширина 500 мм.
  • Высота 400 мм.
  • Вес 4300 кг.
  • Объем бетона 1,7 м3
  • Геометрический объем 1,36 м3
Цена: 36278 руб.
Подробнее
К 12-3
Колонны Серия 3.015-2/82
  • Длина 6800 мм.
  • Ширина 500 мм.
  • Высота 400 мм.
  • Вес 4300 кг.
  • Объем бетона 1,7 м3
  • Геометрический объем 1,36 м3
Цена: 36278 руб.
Подробнее
К 12-4
Колонны Серия 3.015-2/82
  • Длина 6800 мм.
  • Ширина 500 мм.
  • Высота 400 мм.
  • Вес 4300 кг.
  • Объем бетона 1,7 м3
  • Геометрический объем 1,36 м3
Цена: 36278 руб.
Подробнее
К 12-4 АтIVс
Колонны Серия 3.015-2/82
  • Длина 6800 мм.
  • Ширина 500 мм.
  • Высота 400 мм.
  • Вес 4300 кг.
  • Объем бетона 1,7 м3
  • Геометрический объем 1,36 м3
Цена: 36278 руб.
Подробнее
К 13-1
Колонны Серия 3.015-2/82
  • Длина 8000 мм.
  • Ширина 400 мм.
  • Высота 400 мм.
  • Вес 4100 кг.
  • Объем бетона 1,64 м3
  • Геометрический объем 1,28 м3
Цена: 34998 руб.
Подробнее
К 13-1 АтIVс
Колонны Серия 3.015-2/82
  • Длина 8000 мм.
  • Ширина 400 мм.
  • Высота 400 мм.
  • Вес 4100 кг.
  • Объем бетона 1,64 м3
  • Геометрический объем 1,28 м3
Цена: 34998 руб.
Подробнее
К 13-2
Колонны Серия 3.015-2/82
  • Длина 8000 мм.
  • Ширина 400 мм.
  • Высота 400 мм.
  • Вес 4100 кг.
  • Объем бетона 1,64 м3
  • Геометрический объем 1,28 м3
Цена: 34998 руб.
Подробнее
К 13-2 АтIVс
Колонны Серия 3.015-2/82
  • Длина 8000 мм.
  • Ширина 400 мм.
  • Высота 400 мм.
  • Вес 4100 кг.
  • Объем бетона 1,64 м3
  • Геометрический объем 1,28 м3
Цена: 34998 руб.
Подробнее
К 13-3
Колонны Серия 3.015-2/82
  • Длина 8000 мм.
  • Ширина 400 мм.
  • Высота 400 мм.
  • Вес 4100 кг.
  • Объем бетона 1,64 м3
  • Геометрический объем 1,28 м3
Цена: 34998 руб.
Подробнее
К 13-3 АтIVс
Колонны Серия 3.015-2/82
  • Длина 8000 мм.
  • Ширина 400 мм.
  • Высота 400 мм.
  • Вес 4100 кг.
  • Объем бетона 1,64 м3
  • Геометрический объем 1,28 м3
Цена: 34998 руб.
Подробнее
К 13-4
Колонны Серия 3.015-2/82
  • Длина 8000 мм.
  • Ширина 400 мм.
  • Высота 400 мм.
  • Вес 4100 кг.
  • Объем бетона 1,64 м3
  • Геометрический объем 1,28 м3
Цена: 34998 руб.
Подробнее
К 13-5
Колонны Серия 3.015-2/82
  • Длина 8000 мм.
  • Ширина 400 мм.
  • Высота 400 мм.
  • Вес 4100 кг.
  • Объем бетона 1,64 м3
  • Геометрический объем 1,28 м3
Цена: 34998 руб.
Подробнее
К 13-6
Колонны Серия 3.015-2/82
  • Длина 8000 мм.
  • Ширина 400 мм.
  • Высота 400 мм.
  • Вес 4100 кг.
  • Объем бетона 1,64 м3
  • Геометрический объем 1,28 м3
Цена: 34998 руб.
Подробнее
К 13-4 АтIVс
Колонны Серия 3.015-2/82
  • Длина 8000 мм.
  • Ширина 400 мм.
  • Высота 400 мм.
  • Вес 4100 кг.
  • Объем бетона 1,64 м3
  • Геометрический объем 1,28 м3
Цена: 34998 руб.
Подробнее

Как правильно выбрать - Колонны Серия 3.015-2/82

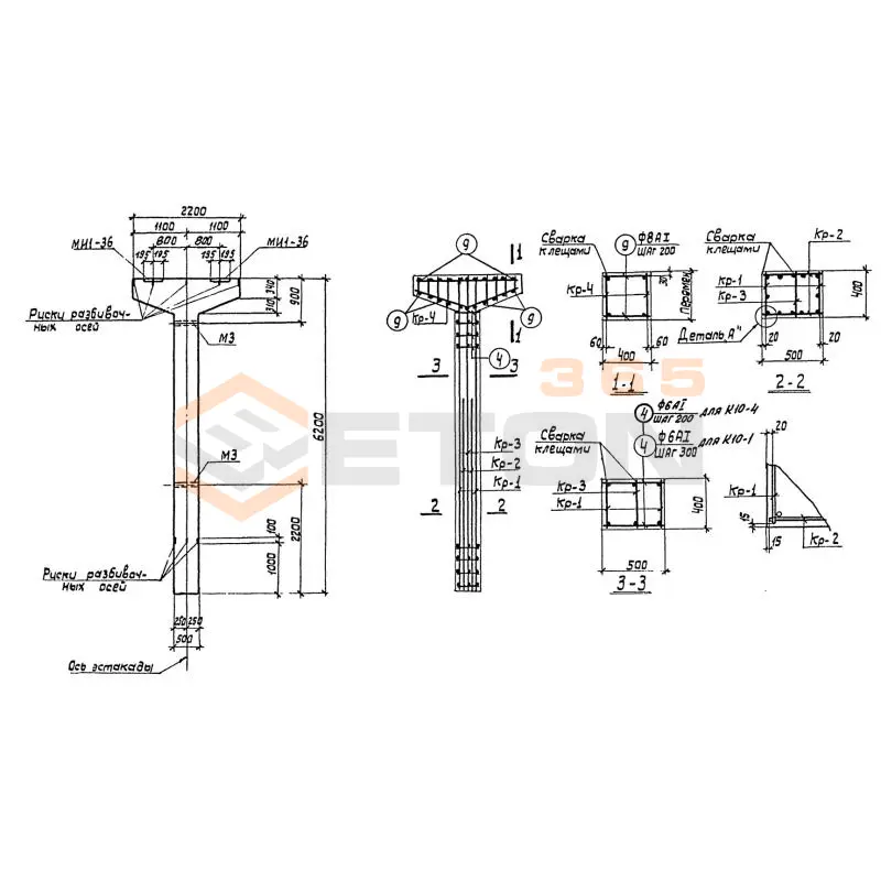
Колонны Серия 3.015-2/82 – это унифицированные железобетонные элементы, предназначенные для возведения каркасов промышленных зданий, сельскохозяйственных объектов и общественных сооружений. Они выполняют ключевую несущую функцию, воспринимая и передавая нагрузки от вышележащих конструкций на фундамент. Долговечность и устойчивость всего здания определяются точным соответствием выбранных колонн Серии 3.015-2/82 проектным расчетам и реальным условиям эксплуатации.

Критерии выбора

  • Марка и класс бетона: Изделия изготавливаются из тяжелого бетона марки не ниже М300 (класс В22,5), что обеспечивает высокую прочность на сжатие.
  • Эксплуатационные характеристики бетона: Обращайте внимание на морозостойкость (F150-F200) и водонепроницаемость (W4-W6), особенно для колонн, работающих в условиях переменной влажности или на открытом воздухе.
  • Арматурный каркас: Применяется напрягаемая или ненапрягаемая арматура классов Ат-IV, Ат-V, А-III. Проверяйте паспорт на соответствие проекта армирования.
  • Типоразмер и конфигурация: Серия включает колонны различной высоты и сечения (например, 400x400 мм). Критически важно выбрать изделие с нужными размерами консолей, отверстиями и закладными деталями для крепления подкрановых балок и связей.
  • Наличие монтажных петель: Убедитесь в наличии и корректном расположении петель для безопасной строповки.
  • Соответствие нормам: Все колонны Серии 3.015-2/82 должны изготавливаться строго в соответствии с требованиями ГОСТ 25628-90 и серийных чертежей.

Рекомендации по подбору и монтажу

При составлении спецификации на колонны Серии 3.015-2/82 обязательно указывайте не только типоразмер, но и марку по рабочим чертежам, которая детализирует конфигурацию закладных элементов. Перед приемкой сверяйте паспорт качества с проектными требованиями, обращая особое внимание на дату изготовления (прочность бетона к моменту монтажа должна быть не менее 70% проектной).

На этапе монтажа ключевое значение имеет точная выверка положения колонн в плане и по высоте до момента окончательного закрепления в стакане фундамента. Замоноличивание следует проводить безусадочными бетонными смесями с тщательным уплотнением. Избегайте преждевременного нагружения колонн до набора бетоном замоноличивания проектной прочности, чтобы исключить риск смещения.

Ответы экспертов на ваши вопросы

Колонны серии 3.015-2/82 - это железобетонные конструкции прямоугольного сечения, предназначенные для каркасов промышленных, гражданских и сельскохозяйственных зданий. Основные характеристики: высота до 12 метров, несущая способность до 500 кН, возможность установки в сейсмических районах до 7 баллов. Применяются в качестве вертикальных несущих элементов в зданиях с шагом колонн 6 и 12 метров.

Монтаж осуществляется с применением грузоподъемных механизмов соответствующей грузоподъемности. Требуется точная выверка положения по осям и вертикали с допусками не более 10 мм. Обязательно устройство опорных стальных плит или бетонных подушек. Стыкование с фундаментом выполняется через закладные детали с последующим бетонированием стыка. Работы ведутся в соответствии с проектом производства работ.

Армирование выполнено пространственными каркасами из горячекатаной арматуры классов А-I, А-II, А-III. Диаметр продольной арматуры от 12 до 32 мм в зависимости от несущей способности. Поперечное армирование - хомуты с шагом 300-500 мм. В местах стыков предусмотрены дополнительные конструктивные элементы. Все требования по защитному слою бетона соблюдены.

Защита обеспечивается проектной толщиной защитного слоя бетона (25-30 мм) и использованием бетона марки не ниже В15. Допустимая среда эксплуатации: при отсутствии агрессивных воздействий - любые климатические условия; при наличии агрессивной среды требуется дополнительная защита. Температурный режим эксплуатации от -40°C до +50°C.

Каждая колонна сопровождается паспортом завода-изготовителя с указанием: марки изделия, даты изготовления, прочности бетона, результатов контроля. Маркировка наносится несмываемой краской на торец и включает: марку колонны, дату изготовления, массу, штамп ОТК. Пример маркировки: К1-1-12-3.015-2/82, где К1 - тип колонны, 1 - несущая способность, 12 - высота в дм.

Ранее смотрели
Кормушки Серия 3.818.9-2 КТ 118-49-25
КТ 118-49-25
Кормушки Серия 3.818.9-2
Стойки железобетонные серия 3.407.1-136; серия 3.407.1-143 СВ 110-3,5
СВ 110-3,5
Стойки железобетонные серия 3.407.1-136; серия 3.407.1-143
Лежни Серия 3.407.1-157 ЛЖ 8
ЛЖ 8
Лежни Серия 3.407.1-157
Утяжелители железобетонные болотные клиновидные ВСН 007-88 1УБКМ 529-9
1УБКМ 529-9
Утяжелители железобетонные болотные клиновидные ВСН 007-88
Камни для кладки стен ГОСТ 6133-99 КЛ-ПР-ПС 39,2
КЛ-ПР-ПС 39,2
Камни для кладки стен ГОСТ 6133-99
Стойки СК ГОСТ 22687-85 ( 3.407.1-152 ) СК 22,3-1,1
СК 22,3-1,1
Стойки СК ГОСТ 22687-85 ( 3.407.1-152 )
Лежни Серия 3.407.1-157 ЛЖ 45
ЛЖ 45
Лежни Серия 3.407.1-157
Звенья железобетонные круглых водопропускных труб для автомобильных дорог Серия 3.501-59 и 3.501.1-144, шифр 1484 ЗК 5-200
ЗК 5-200
Звенья железобетонные круглых водопропускных труб для автомобильных дорог Серия 3.501-59 и 3.501.1-144, шифр 1484

Уведомление о файлах cookie

Мы используем файлы cookie для улучшения вашего опыта просмотра и анализа трафика. Нажимая "Принять все", вы соглашаетесь с нашей политикой конфиденциальности и политикой обработки файлов cookie.

Дзен Телеграм Вконтакте vk