mobile_sound +7 (930) 655-55-90

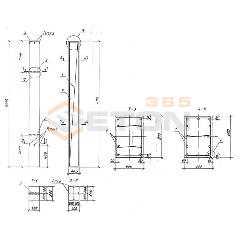
Колонны серия 3.015-1/92 ( 3.015-1/82 )

Поделиться:
Фильтр по характеристикам
Длина (мм.)
keyboard_arrow_down
мм.
мм.
Ширина (мм.)
keyboard_arrow_down
мм.
мм.
Высота (мм.)
keyboard_arrow_down
мм.
мм.
Вес (кг.)
keyboard_arrow_down
кг.
кг.
Объем бетона (м3)
keyboard_arrow_down
м3
м3
Поделиться:

Завод "Бетон365" производит железобетонные колонны серии 3.015-1/92 (3.015-1/82) – ключевые несущие элементы для каркасов промышленных и гражданских зданий. Эти конструкции отличаются повышенной прочностью и точным соответствием требованиям ГОСТ, обеспечивая равномерное распределение нагрузок и устойчивость всего сооружения. Применение готовых колонн значительно сокращает сроки монтажа и повышает надежность строительных объектов различного назначения.

Мы реализуем колонны серии 3.015-1/92 в Москве и МО по конкурентной цене от производителя, с гарантией качества и оперативной доставкой на объект. Для профессионального подбора железобетонных изделий и расчета стоимости предлагаем связаться с нашими специалистами – поможем оптимизировать ваши строительные проекты!

К 1-1
Колонны серия 3.015-1/92 ( 3.015-1/82 )
  • Длина 5700 мм.
  • Ширина 300 мм.
  • Высота 300 мм.
  • Вес 1300 кг.
  • Объем бетона 0,51 м3
  • Геометрический объем 0,513 м3
Цена: 10389 руб.
Подробнее
К 10-1
Колонны серия 3.015-1/92 ( 3.015-1/82 )
  • Длина 7200 мм.
  • Ширина 400 мм.
  • Высота 400 мм.
  • Вес 2900 кг.
  • Объем бетона 1,15 м3
  • Геометрический объем 1,152 м3
Цена: 23426 руб.
Подробнее
К 10-2
Колонны серия 3.015-1/92 ( 3.015-1/82 )
  • Длина 7200 мм.
  • Ширина 400 мм.
  • Высота 400 мм.
  • Вес 2900 кг.
  • Объем бетона 1,15 м3
  • Геометрический объем 1,152 м3
Цена: 23426 руб.
Подробнее
К 1-2
Колонны серия 3.015-1/92 ( 3.015-1/82 )
  • Длина 5700 мм.
  • Ширина 300 мм.
  • Высота 300 мм.
  • Вес 1300 кг.
  • Объем бетона 0,51 м3
  • Геометрический объем 0,513 м3
Цена: 10389 руб.
Подробнее
К 10-3
Колонны серия 3.015-1/92 ( 3.015-1/82 )
  • Длина 7200 мм.
  • Ширина 400 мм.
  • Высота 400 мм.
  • Вес 2900 кг.
  • Объем бетона 1,15 м3
  • Геометрический объем 1,152 м3
Цена: 23426 руб.
Подробнее
К 10-4
Колонны серия 3.015-1/92 ( 3.015-1/82 )
  • Длина 7200 мм.
  • Ширина 400 мм.
  • Высота 400 мм.
  • Вес 2900 кг.
  • Объем бетона 1,15 м3
  • Геометрический объем 1,152 м3
Цена: 23426 руб.
Подробнее
К 10-5
Колонны серия 3.015-1/92 ( 3.015-1/82 )
  • Длина 7200 мм.
  • Ширина 400 мм.
  • Высота 400 мм.
  • Вес 2900 кг.
  • Объем бетона 1,15 м3
  • Геометрический объем 1,152 м3
Цена: 23426 руб.
Подробнее
К 11-1
Колонны серия 3.015-1/92 ( 3.015-1/82 )
  • Длина 7800 мм.
  • Ширина 400 мм.
  • Высота 400 мм.
  • Вес 3100 кг.
  • Объем бетона 1,25 м3
  • Геометрический объем 1,248 м3
Цена: 25463 руб.
Подробнее
К 11-2
Колонны серия 3.015-1/92 ( 3.015-1/82 )
  • Длина 7800 мм.
  • Ширина 400 мм.
  • Высота 400 мм.
  • Вес 3100 кг.
  • Объем бетона 1,25 м3
  • Геометрический объем 1,248 м3
Цена: 25463 руб.
Подробнее
К 10-6
Колонны серия 3.015-1/92 ( 3.015-1/82 )
  • Длина 7200 мм.
  • Ширина 400 мм.
  • Высота 400 мм.
  • Вес 2900 кг.
  • Объем бетона 1,15 м3
  • Геометрический объем 1,152 м3
Цена: 23426 руб.
Подробнее
К 11-3
Колонны серия 3.015-1/92 ( 3.015-1/82 )
  • Длина 7800 мм.
  • Ширина 400 мм.
  • Высота 400 мм.
  • Вес 3100 кг.
  • Объем бетона 1,25 м3
  • Геометрический объем 1,248 м3
Цена: 25463 руб.
Подробнее
К 11-4
Колонны серия 3.015-1/92 ( 3.015-1/82 )
  • Длина 7800 мм.
  • Ширина 400 мм.
  • Высота 400 мм.
  • Вес 3100 кг.
  • Объем бетона 1,25 м3
  • Геометрический объем 1,248 м3
Цена: 25463 руб.
Подробнее
К 11-5
Колонны серия 3.015-1/92 ( 3.015-1/82 )
  • Длина 7800 мм.
  • Ширина 400 мм.
  • Высота 400 мм.
  • Вес 3100 кг.
  • Объем бетона 1,25 м3
  • Геометрический объем 1,248 м3
Цена: 25463 руб.
Подробнее
К 12-2
Колонны серия 3.015-1/92 ( 3.015-1/82 )
  • Длина 8400 мм.
  • Ширина 400 мм.
  • Высота 400 мм.
  • Вес 3400 кг.
  • Объем бетона 1,35 м3
  • Геометрический объем 1,344 м3
Цена: 27500 руб.
Подробнее
К 12-3
Колонны серия 3.015-1/92 ( 3.015-1/82 )
  • Длина 8400 мм.
  • Ширина 400 мм.
  • Высота 400 мм.
  • Вес 3400 кг.
  • Объем бетона 1,35 м3
  • Геометрический объем 1,344 м3
Цена: 27500 руб.
Подробнее
К 12-4
Колонны серия 3.015-1/92 ( 3.015-1/82 )
  • Длина 8400 мм.
  • Ширина 400 мм.
  • Высота 400 мм.
  • Вес 3400 кг.
  • Объем бетона 1,35 м3
  • Геометрический объем 1,344 м3
Цена: 27500 руб.
Подробнее
К 12-1
Колонны серия 3.015-1/92 ( 3.015-1/82 )
  • Длина 8400 мм.
  • Ширина 400 мм.
  • Высота 400 мм.
  • Вес 3400 кг.
  • Объем бетона 1,35 м3
  • Геометрический объем 1,344 м3
Цена: 27500 руб.
Подробнее
К 12-5
Колонны серия 3.015-1/92 ( 3.015-1/82 )
  • Длина 8400 мм.
  • Ширина 400 мм.
  • Высота 400 мм.
  • Вес 3400 кг.
  • Объем бетона 1,35 м3
  • Геометрический объем 1,344 м3
Цена: 27500 руб.
Подробнее
К 13-1
Колонны серия 3.015-1/92 ( 3.015-1/82 )
  • Длина 6900 мм.
  • Ширина 400 мм.
  • Высота 500 мм.
  • Вес 3500 кг.
  • Объем бетона 1,38 м3
  • Геометрический объем 1,38 м3
Цена: 28111 руб.
Подробнее
К 13-2
Колонны серия 3.015-1/92 ( 3.015-1/82 )
  • Длина 6900 мм.
  • Ширина 400 мм.
  • Высота 500 мм.
  • Вес 3500 кг.
  • Объем бетона 1,38 м3
  • Геометрический объем 1,38 м3
Цена: 28111 руб.
Подробнее
К 14-1
Колонны серия 3.015-1/92 ( 3.015-1/82 )
  • Длина 7500 мм.
  • Ширина 400 мм.
  • Высота 500 мм.
  • Вес 3800 кг.
  • Объем бетона 1,5 м3
  • Геометрический объем 1,5 м3
Цена: 30555 руб.
Подробнее
К 14-3
Колонны серия 3.015-1/92 ( 3.015-1/82 )
  • Длина 7500 мм.
  • Ширина 400 мм.
  • Высота 500 мм.
  • Вес 3800 кг.
  • Объем бетона 1,5 м3
  • Геометрический объем 1,5 м3
Цена: 30555 руб.
Подробнее
К 14-2
Колонны серия 3.015-1/92 ( 3.015-1/82 )
  • Длина 7500 мм.
  • Ширина 400 мм.
  • Высота 500 мм.
  • Вес 3800 кг.
  • Объем бетона 1,5 м3
  • Геометрический объем 1,5 м3
Цена: 30555 руб.
Подробнее
К 15-1
Колонны серия 3.015-1/92 ( 3.015-1/82 )
  • Длина 8400 мм.
  • Ширина 400 мм.
  • Высота 500 мм.
  • Вес 4200 кг.
  • Объем бетона 1,68 м3
  • Геометрический объем 1,68 м3
Цена: 34222 руб.
Подробнее
К 16-1
Колонны серия 3.015-1/92 ( 3.015-1/82 )
  • Длина 8100 мм.
  • Ширина 400 мм.
  • Высота 600 мм.
  • Вес 4900 кг.
  • Объем бетона 1,94 м3
  • Геометрический объем 1,944 м3
Цена: 39518 руб.
Подробнее
К 15-2
Колонны серия 3.015-1/92 ( 3.015-1/82 )
  • Длина 8400 мм.
  • Ширина 400 мм.
  • Высота 500 мм.
  • Вес 4200 кг.
  • Объем бетона 1,68 м3
  • Геометрический объем 1,68 м3
Цена: 34222 руб.
Подробнее
К 15-3
Колонны серия 3.015-1/92 ( 3.015-1/82 )
  • Длина 8400 мм.
  • Ширина 400 мм.
  • Высота 500 мм.
  • Вес 4200 кг.
  • Объем бетона 1,68 м3
  • Геометрический объем 1,68 м3
Цена: 34222 руб.
Подробнее
К 16-2
Колонны серия 3.015-1/92 ( 3.015-1/82 )
  • Длина 8100 мм.
  • Ширина 400 мм.
  • Высота 600 мм.
  • Вес 4900 кг.
  • Объем бетона 1,94 м3
  • Геометрический объем 1,944 м3
Цена: 39518 руб.
Подробнее
К 16-3
Колонны серия 3.015-1/92 ( 3.015-1/82 )
  • Длина 8100 мм.
  • Ширина 400 мм.
  • Высота 600 мм.
  • Вес 4900 кг.
  • Объем бетона 1,94 м3
  • Геометрический объем 1,944 м3
Цена: 39518 руб.
Подробнее
К 17-2
Колонны серия 3.015-1/92 ( 3.015-1/82 )
  • Длина 6200 мм.
  • Ширина 400 мм.
  • Высота 400 мм.
  • Вес 3000 кг.
  • Объем бетона 1,18 м3
  • Геометрический объем 0,992 м3
Цена: 24037 руб.
Подробнее
К 18-1
Колонны серия 3.015-1/92 ( 3.015-1/82 )
  • Длина 6200 мм.
  • Ширина 400 мм.
  • Высота 400 мм.
  • Вес 3200 кг.
  • Объем бетона 1,29 м3
  • Геометрический объем 0,992 м3
Цена: 26277 руб.
Подробнее
К 18-2
Колонны серия 3.015-1/92 ( 3.015-1/82 )
  • Длина 6200 мм.
  • Ширина 400 мм.
  • Высота 400 мм.
  • Вес 3200 кг.
  • Объем бетона 1,29 м3
  • Геометрический объем 0,992 м3
Цена: 26277 руб.
Подробнее
К 17-1
Колонны серия 3.015-1/92 ( 3.015-1/82 )
  • Длина 6200 мм.
  • Ширина 400 мм.
  • Высота 400 мм.
  • Вес 3000 кг.
  • Объем бетона 1,18 м3
  • Геометрический объем 0,992 м3
Цена: 24037 руб.
Подробнее
К 19-1
Колонны серия 3.015-1/92 ( 3.015-1/82 )
  • Длина 6200 мм.
  • Ширина 400 мм.
  • Высота 400 мм.
  • Вес 3500 кг.
  • Объем бетона 1,38 м3
  • Геометрический объем 0,992 м3
Цена: 28111 руб.
Подробнее
К 19-2
Колонны серия 3.015-1/92 ( 3.015-1/82 )
  • Длина 6200 мм.
  • Ширина 400 мм.
  • Высота 400 мм.
  • Вес 3500 кг.
  • Объем бетона 1,38 м3
  • Геометрический объем 0,992 м3
Цена: 28111 руб.
Подробнее
К 2-1
Колонны серия 3.015-1/92 ( 3.015-1/82 )
  • Длина 6000 мм.
  • Ширина 300 мм.
  • Высота 300 мм.
  • Вес 1400 кг.
  • Объем бетона 0,54 м3
  • Геометрический объем 0,54 м3
Цена: 11000 руб.
Подробнее
К 2-2
Колонны серия 3.015-1/92 ( 3.015-1/82 )
  • Длина 6000 мм.
  • Ширина 300 мм.
  • Высота 300 мм.
  • Вес 1400 кг.
  • Объем бетона 0,54 м3
  • Геометрический объем 0,54 м3
Цена: 11000 руб.
Подробнее
К 20-1
Колонны серия 3.015-1/92 ( 3.015-1/82 )
  • Длина 6800 мм.
  • Ширина 400 мм.
  • Высота 400 мм.
  • Вес 3200 кг.
  • Объем бетона 1,27 м3
  • Геометрический объем 1,088 м3
Цена: 25870 руб.
Подробнее
К 20-2
Колонны серия 3.015-1/92 ( 3.015-1/82 )
  • Длина 6800 мм.
  • Ширина 400 мм.
  • Высота 400 мм.
  • Вес 3200 кг.
  • Объем бетона 1,27 м3
  • Геометрический объем 1,088 м3
Цена: 25870 руб.
Подробнее
К 2-4
Колонны серия 3.015-1/92 ( 3.015-1/82 )
  • Длина 6000 мм.
  • Ширина 300 мм.
  • Высота 300 мм.
  • Вес 1400 кг.
  • Объем бетона 0,54 м3
  • Геометрический объем 0,54 м3
Цена: 11000 руб.
Подробнее
К 2-3
Колонны серия 3.015-1/92 ( 3.015-1/82 )
  • Длина 6000 мм.
  • Ширина 300 мм.
  • Высота 300 мм.
  • Вес 1400 кг.
  • Объем бетона 0,54 м3
  • Геометрический объем 0,54 м3
Цена: 11000 руб.
Подробнее
К 21-1
Колонны серия 3.015-1/92 ( 3.015-1/82 )
  • Длина 6800 мм.
  • Ширина 400 мм.
  • Высота 400 мм.
  • Вес 3500 кг.
  • Объем бетона 1,4 м3
  • Геометрический объем 1,088 м3
Цена: 28518 руб.
Подробнее
К 21-2
Колонны серия 3.015-1/92 ( 3.015-1/82 )
  • Длина 6800 мм.
  • Ширина 400 мм.
  • Высота 400 мм.
  • Вес 3500 кг.
  • Объем бетона 1,4 м3
  • Геометрический объем 1,088 м3
Цена: 28518 руб.
Подробнее
К 21-3
Колонны серия 3.015-1/92 ( 3.015-1/82 )
  • Длина 6800 мм.
  • Ширина 400 мм.
  • Высота 400 мм.
  • Вес 3500 кг.
  • Объем бетона 1,4 м3
  • Геометрический объем 1,088 м3
Цена: 28518 руб.
Подробнее
К 22-2
Колонны серия 3.015-1/92 ( 3.015-1/82 )
  • Длина 6800 мм.
  • Ширина 400 мм.
  • Высота 400 мм.
  • Вес 3700 кг.
  • Объем бетона 1,48 м3
  • Геометрический объем 1,088 м3
Цена: 30148 руб.
Подробнее
К 23-1
Колонны серия 3.015-1/92 ( 3.015-1/82 )
  • Длина 7400 мм.
  • Ширина 400 мм.
  • Высота 400 мм.
  • Вес 3400 кг.
  • Объем бетона 1,37 м3
  • Геометрический объем 1,184 м3
Цена: 27907 руб.
Подробнее
К 22-1
Колонны серия 3.015-1/92 ( 3.015-1/82 )
  • Длина 6800 мм.
  • Ширина 400 мм.
  • Высота 400 мм.
  • Вес 3700 кг.
  • Объем бетона 1,48 м3
  • Геометрический объем 1,088 м3
Цена: 30148 руб.
Подробнее
К 25-1
Колонны серия 3.015-1/92 ( 3.015-1/82 )
  • Длина 7400 мм.
  • Ширина 400 мм.
  • Высота 400 мм.
  • Вес 4000 кг.
  • Объем бетона 1,59 м3
  • Геометрический объем 1,184 м3
Цена: 32388 руб.
Подробнее
К 24-1
Колонны серия 3.015-1/92 ( 3.015-1/82 )
  • Длина 7400 мм.
  • Ширина 400 мм.
  • Высота 400 мм.
  • Вес 3700 кг.
  • Объем бетона 1,49 м3
  • Геометрический объем 1,184 м3
Цена: 30351 руб.
Подробнее
К 26-1
Колонны серия 3.015-1/92 ( 3.015-1/82 )
  • Длина 8000 мм.
  • Ширина 400 мм.
  • Высота 400 мм.
  • Вес 4200 кг.
  • Объем бетона 1,67 м3
  • Геометрический объем 1,28 м3
Цена: 34018 руб.
Подробнее
К 25-2
Колонны серия 3.015-1/92 ( 3.015-1/82 )
  • Длина 7400 мм.
  • Ширина 400 мм.
  • Высота 400 мм.
  • Вес 4000 кг.
  • Объем бетона 1,59 м3
  • Геометрический объем 1,184 м3
Цена: 32388 руб.
Подробнее
К 27-1
Колонны серия 3.015-1/92 ( 3.015-1/82 )
  • Длина 6200 мм.
  • Ширина 500 мм.
  • Высота 400 мм.
  • Вес 4000 кг.
  • Объем бетона 1,6 м3
  • Геометрический объем 1,24 м3
Цена: 32592 руб.
Подробнее
К 26-2
Колонны серия 3.015-1/92 ( 3.015-1/82 )
  • Длина 8000 мм.
  • Ширина 400 мм.
  • Высота 400 мм.
  • Вес 4200 кг.
  • Объем бетона 1,67 м3
  • Геометрический объем 1,28 м3
Цена: 34018 руб.
Подробнее
К 28-1
Колонны серия 3.015-1/92 ( 3.015-1/82 )
  • Длина 6800 мм.
  • Ширина 500 мм.
  • Высота 400 мм.
  • Вес 4300 кг.
  • Объем бетона 1,72 м3
  • Геометрический объем 1,36 м3
Цена: 35036 руб.
Подробнее
К 29-1
Колонны серия 3.015-1/92 ( 3.015-1/82 )
  • Длина 7400 мм.
  • Ширина 500 мм.
  • Высота 400 мм.
  • Вес 4100 кг.
  • Объем бетона 1,65 м3
  • Геометрический объем 1,48 м3
Цена: 33611 руб.
Подробнее
К 30-1
Колонны серия 3.015-1/92 ( 3.015-1/82 )
  • Длина 7400 мм.
  • Ширина 500 мм.
  • Высота 400 мм.
  • Вес 4400 кг.
  • Объем бетона 1,76 м3
  • Геометрический объем 1,48 м3
Цена: 35851 руб.
Подробнее
К 3-1
Колонны серия 3.015-1/92 ( 3.015-1/82 )
  • Длина 6300 мм.
  • Ширина 300 мм.
  • Высота 300 мм.
  • Вес 1400 кг.
  • Объем бетона 0,57 м3
  • Геометрический объем 0,567 м3
Цена: 11611 руб.
Подробнее
К 31-1
Колонны серия 3.015-1/92 ( 3.015-1/82 )
  • Длина 7400 мм.
  • Ширина 500 мм.
  • Высота 400 мм.
  • Вес 4600 кг.
  • Объем бетона 1,84 м3
  • Геометрический объем 1,48 м3
Цена: 37481 руб.
Подробнее
К 32-1
Колонны серия 3.015-1/92 ( 3.015-1/82 )
  • Длина 8000 мм.
  • Ширина 500 мм.
  • Высота 400 мм.
  • Вес 4400 кг.
  • Объем бетона 1,75 м3
  • Геометрический объем 1,6 м3
Цена: 35648 руб.
Подробнее
К 33-1
Колонны серия 3.015-1/92 ( 3.015-1/82 )
  • Длина 8000 мм.
  • Ширина 500 мм.
  • Высота 400 мм.
  • Вес 4700 кг.
  • Объем бетона 1,88 м3
  • Геометрический объем 1,6 м3
Цена: 38296 руб.
Подробнее

Как правильно выбрать - Колонны серия 3.015-1/92 ( 3.015-1/82 )

Железобетонные колонны серии 3.015-1/92 (и 3.015-1/82) предназначены для возведения каркасов промышленных, гражданских и сельскохозяйственных зданий. Они выполняют ключевую несущую функцию, воспринимая вертикальные и горизонтальные нагрузки от вышележащих конструкций – ригелей, балок и плит перекрытия. Долговечность и устойчивость всего здания определяются точным соответствием выбранных колонн серии 3.015-1/92 проектным расчетам и реальным условиям эксплуатации.

Критерии выбора

  • Марка и класс бетона: Изделия изготавливаются из тяжелого бетона марки не ниже М300 (класс В22,5) с нормируемой морозостойкостью F150-F200 и водонепроницаемостью W4-W6, что обеспечивает долговечность в условиях переменной влажности.
  • Армирование: Применяется напрягаемая и ненапрягаемая арматура классов А-III (А400) и Ат-IV (А600) для обеспечения необходимой несущей способности на сжатие и изгиб.
  • Типоразмер и конфигурация: Внимательно сверяйте типоразмер по серии (высота, сечение, консоли) и наличие закладных деталей (опорные столики, закладные пластины) для корректного сопряжения с ригелями и фундаментами.
  • Расчетные нагрузки: Убедитесь, что паспортная несущая способность колонн 3.015-1/82 соответствует расчетным усилиям от постоянных, временных и крановых нагрузок, указанных в проекте.
  • Соответствие нормативам: Изделие должно строго соответствовать требованиям серии 1.423.1-4/88 и ГОСТ 25628-90, что подтверждается паспортом качества завода-изготовителя.

Рекомендации по подбору и монтажу

При составлении спецификации на колонны серии 3.015-1/92 обязательно указывайте не только типоразмер, но и марку, включающую все конструктивные особенности (например, наличие консолей для опирания подкрановых балок). Требуйте от поставщика предоставления полного комплекта паспортов, где указаны фактические прочностные характеристики бетона на момент отгрузки.

На этапе монтажа критически важна точная выверка положения колонн 3.015-1/82 в плане и по высоте до окончательного замоноличивания стакана фундамента. Используйте инвентарные расчалки для временного закрепления. Контролируйте соответствие отметок опорных столиков проектным, так как их смещение приведет к сложностям при монтаже ригелей и последующему перераспределению нагрузок.

Ответы экспертов на ваши вопросы

Колонны серии 3.015-1/92 (3.015-1/82) предназначены для применения в каркасах одноэтажных промышленных зданий, общественных и административных зданий. Они используются в качестве несущих вертикальных элементов, воспринимающих нагрузки от вышележащих конструкций (ригелей, балок, перекрытий) и передающих их на фундамент. Серия охватывает колонны для зданий с мостовыми кранами грузоподъемностью до 50 т и бескрановых зданий.

Серия регламентирует следующие основные параметры: геометрические размеры (высоту, сечения), несущую способность, марку бетона (как правило, не ниже В15-В30), класс рабочей арматуры, допустимые нагрузки (включая крановые), а также конструктивные особенности (например, консоли для опирания подкрановых балок, закладные детали для крепления ограждающих конструкций и подкрановых путей). Конкретные значения зависят от типоразмера колонны, указанного в маркировке.

Серия 3.015-1/92 является обновленной и более поздней версией по сравнению с 3.015-1/82. Ключевые отличия обычно заключаются в уточнении расчетных нагрузок (с учетом изменившихся нормативов), применении более современных марок бетона и арматуры, а также в оптимизации конструктивных решений и деталей (например, конфигурации закладных деталей). Серия 3.015-1/92 разработана с учетом актуализированных строительных норм и правил (СНиП), действовавших на момент ее выпуска.

При монтаже колонн серии 3.015-1/92 (3.015-1/82) необходимо строго контролировать: правильность установки колонны по осям и отметкам (вертикальность), надежность и соответствие проекту стыковки арматурных выпусков и закладных деталей с последующими элементами каркаса (ригелями, подкрановыми балками), качество и проектную марку бетона в стыках (если таковые предусмотрены), а также целостность колонны (отсутствие сколов, трещин). Особое внимание уделяется анкеровке колонны в стакане фундамента и ее временному раскреплению до завершения монтажа связей и ригелей.

Подбор конкретной марки колонны осуществляется на основе расчетов, выполненных в соответствии с проектом здания. Ключевыми исходными данными являются: расчетные нагрузки (постоянные, временные, в том числе крановые), высота здания (отметка низа ригеля), шаг колонн, наличие и характеристики мостовых кранов, сейсмичность района строительства и другие местные условия. По альбомам чертежей и спецификациям серии выбирается типоразмер колонны, у которого расчетные характеристики (несущая способность, жесткость) соответствуют или превышают требуемые по проекту.

Ранее смотрели
Приставки железобетонные (пасынки) серия 3.407-57/87 ( 3.407-57/72 ) ПТ 33-2
ПТ 33-2
Приставки железобетонные (пасынки) серия 3.407-57/87 ( 3.407-57/72 )
ОС 6-6-50
ОС 6-6-50
Оголовки свай Серия 1.100.1-7
2ПР 4 АV (ГОСТ 26992-86)
2ПР 4 АV (ГОСТ 26992-86)
Прогоны железобетонные ГОСТ 26992-86
Откосные стенки Серия 3.501.1-179.94 СТ 11пл-400 м
СТ 11пл-400 м
Откосные стенки Серия 3.501.1-179.94
Колонны высотой 4,8; 6,0-4,8 м Серия 1.420.1-20с К 1-17 с
К 1-17 с
Колонны высотой 4,8; 6,0-4,8 м Серия 1.420.1-20с
Плиты дорожные Серия 3.503-17 ПД 1-6
ПД 1-6
Плиты дорожные Серия 3.503-17
Настил коробчатый Серия В 86 Н 2-5-500 п (В 86)
Н 2-5-500 п (В 86)
Настил коробчатый Серия В 86
СТ 1 и
СТ 1 и
Оголовки Серия 3.501.1-130

Уведомление о файлах cookie

Мы используем файлы cookie для улучшения вашего опыта просмотра и анализа трафика. Нажимая "Принять все", вы соглашаетесь с нашей политикой конфиденциальности и политикой обработки файлов cookie.

Дзен Телеграм Вконтакте vk