mobile_sound +7 (930) 655-55-90

Кабины санитарно-технические типа "Колпак" Серия 1.188-5

Поделиться:
Фильтр по характеристикам
Длина (мм.)
keyboard_arrow_down
мм.
мм.
Ширина (мм.)
keyboard_arrow_down
мм.
мм.
Высота (мм.)
keyboard_arrow_down
мм.
мм.
Вес (кг.)
keyboard_arrow_down
кг.
кг.
Поделиться:

Завод "Бетон365" производит кабины санитарно-технические типа "Колпак" Серия 1.188-5 — готовые решения для оснащения санузлов в общественных и производственных зданиях. Эти железобетонные конструкции отличаются повышенной прочностью и точным соответствием ГОСТам, обеспечивая долговечность эксплуатации и простоту монтажа. Использование готовых кабин позволяет оптимизировать строительные процессы, создавая надежные и гигиеничные помещения без дополнительных временных затрат.

Мы реализуем кабины "Колпак" серии 1.188-5 в Москве и МО по конкурентной цене от производителя, с гарантией качества и оперативной доставкой на объект. Чтобы купить эти практичные ЖБИ для вашего проекта и получить консультацию по монтажу, обратитесь к нашим специалистам для оформления заказа.

Д 4 (днище)
Кабины санитарно-технические типа "Колпак" Серия 1.188-5
  • Длина 2730 мм.
  • Ширина 1620 мм.
  • Высота 85 мм.
  • Вес 495 кг.
  • Объем бетона 0,198 м3
  • Геометрический объем 0,3759 м3
Цена: 4417 руб.
Подробнее
СК 11
Кабины санитарно-технические типа "Колпак" Серия 1.188-5
  • Длина 2730 мм.
  • Ширина 1600 мм.
  • Высота 2310 мм.
  • Вес 2710 кг.
  • Объем бетона 1,388 м3
  • Геометрический объем 10,0901 м3
Цена: 30966 руб.
Подробнее
СК 11-01 (1.188-5)
Кабины санитарно-технические типа "Колпак" Серия 1.188-5
  • Длина 2730 мм.
  • Ширина 1620 мм.
  • Высота 2400 мм.
  • Вес 3460 кг.
  • Объем бетона 1,363 м3
  • Геометрический объем 10,6142 м3
Цена: 30409 руб.
Подробнее
Д 6 (днище)
Кабины санитарно-технические типа "Колпак" Серия 1.188-5
  • Длина 2080 мм.
  • Ширина 1840 мм.
  • Высота 85 мм.
  • Вес 423 кг.
  • Объем бетона 0,169 м3
  • Геометрический объем 0,3253 м3
Цена: 3770 руб.
Подробнее
СК 11 (1.188-5)
Кабины санитарно-технические типа "Колпак" Серия 1.188-5
  • Длина 2730 мм.
  • Ширина 1600 мм.
  • Высота 2360 мм.
  • Вес 2890 кг.
  • Объем бетона 1,154 м3
  • Геометрический объем 10,3085 м3
Цена: 25746 руб.
Подробнее
СК 11-01 в (1.188-5)
Кабины санитарно-технические типа "Колпак" Серия 1.188-5
  • Длина 2730 мм.
  • Ширина 1620 мм.
  • Высота 2400 мм.
  • Вес 3460 кг.
  • Объем бетона 1,363 м3
  • Геометрический объем 10,6142 м3
Цена: 30409 руб.
Подробнее
СК 11-02 в (1.188-5)
Кабины санитарно-технические типа "Колпак" Серия 1.188-5
  • Длина 2730 мм.
  • Ширина 1620 мм.
  • Высота 2400 мм.
  • Вес 3460 кг.
  • Объем бетона 1,363 м3
  • Геометрический объем 10,6142 м3
Цена: 30409 руб.
Подробнее
СК 11-01 р (1.188-5)
Кабины санитарно-технические типа "Колпак" Серия 1.188-5
  • Длина 2730 мм.
  • Ширина 1620 мм.
  • Высота 2400 мм.
  • Вес 3460 кг.
  • Объем бетона 1,363 м3
  • Геометрический объем 10,6142 м3
Цена: 30409 руб.
Подробнее
СК 11-02 (1.188-5)
Кабины санитарно-технические типа "Колпак" Серия 1.188-5
  • Длина 2730 мм.
  • Ширина 1620 мм.
  • Высота 2400 мм.
  • Вес 3460 кг.
  • Объем бетона 1,363 м3
  • Геометрический объем 10,6142 м3
Цена: 30409 руб.
Подробнее
СК 11-02 р (1.188-5)
Кабины санитарно-технические типа "Колпак" Серия 1.188-5
  • Длина 2730 мм.
  • Ширина 1620 мм.
  • Высота 2400 мм.
  • Вес 3460 кг.
  • Объем бетона 1,363 м3
  • Геометрический объем 10,6142 м3
Цена: 30409 руб.
Подробнее
СК 11-11 в (1.188-5)
Кабины санитарно-технические типа "Колпак" Серия 1.188-5
  • Длина 2730 мм.
  • Ширина 1620 мм.
  • Высота 2400 мм.
  • Вес 3460 кг.
  • Объем бетона 1,363 м3
  • Геометрический объем 10,6142 м3
Цена: 30409 руб.
Подробнее
СК 11-11 (1.188-5)
Кабины санитарно-технические типа "Колпак" Серия 1.188-5
  • Длина 2730 мм.
  • Ширина 1620 мм.
  • Высота 2400 мм.
  • Вес 3460 кг.
  • Объем бетона 1,363 м3
  • Геометрический объем 10,6142 м3
Цена: 30409 руб.
Подробнее
СК 11-11 р (1.188-5)
Кабины санитарно-технические типа "Колпак" Серия 1.188-5
  • Длина 2730 мм.
  • Ширина 1620 мм.
  • Высота 2400 мм.
  • Вес 3460 кг.
  • Объем бетона 1,363 м3
  • Геометрический объем 10,6142 м3
Цена: 30409 руб.
Подробнее
СК 11-12 в (1.188-5)
Кабины санитарно-технические типа "Колпак" Серия 1.188-5
  • Длина 2730 мм.
  • Ширина 1620 мм.
  • Высота 2400 мм.
  • Вес 3460 кг.
  • Объем бетона 1,363 м3
  • Геометрический объем 10,6142 м3
Цена: 30409 руб.
Подробнее
СК 12 (1.188-5)
Кабины санитарно-технические типа "Колпак" Серия 1.188-5
  • Длина 2730 мм.
  • Ширина 1600 мм.
  • Высота 2360 мм.
  • Вес 2890 кг.
  • Объем бетона 1,154 м3
  • Геометрический объем 10,3085 м3
Цена: 25746 руб.
Подробнее
СК 11-12 (1.188-5)
Кабины санитарно-технические типа "Колпак" Серия 1.188-5
  • Длина 2730 мм.
  • Ширина 1620 мм.
  • Высота 2400 мм.
  • Вес 3460 кг.
  • Объем бетона 1,363 м3
  • Геометрический объем 10,6142 м3
Цена: 30409 руб.
Подробнее
СК 11-12 р (1.188-5)
Кабины санитарно-технические типа "Колпак" Серия 1.188-5
  • Длина 2730 мм.
  • Ширина 1620 мм.
  • Высота 2400 мм.
  • Вес 3460 кг.
  • Объем бетона 1,363 м3
  • Геометрический объем 10,6142 м3
Цена: 30409 руб.
Подробнее
СК 12 (1.188-5)
Кабины санитарно-технические типа "Колпак" Серия 1.188-5
  • Длина 2730 мм.
  • Ширина 1600 мм.
  • Высота 2310 мм.
  • Вес 2900 кг.
  • Объем бетона 1,161 м3
  • Геометрический объем 10,0901 м3
Цена: 25902 руб.
Подробнее
СК 12-01 в (1.188-5)
Кабины санитарно-технические типа "Колпак" Серия 1.188-5
  • Длина 2730 мм.
  • Ширина 1620 мм.
  • Высота 2400 мм.
  • Вес 3460 кг.
  • Объем бетона 1,363 м3
  • Геометрический объем 10,6142 м3
Цена: 30409 руб.
Подробнее
СК 12-01 (1.188-5)
Кабины санитарно-технические типа "Колпак" Серия 1.188-5
  • Длина 2730 мм.
  • Ширина 1620 мм.
  • Высота 2400 мм.
  • Вес 3460 кг.
  • Объем бетона 1,363 м3
  • Геометрический объем 10,6142 м3
Цена: 30409 руб.
Подробнее
СК 12-01 р (1.188-5)
Кабины санитарно-технические типа "Колпак" Серия 1.188-5
  • Длина 2730 мм.
  • Ширина 1620 мм.
  • Высота 2400 мм.
  • Вес 3460 кг.
  • Объем бетона 1,363 м3
  • Геометрический объем 10,6142 м3
Цена: 30409 руб.
Подробнее
СК 12-02 (1.188-5)
Кабины санитарно-технические типа "Колпак" Серия 1.188-5
  • Длина 2730 мм.
  • Ширина 1620 мм.
  • Высота 2400 мм.
  • Вес 3460 кг.
  • Объем бетона 1,363 м3
  • Геометрический объем 10,6142 м3
Цена: 30409 руб.
Подробнее
СК 12-02 в (1.188-5)
Кабины санитарно-технические типа "Колпак" Серия 1.188-5
  • Длина 2730 мм.
  • Ширина 1620 мм.
  • Высота 2400 мм.
  • Вес 3460 кг.
  • Объем бетона 1,363 м3
  • Геометрический объем 10,6142 м3
Цена: 30409 руб.
Подробнее
СК 12-02 р (1.188-5)
Кабины санитарно-технические типа "Колпак" Серия 1.188-5
  • Длина 2730 мм.
  • Ширина 1620 мм.
  • Высота 2400 мм.
  • Вес 3460 кг.
  • Объем бетона 1,363 м3
  • Геометрический объем 10,6142 м3
Цена: 30409 руб.
Подробнее
СК 12-11 (1.188-5)
Кабины санитарно-технические типа "Колпак" Серия 1.188-5
  • Длина 2730 мм.
  • Ширина 1620 мм.
  • Высота 2400 мм.
  • Вес 3460 кг.
  • Объем бетона 1,363 м3
  • Геометрический объем 10,6142 м3
Цена: 30409 руб.
Подробнее
СК 12-11 в (1.188-5)
Кабины санитарно-технические типа "Колпак" Серия 1.188-5
  • Длина 2730 мм.
  • Ширина 1620 мм.
  • Высота 2400 мм.
  • Вес 3460 кг.
  • Объем бетона 1,363 м3
  • Геометрический объем 10,6142 м3
Цена: 30409 руб.
Подробнее
СК 12-12 (1.188-5)
Кабины санитарно-технические типа "Колпак" Серия 1.188-5
  • Длина 2730 мм.
  • Ширина 1620 мм.
  • Высота 2400 мм.
  • Вес 3460 кг.
  • Объем бетона 1,363 м3
  • Геометрический объем 10,6142 м3
Цена: 30409 руб.
Подробнее
СК 12-11 р (1.188-5)
Кабины санитарно-технические типа "Колпак" Серия 1.188-5
  • Длина 2730 мм.
  • Ширина 1620 мм.
  • Высота 2400 мм.
  • Вес 3460 кг.
  • Объем бетона 1,363 м3
  • Геометрический объем 10,6142 м3
Цена: 30409 руб.
Подробнее
СК 12-12 в (1.188-5)
Кабины санитарно-технические типа "Колпак" Серия 1.188-5
  • Длина 2730 мм.
  • Ширина 1620 мм.
  • Высота 2400 мм.
  • Вес 3460 кг.
  • Объем бетона 1,363 м3
  • Геометрический объем 10,6142 м3
Цена: 30409 руб.
Подробнее
СК 12-12 р (1.188-5)
Кабины санитарно-технические типа "Колпак" Серия 1.188-5
  • Длина 2730 мм.
  • Ширина 1620 мм.
  • Высота 2400 мм.
  • Вес 3460 кг.
  • Объем бетона 1,363 м3
  • Геометрический объем 10,6142 м3
Цена: 30409 руб.
Подробнее
СК 13
Кабины санитарно-технические типа "Колпак" Серия 1.188-5
  • Длина 2730 мм.
  • Ширина 1820 мм.
  • Высота 2310 мм.
  • Вес 2773 кг.
  • Объем бетона 1,109 м3
  • Геометрический объем 11,4775 м3
Цена: 24742 руб.
Подробнее
СК 13 (1.188-5)
Кабины санитарно-технические типа "Колпак" Серия 1.188-5
  • Длина 2730 мм.
  • Ширина 1600 мм.
  • Высота 2360 мм.
  • Вес 2760 кг.
  • Объем бетона 1,105 м3
  • Геометрический объем 10,3085 м3
Цена: 24653 руб.
Подробнее
СК 13-01 в (1.188-5)
Кабины санитарно-технические типа "Колпак" Серия 1.188-5
  • Длина 2730 мм.
  • Ширина 1620 мм.
  • Высота 2400 мм.
  • Вес 3320 кг.
  • Объем бетона 1,307 м3
  • Геометрический объем 10,6142 м3
Цена: 29159 руб.
Подробнее
СК 13-01 р (1.188-5)
Кабины санитарно-технические типа "Колпак" Серия 1.188-5
  • Длина 2730 мм.
  • Ширина 1620 мм.
  • Высота 2400 мм.
  • Вес 3320 кг.
  • Объем бетона 1,307 м3
  • Геометрический объем 10,6142 м3
Цена: 29159 руб.
Подробнее
СК 13-02 (1.188-5)
Кабины санитарно-технические типа "Колпак" Серия 1.188-5
  • Длина 2730 мм.
  • Ширина 1620 мм.
  • Высота 2400 мм.
  • Вес 3320 кг.
  • Объем бетона 1,307 м3
  • Геометрический объем 10,6142 м3
Цена: 29159 руб.
Подробнее
СК 13-01 (1.188-5)
Кабины санитарно-технические типа "Колпак" Серия 1.188-5
  • Длина 2730 мм.
  • Ширина 1620 мм.
  • Высота 2400 мм.
  • Вес 3320 кг.
  • Объем бетона 1,307 м3
  • Геометрический объем 10,6142 м3
Цена: 29159 руб.
Подробнее
СК 13-02 в (1.188-5)
Кабины санитарно-технические типа "Колпак" Серия 1.188-5
  • Длина 2730 мм.
  • Ширина 1620 мм.
  • Высота 2400 мм.
  • Вес 3320 кг.
  • Объем бетона 1,307 м3
  • Геометрический объем 10,6142 м3
Цена: 29159 руб.
Подробнее
СК 13-11 р (1.188-5)
Кабины санитарно-технические типа "Колпак" Серия 1.188-5
  • Длина 2730 мм.
  • Ширина 1620 мм.
  • Высота 2400 мм.
  • Вес 3320 кг.
  • Объем бетона 1,307 м3
  • Геометрический объем 10,6142 м3
Цена: 29159 руб.
Подробнее
СК 13-11 в (1.188-5)
Кабины санитарно-технические типа "Колпак" Серия 1.188-5
  • Длина 2730 мм.
  • Ширина 1620 мм.
  • Высота 2400 мм.
  • Вес 3320 кг.
  • Объем бетона 1,307 м3
  • Геометрический объем 10,6142 м3
Цена: 29159 руб.
Подробнее
СК 13-11 (1.188-5)
Кабины санитарно-технические типа "Колпак" Серия 1.188-5
  • Длина 2730 мм.
  • Ширина 1620 мм.
  • Высота 2400 мм.
  • Вес 3320 кг.
  • Объем бетона 1,307 м3
  • Геометрический объем 10,6142 м3
Цена: 29159 руб.
Подробнее
СК 13-02 р (1.188-5)
Кабины санитарно-технические типа "Колпак" Серия 1.188-5
  • Длина 2730 мм.
  • Ширина 1620 мм.
  • Высота 2400 мм.
  • Вес 3320 кг.
  • Объем бетона 1,307 м3
  • Геометрический объем 10,6142 м3
Цена: 29159 руб.
Подробнее
СК 13-12 (1.188-5)
Кабины санитарно-технические типа "Колпак" Серия 1.188-5
  • Длина 2730 мм.
  • Ширина 1620 мм.
  • Высота 2400 мм.
  • Вес 3320 кг.
  • Объем бетона 1,307 м3
  • Геометрический объем 10,6142 м3
Цена: 29159 руб.
Подробнее
СК 13-12 в (1.188-5)
Кабины санитарно-технические типа "Колпак" Серия 1.188-5
  • Длина 2730 мм.
  • Ширина 1620 мм.
  • Высота 2400 мм.
  • Вес 3320 кг.
  • Объем бетона 1,307 м3
  • Геометрический объем 10,6142 м3
Цена: 29159 руб.
Подробнее
СК 13-12 р (1.188-5)
Кабины санитарно-технические типа "Колпак" Серия 1.188-5
  • Длина 2730 мм.
  • Ширина 1620 мм.
  • Высота 2400 мм.
  • Вес 3320 кг.
  • Объем бетона 1,307 м3
  • Геометрический объем 10,6142 м3
Цена: 29159 руб.
Подробнее
СК 14-01 (1.188-5)
Кабины санитарно-технические типа "Колпак" Серия 1.188-5
  • Длина 2730 мм.
  • Ширина 1620 мм.
  • Высота 2400 мм.
  • Вес 3320 кг.
  • Объем бетона 1,307 м3
  • Геометрический объем 10,6142 м3
Цена: 29159 руб.
Подробнее
СК 14 (1.188-5)
Кабины санитарно-технические типа "Колпак" Серия 1.188-5
  • Длина 2730 мм.
  • Ширина 1700 мм.
  • Высота 2310 мм.
  • Вес 2770 кг.
  • Объем бетона 1,109 м3
  • Геометрический объем 10,7207 м3
Цена: 24742 руб.
Подробнее
СК 14 (1.188-5)
Кабины санитарно-технические типа "Колпак" Серия 1.188-5
  • Длина 2730 мм.
  • Ширина 1600 мм.
  • Высота 2360 мм.
  • Вес 2760 кг.
  • Объем бетона 1,105 м3
  • Геометрический объем 10,3085 м3
Цена: 24653 руб.
Подробнее
СК 14-01 в (1.188-5)
Кабины санитарно-технические типа "Колпак" Серия 1.188-5
  • Длина 2730 мм.
  • Ширина 1620 мм.
  • Высота 2400 мм.
  • Вес 3320 кг.
  • Объем бетона 1,307 м3
  • Геометрический объем 10,6142 м3
Цена: 29159 руб.
Подробнее
СК 14-01 р (1.188-5)
Кабины санитарно-технические типа "Колпак" Серия 1.188-5
  • Длина 2730 мм.
  • Ширина 1620 мм.
  • Высота 2400 мм.
  • Вес 3320 кг.
  • Объем бетона 1,307 м3
  • Геометрический объем 10,6142 м3
Цена: 29159 руб.
Подробнее
СК 14-02 (1.188-5)
Кабины санитарно-технические типа "Колпак" Серия 1.188-5
  • Длина 2730 мм.
  • Ширина 1620 мм.
  • Высота 2400 мм.
  • Вес 3320 кг.
  • Объем бетона 1,307 м3
  • Геометрический объем 10,6142 м3
Цена: 29159 руб.
Подробнее
СК 14-02 р (1.188-5)
Кабины санитарно-технические типа "Колпак" Серия 1.188-5
  • Длина 2730 мм.
  • Ширина 1620 мм.
  • Высота 2400 мм.
  • Вес 3320 кг.
  • Объем бетона 1,307 м3
  • Геометрический объем 10,6142 м3
Цена: 29159 руб.
Подробнее
СК 14-02 в (1.188-5)
Кабины санитарно-технические типа "Колпак" Серия 1.188-5
  • Длина 2730 мм.
  • Ширина 1620 мм.
  • Высота 2400 мм.
  • Вес 3320 кг.
  • Объем бетона 1,307 м3
  • Геометрический объем 10,6142 м3
Цена: 29159 руб.
Подробнее
СК 14-11 (1.188-5)
Кабины санитарно-технические типа "Колпак" Серия 1.188-5
  • Длина 2730 мм.
  • Ширина 1620 мм.
  • Высота 2400 мм.
  • Вес 3320 кг.
  • Объем бетона 1,307 м3
  • Геометрический объем 10,6142 м3
Цена: 29159 руб.
Подробнее
СК 14-11 в (1.188-5)
Кабины санитарно-технические типа "Колпак" Серия 1.188-5
  • Длина 2730 мм.
  • Ширина 1620 мм.
  • Высота 2400 мм.
  • Вес 3320 кг.
  • Объем бетона 1,307 м3
  • Геометрический объем 10,6142 м3
Цена: 29159 руб.
Подробнее
СК 14-11 р (1.188-5)
Кабины санитарно-технические типа "Колпак" Серия 1.188-5
  • Длина 2730 мм.
  • Ширина 1620 мм.
  • Высота 2400 мм.
  • Вес 3320 кг.
  • Объем бетона 1,307 м3
  • Геометрический объем 10,6142 м3
Цена: 29159 руб.
Подробнее
СК 14-12 (1.188-5)
Кабины санитарно-технические типа "Колпак" Серия 1.188-5
  • Длина 2730 мм.
  • Ширина 1620 мм.
  • Высота 2400 мм.
  • Вес 3320 кг.
  • Объем бетона 1,307 м3
  • Геометрический объем 10,6142 м3
Цена: 29159 руб.
Подробнее
СК 14-12 в (1.188-5)
Кабины санитарно-технические типа "Колпак" Серия 1.188-5
  • Длина 2730 мм.
  • Ширина 1620 мм.
  • Высота 2400 мм.
  • Вес 3320 кг.
  • Объем бетона 1,307 м3
  • Геометрический объем 10,6142 м3
Цена: 29159 руб.
Подробнее
СК 14-12 р (1.188-5)
Кабины санитарно-технические типа "Колпак" Серия 1.188-5
  • Длина 2730 мм.
  • Ширина 1620 мм.
  • Высота 2400 мм.
  • Вес 3320 кг.
  • Объем бетона 1,307 м3
  • Геометрический объем 10,6142 м3
Цена: 29159 руб.
Подробнее
СК 15
Кабины санитарно-технические типа "Колпак" Серия 1.188-5
  • Длина 2730 мм.
  • Ширина 1820 мм.
  • Высота 2310 мм.
  • Вес 2773 кг.
  • Объем бетона 1,109 м3
  • Геометрический объем 11,4775 м3
Цена: 24742 руб.
Подробнее
СК 15 (1.188-5)
Кабины санитарно-технические типа "Колпак" Серия 1.188-5
  • Длина 2080 мм.
  • Ширина 1820 мм.
  • Высота 2360 мм.
  • Вес 2310 кг.
  • Объем бетона 0,924 м3
  • Геометрический объем 8,934 м3
Цена: 20614 руб.
Подробнее

Как правильно выбрать - Кабины санитарно-технические типа "Колпак" Серия 1.188-5

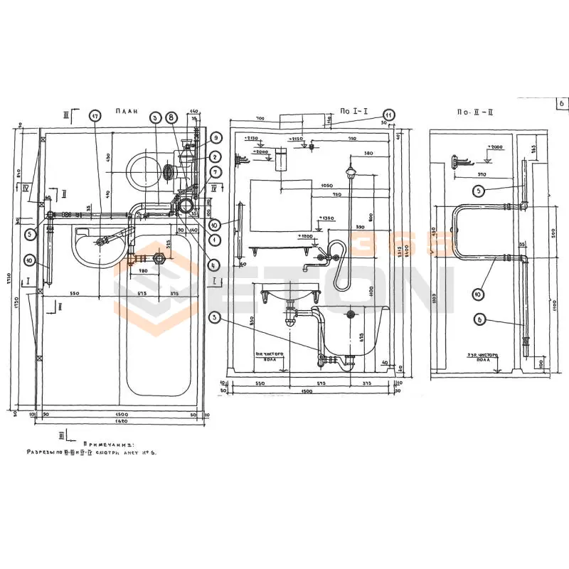
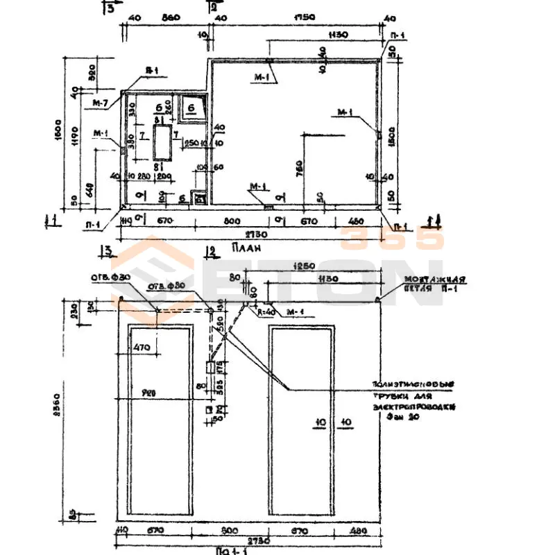
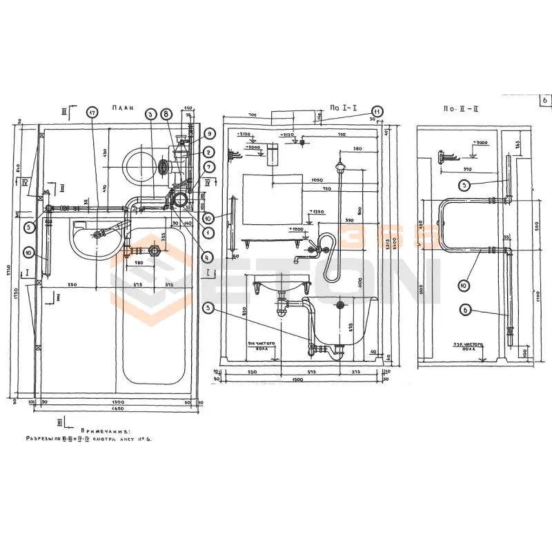
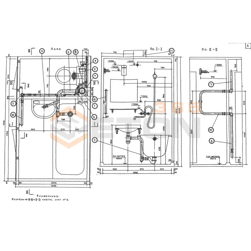
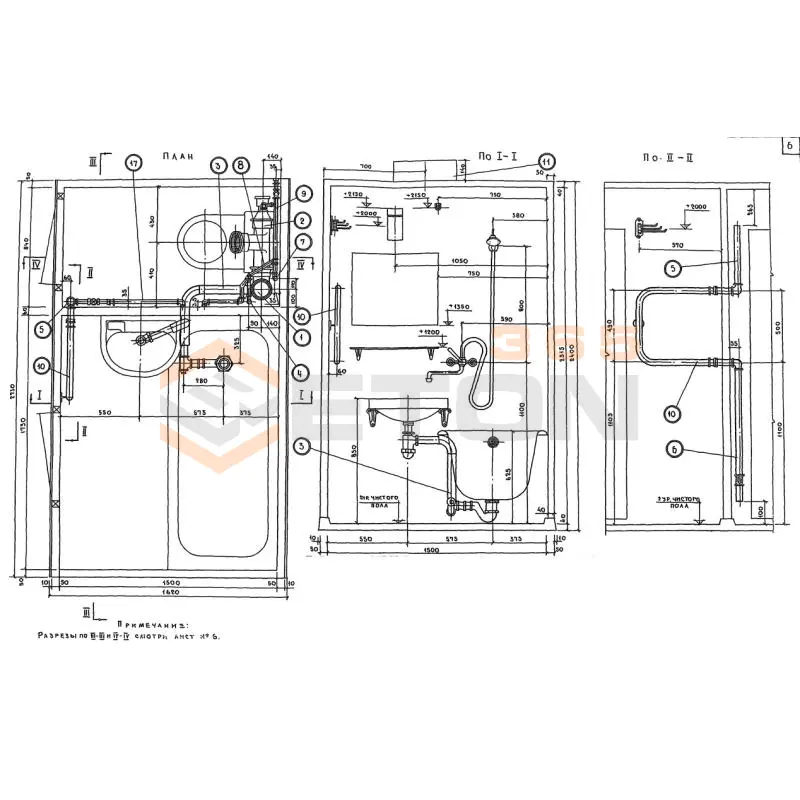
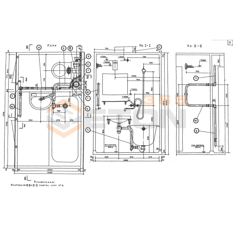
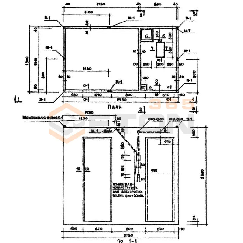
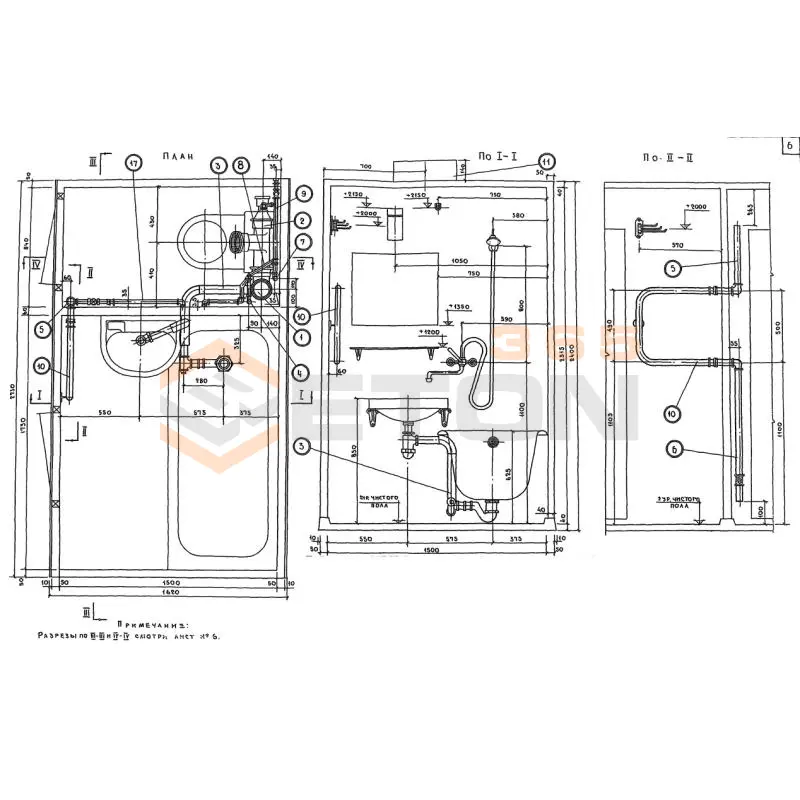
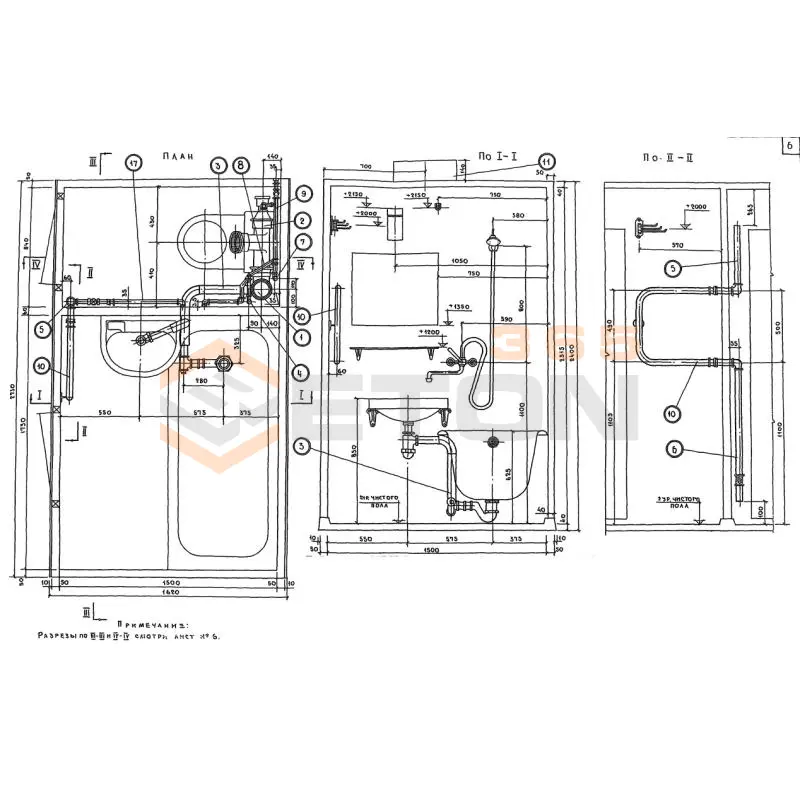
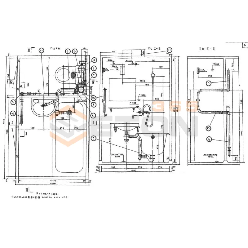
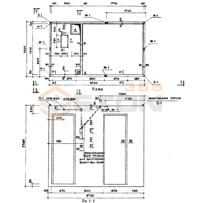
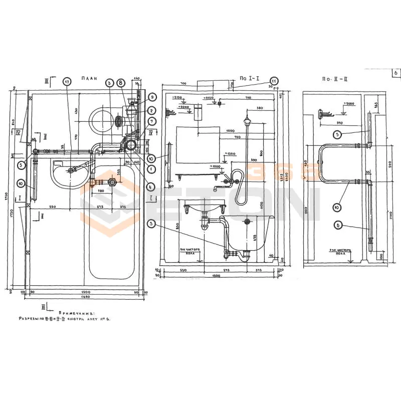
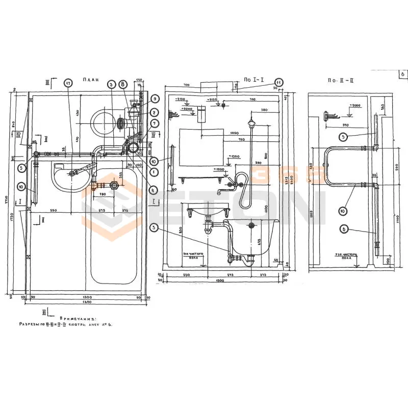
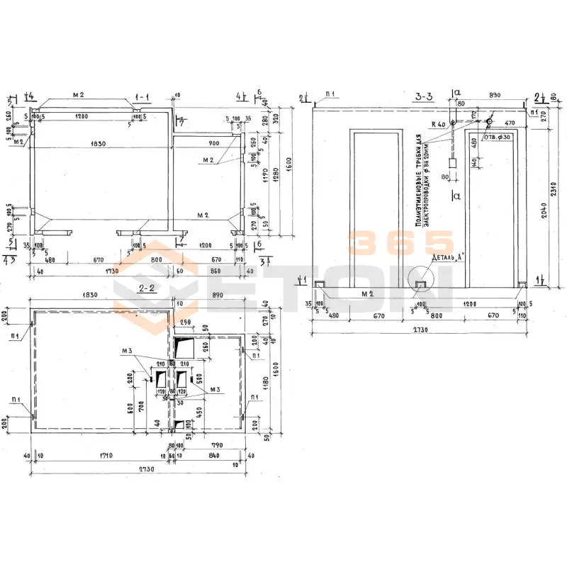
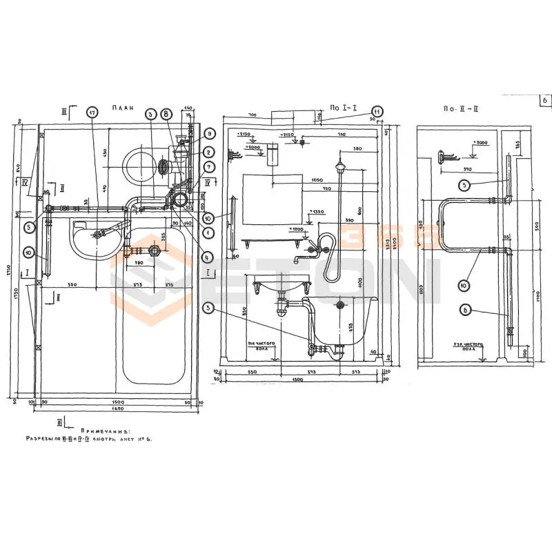
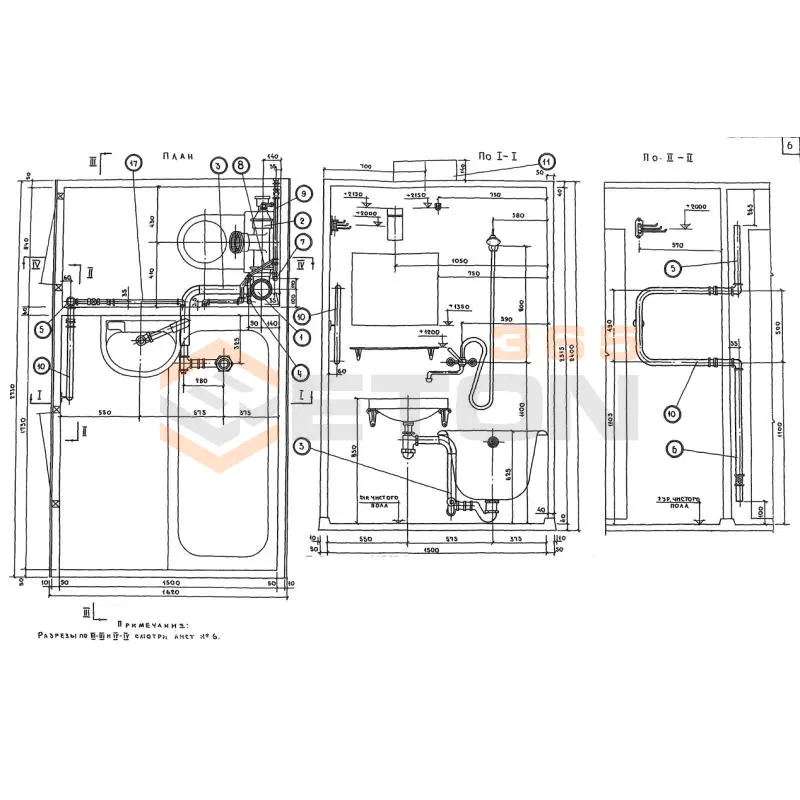
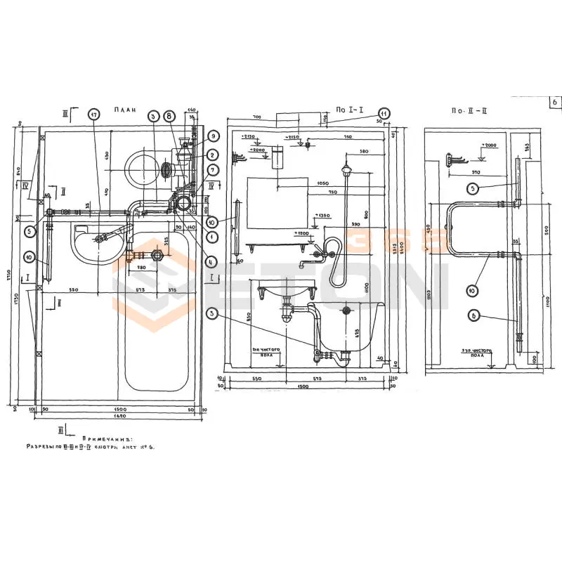
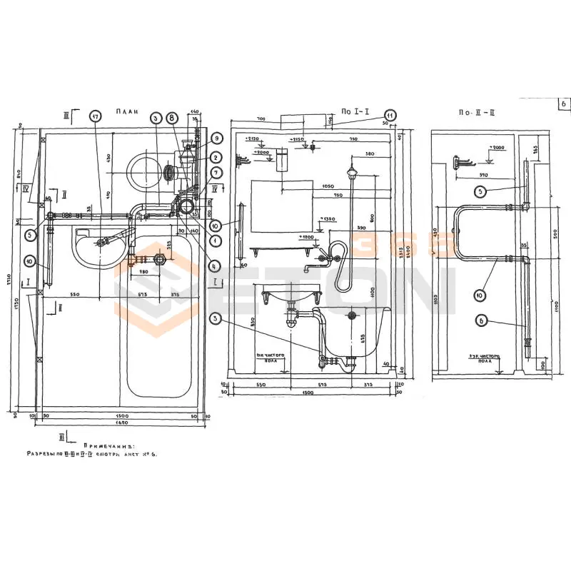
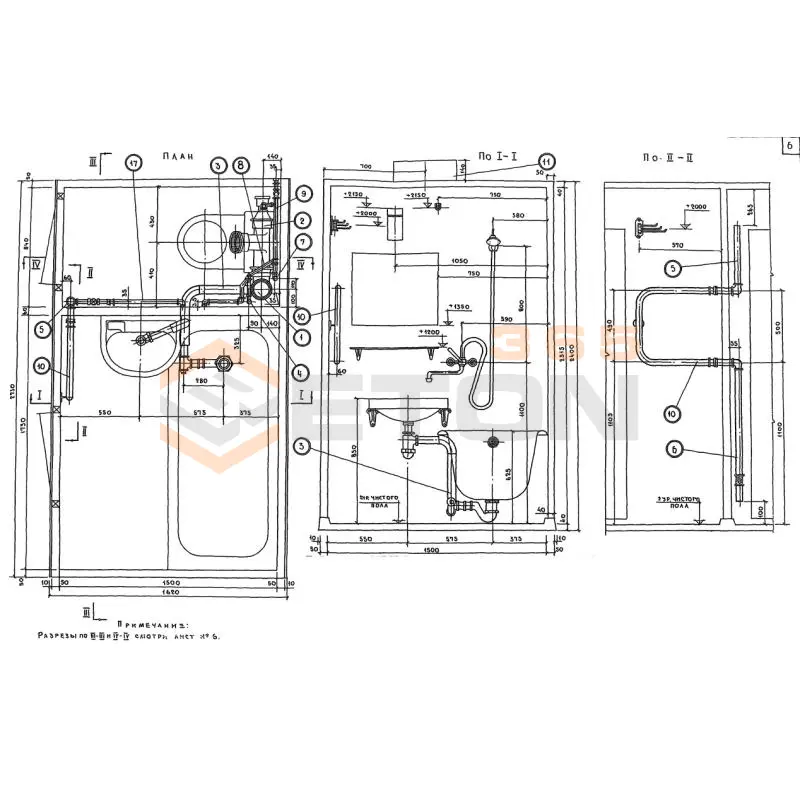
Кабины санитарно-технические типа "Колпак" Серия 1.188-5 представляют собой сборные железобетонные блок-кабины, предназначенные для быстрого возведения санузлов, душевых и других вспомогательных помещений в жилых, общественных и промышленных зданиях. Их ключевая функция – создание герметичного, готового к эксплуатации объема. Долговечность и беспроблемная служба всей санитарной зоны определяются грамотным подбором кабин типа "Колпак" в строгом соответствии с проектным заданием и реальными условиями монтажа.

Критерии выбора

  • Технические параметры бетона: Изделия должны изготавливаться из тяжелого бетона марки не ниже М300, с показателями морозостойкости F150-F200 и водонепроницаемости W4-W6, что критично для влажных помещений.
  • Арматурный каркас: Обращайте внимание на класс напрягаемой и ненапрягаемой арматуры (Ат-IV, А-III), обеспечивающей трещиностойкость и несущую способность стенок.
  • Типоразмер и конфигурация: Сверяйтесь с проектом по габаритным размерам (длина, ширина, высота), наличию и расположению технологических проемов под двери, окна, инженерные коммуникации.
  • Закладные и монтажные элементы: Проверяйте наличие и соответствие чертежам монтажных петель, закладных деталей для стыковки с соседними кабинами и крепления оборудования.
  • Соответствие нормам: Убедитесь, что продукция соответствует требованиям рабочей чертежной серии 1.188-5 и сопутствующим ГОСТ на бетон и арматуру.

Рекомендации по подбору и монтажу

При составлении спецификации на кабины санитарно-технические типа "Колпак" обязательно требуйте у производителя паспорт качества с указанием фактических прочностных характеристик бетона и результатов контроля арматурных каркасов. Учитывайте, что для монтажа требуется подготовленное ровное основание – обычно это монолитная железобетонная плита или перекрытие. Заранее спланируйте подвод и вывод инженерных сетей через предусмотренные в стенках гильзы.

Во время монтажа кабин серии 1.188-5 строго контролируйте вертикальность установки с помощью геодезических инструментов. Стыки между блоками, а также места ввода коммуникаций должны быть тщательно загерметизированы для предотвращения протечек. Не пренебрегайте анкеровкой кабины к основанию, что обеспечит ее устойчивость и предотвратит смещение в процессе эксплуатации.

Ответы экспертов на ваши вопросы

Основные преимущества включают: полную заводскую готовность (поставляются с установленным сантехническим оборудованием), высокую скорость монтажа на объекте, монолитную железобетонную конструкцию, обеспечивающую повышенную прочность и долговечность, хорошие тепло- и звукоизоляционные характеристики, а также унификацию размеров и узлов соединения, что упрощает проектирование и монтаж.

Серия 1.188-5 предусматривает несколько стандартных типоразмеров, которые различаются по габаритам и конфигурации (например, КС-1, КС-2 и т.д.). Основные размеры варьируются в пределах: ширина от 1200 мм до 1600 мм, глубина от 1200 мм до 1400 мм, высота обычно 2550 мм. Подбор осуществляется на основе планировочных решений здания, требуемого количества санитарных приборов и условий монтажа. Рекомендуется руководствоваться рабочими чертежами серии и техническими условиями проекта.

Монтаж выполняется на подготовленное основание (обычно перекрытие здания) с предварительно подведенными коммуникациями (стояки канализации, водопровода, электропроводка). Кабина устанавливается краном на проектные отметки. Требования к основанию: ровная, горизонтальная поверхность с допусками по высоте согласно проекту, наличие закладных деталей или анкеров для крепления (если предусмотрено проектом), а также гидроизоляция в местах примыкания. После установки выполняется подключение к инженерным сетям и герметизация стыков.

Стандартная комплектация включает умывальник и унитаз (в некоторых модификациях — душевой поддон вместо унитаза). Приборы устанавливаются на заводе-изготовителе. Изменение комплектации возможно, но, как правило, требует индивидуального заказа и корректировки рабочей документации, так как конструкция кабины и разводка коммуникаций рассчитываются под конкретный набор оборудования. Все изменения должны согласовываться с производителем и проектной организацией.

Эксплуатация не требует специальных условий. Особенности: необходимо соблюдать общие правила эксплуатации сантехнического оборудования, своевременно проводить профилактические осмотры соединений с коммуникациями, поддерживать чистоту. Конструкция кабины не предусматривает легкого доступа к скрытым коммуникациям без вскрытия отделки, поэтому при капитальном ремонте сетей может потребоваться демонтаж части конструкции. Долговечность железобетонной коробки при правильной эксплуатации составляет десятки лет.

Уведомление о файлах cookie

Мы используем файлы cookie для улучшения вашего опыта просмотра и анализа трафика. Нажимая "Принять все", вы соглашаетесь с нашей политикой конфиденциальности и политикой обработки файлов cookie.

MAX Дзен Телеграм Вконтакте vk