mobile_sound +7 (930) 655-55-90

Кабины санитарно-технические типа "Колпак" для зданий с теплым чердаком Серия 1.188-5

Поделиться:
Фильтр по характеристикам
Длина (мм.)
keyboard_arrow_down
мм.
мм.
Ширина (мм.)
keyboard_arrow_down
мм.
мм.
Высота (мм.)
keyboard_arrow_down
мм.
мм.
Вес (кг.)
keyboard_arrow_down
кг.
кг.
Поделиться:

Завод "Бетон365" производит кабины санитарно-технические типа "Колпак" серии 1.188-5 — специализированные железобетонные конструкции для оборудования санузлов в зданиях с теплым чердаком. Эти изделия отличаются точным соответствием ГОСТам, повышенной прочностью и устойчивостью к внешним воздействиям, что обеспечивает долговечность и надежность эксплуатации в жилых и общественных зданиях. Использование готовых кабин значительно оптимизирует строительный процесс, сокращая сроки монтажа и обеспечивая четкую геометрию помещений.

Мы реализуем кабины санитарно-технические "Колпак" серии 1.188-5 в Москве и МО по конкурентной цене от производителя, с гарантией качества и оперативной доставкой на объект. Приобретая железобетонные изделия напрямую у завода, вы получаете оптимальное соотношение стоимости и надежности. Обращайтесь к нашим специалистам для уточнения характеристик и оформления заказа!

1СК 24
Кабины санитарно-технические типа "Колпак" для зданий с теплым чердаком Серия 1.188-5
  • Длина 2730 мм.
  • Ширина 1600 мм.
  • Высота 2400 мм.
  • Вес 3450 кг.
  • Объем бетона 1,38 м3
  • Геометрический объем 10,4832 м3
Цена: 30788 руб.
Подробнее
1СК 24 лп-01 (1.188-5)
Кабины санитарно-технические типа "Колпак" для зданий с теплым чердаком Серия 1.188-5
  • Длина 2730 мм.
  • Ширина 1600 мм.
  • Высота 2400 мм.
  • Вес 2550 кг.
  • Объем бетона 1,14 м3
  • Геометрический объем 10,4832 м3
Цена: 25433 руб.
Подробнее
1СК 24 лп-01 в (1.188-5)
Кабины санитарно-технические типа "Колпак" для зданий с теплым чердаком Серия 1.188-5
  • Длина 2730 мм.
  • Ширина 1600 мм.
  • Высота 2400 мм.
  • Вес 2550 кг.
  • Объем бетона 1,14 м3
  • Геометрический объем 10,4832 м3
Цена: 25433 руб.
Подробнее
1СК 24 лп-01 р (1.188-5)
Кабины санитарно-технические типа "Колпак" для зданий с теплым чердаком Серия 1.188-5
  • Длина 2730 мм.
  • Ширина 1600 мм.
  • Высота 2400 мм.
  • Вес 2550 кг.
  • Объем бетона 1,14 м3
  • Геометрический объем 10,4832 м3
Цена: 25433 руб.
Подробнее
1СК 24 лп-02 (1.188-5)
Кабины санитарно-технические типа "Колпак" для зданий с теплым чердаком Серия 1.188-5
  • Длина 2730 мм.
  • Ширина 1600 мм.
  • Высота 2400 мм.
  • Вес 2550 кг.
  • Объем бетона 1,14 м3
  • Геометрический объем 10,4832 м3
Цена: 25433 руб.
Подробнее
1СК 24 лп-02 в (1.188-5)
Кабины санитарно-технические типа "Колпак" для зданий с теплым чердаком Серия 1.188-5
  • Длина 2730 мм.
  • Ширина 1600 мм.
  • Высота 2400 мм.
  • Вес 2550 кг.
  • Объем бетона 1,14 м3
  • Геометрический объем 10,4832 м3
Цена: 25433 руб.
Подробнее
1СК 24 лп-02 р (1.188-5)
Кабины санитарно-технические типа "Колпак" для зданий с теплым чердаком Серия 1.188-5
  • Длина 2730 мм.
  • Ширина 1600 мм.
  • Высота 2400 мм.
  • Вес 2550 кг.
  • Объем бетона 1,14 м3
  • Геометрический объем 10,4832 м3
Цена: 25433 руб.
Подробнее
1СК 24 лп-11 (1.188-5)
Кабины санитарно-технические типа "Колпак" для зданий с теплым чердаком Серия 1.188-5
  • Длина 2730 мм.
  • Ширина 1600 мм.
  • Высота 2400 мм.
  • Вес 2550 кг.
  • Объем бетона 1,14 м3
  • Геометрический объем 10,4832 м3
Цена: 25433 руб.
Подробнее
1СК 24 лп-12 (1.188-5)
Кабины санитарно-технические типа "Колпак" для зданий с теплым чердаком Серия 1.188-5
  • Длина 2730 мм.
  • Ширина 1600 мм.
  • Высота 2400 мм.
  • Вес 2550 кг.
  • Объем бетона 1,14 м3
  • Геометрический объем 10,4832 м3
Цена: 25433 руб.
Подробнее
1СК 24 лп-11 в (1.188-5)
Кабины санитарно-технические типа "Колпак" для зданий с теплым чердаком Серия 1.188-5
  • Длина 2730 мм.
  • Ширина 1600 мм.
  • Высота 2400 мм.
  • Вес 2550 кг.
  • Объем бетона 1,14 м3
  • Геометрический объем 10,4832 м3
Цена: 25433 руб.
Подробнее
1СК 24 лп-12 в (1.188-5)
Кабины санитарно-технические типа "Колпак" для зданий с теплым чердаком Серия 1.188-5
  • Длина 2730 мм.
  • Ширина 1600 мм.
  • Высота 2400 мм.
  • Вес 2550 кг.
  • Объем бетона 1,14 м3
  • Геометрический объем 10,4832 м3
Цена: 25433 руб.
Подробнее
1СК 24 лп-11 р (1.188-5)
Кабины санитарно-технические типа "Колпак" для зданий с теплым чердаком Серия 1.188-5
  • Длина 2730 мм.
  • Ширина 1600 мм.
  • Высота 2400 мм.
  • Вес 2550 кг.
  • Объем бетона 1,14 м3
  • Геометрический объем 10,4832 м3
Цена: 25433 руб.
Подробнее
1СК 24 лп-12 р (1.188-5)
Кабины санитарно-технические типа "Колпак" для зданий с теплым чердаком Серия 1.188-5
  • Длина 2730 мм.
  • Ширина 1600 мм.
  • Высота 2400 мм.
  • Вес 2550 кг.
  • Объем бетона 1,14 м3
  • Геометрический объем 10,4832 м3
Цена: 25433 руб.
Подробнее
1СК 24 лт-01 (1.188-5)
Кабины санитарно-технические типа "Колпак" для зданий с теплым чердаком Серия 1.188-5
  • Длина 2730 мм.
  • Ширина 1600 мм.
  • Высота 2400 мм.
  • Вес 3450 кг.
  • Объем бетона 1,38 м3
  • Геометрический объем 10,4832 м3
Цена: 30788 руб.
Подробнее
1СК 24 лт-01 в (1.188-5)
Кабины санитарно-технические типа "Колпак" для зданий с теплым чердаком Серия 1.188-5
  • Длина 2730 мм.
  • Ширина 1600 мм.
  • Высота 2400 мм.
  • Вес 3450 кг.
  • Объем бетона 1,38 м3
  • Геометрический объем 10,4832 м3
Цена: 30788 руб.
Подробнее
1СК 24 лт-02 в (1.188-5)
Кабины санитарно-технические типа "Колпак" для зданий с теплым чердаком Серия 1.188-5
  • Длина 2730 мм.
  • Ширина 1600 мм.
  • Высота 2400 мм.
  • Вес 3450 кг.
  • Объем бетона 1,38 м3
  • Геометрический объем 10,4832 м3
Цена: 30788 руб.
Подробнее
1СК 24 лт-02 (1.188-5)
Кабины санитарно-технические типа "Колпак" для зданий с теплым чердаком Серия 1.188-5
  • Длина 2730 мм.
  • Ширина 1600 мм.
  • Высота 2400 мм.
  • Вес 3450 кг.
  • Объем бетона 1,38 м3
  • Геометрический объем 10,4832 м3
Цена: 30788 руб.
Подробнее
1СК 24 лт-01 р (1.188-5)
Кабины санитарно-технические типа "Колпак" для зданий с теплым чердаком Серия 1.188-5
  • Длина 2730 мм.
  • Ширина 1600 мм.
  • Высота 2400 мм.
  • Вес 3450 кг.
  • Объем бетона 1,38 м3
  • Геометрический объем 10,4832 м3
Цена: 30788 руб.
Подробнее
1СК 24 лт-02 р (1.188-5)
Кабины санитарно-технические типа "Колпак" для зданий с теплым чердаком Серия 1.188-5
  • Длина 2730 мм.
  • Ширина 1600 мм.
  • Высота 2400 мм.
  • Вес 3450 кг.
  • Объем бетона 1,38 м3
  • Геометрический объем 10,4832 м3
Цена: 30788 руб.
Подробнее
1СК 24 лт-11 (1.188-5)
Кабины санитарно-технические типа "Колпак" для зданий с теплым чердаком Серия 1.188-5
  • Длина 2730 мм.
  • Ширина 1600 мм.
  • Высота 2400 мм.
  • Вес 3450 кг.
  • Объем бетона 1,38 м3
  • Геометрический объем 10,4832 м3
Цена: 30788 руб.
Подробнее
1СК 24 лт-12 в (1.188-5)
Кабины санитарно-технические типа "Колпак" для зданий с теплым чердаком Серия 1.188-5
  • Длина 2730 мм.
  • Ширина 1600 мм.
  • Высота 2400 мм.
  • Вес 3450 кг.
  • Объем бетона 1,38 м3
  • Геометрический объем 10,4832 м3
Цена: 30788 руб.
Подробнее
1СК 24 лт-11 в (1.188-5)
Кабины санитарно-технические типа "Колпак" для зданий с теплым чердаком Серия 1.188-5
  • Длина 2730 мм.
  • Ширина 1600 мм.
  • Высота 2400 мм.
  • Вес 3450 кг.
  • Объем бетона 1,38 м3
  • Геометрический объем 10,4832 м3
Цена: 30788 руб.
Подробнее
1СК 24 лт-11 р (1.188-5)
Кабины санитарно-технические типа "Колпак" для зданий с теплым чердаком Серия 1.188-5
  • Длина 2730 мм.
  • Ширина 1600 мм.
  • Высота 2400 мм.
  • Вес 3450 кг.
  • Объем бетона 1,38 м3
  • Геометрический объем 10,4832 м3
Цена: 30788 руб.
Подробнее
1СК 24 лт-12 (1.188-5)
Кабины санитарно-технические типа "Колпак" для зданий с теплым чердаком Серия 1.188-5
  • Длина 2730 мм.
  • Ширина 1600 мм.
  • Высота 2400 мм.
  • Вес 3450 кг.
  • Объем бетона 1,38 м3
  • Геометрический объем 10,4832 м3
Цена: 30788 руб.
Подробнее
1СК 24 лт-12 р (1.188-5)
Кабины санитарно-технические типа "Колпак" для зданий с теплым чердаком Серия 1.188-5
  • Длина 2730 мм.
  • Ширина 1600 мм.
  • Высота 2400 мм.
  • Вес 3450 кг.
  • Объем бетона 1,38 м3
  • Геометрический объем 10,4832 м3
Цена: 30788 руб.
Подробнее
1СК 24 прп-01 (1.188-5)
Кабины санитарно-технические типа "Колпак" для зданий с теплым чердаком Серия 1.188-5
  • Длина 2730 мм.
  • Ширина 1600 мм.
  • Высота 2400 мм.
  • Вес 2550 кг.
  • Объем бетона 1,14 м3
  • Геометрический объем 10,4832 м3
Цена: 25433 руб.
Подробнее
1СК 24 прп-01 в (1.188-5)
Кабины санитарно-технические типа "Колпак" для зданий с теплым чердаком Серия 1.188-5
  • Длина 2730 мм.
  • Ширина 1600 мм.
  • Высота 2400 мм.
  • Вес 2550 кг.
  • Объем бетона 1,14 м3
  • Геометрический объем 10,4832 м3
Цена: 25433 руб.
Подробнее
1СК 24 прп-01 р (1.188-5)
Кабины санитарно-технические типа "Колпак" для зданий с теплым чердаком Серия 1.188-5
  • Длина 2730 мм.
  • Ширина 1600 мм.
  • Высота 2400 мм.
  • Вес 2550 кг.
  • Объем бетона 1,14 м3
  • Геометрический объем 10,4832 м3
Цена: 25433 руб.
Подробнее
1СК 24 прп-02 (1.188-5)
Кабины санитарно-технические типа "Колпак" для зданий с теплым чердаком Серия 1.188-5
  • Длина 2730 мм.
  • Ширина 1600 мм.
  • Высота 2400 мм.
  • Вес 2550 кг.
  • Объем бетона 1,14 м3
  • Геометрический объем 10,4832 м3
Цена: 25433 руб.
Подробнее
1СК 24 прп-02 в (1.188-5)
Кабины санитарно-технические типа "Колпак" для зданий с теплым чердаком Серия 1.188-5
  • Длина 2730 мм.
  • Ширина 1600 мм.
  • Высота 2400 мм.
  • Вес 2550 кг.
  • Объем бетона 1,14 м3
  • Геометрический объем 10,4832 м3
Цена: 25433 руб.
Подробнее
1СК 24 прп-11 (1.188-5)
Кабины санитарно-технические типа "Колпак" для зданий с теплым чердаком Серия 1.188-5
  • Длина 2730 мм.
  • Ширина 1600 мм.
  • Высота 2400 мм.
  • Вес 2550 кг.
  • Объем бетона 1,14 м3
  • Геометрический объем 10,4832 м3
Цена: 25433 руб.
Подробнее
1СК 24 прп-02 р (1.188-5)
Кабины санитарно-технические типа "Колпак" для зданий с теплым чердаком Серия 1.188-5
  • Длина 2730 мм.
  • Ширина 1600 мм.
  • Высота 2400 мм.
  • Вес 2550 кг.
  • Объем бетона 1,14 м3
  • Геометрический объем 10,4832 м3
Цена: 25433 руб.
Подробнее
1СК 24 прп-11 в (1.188-5)
Кабины санитарно-технические типа "Колпак" для зданий с теплым чердаком Серия 1.188-5
  • Длина 2730 мм.
  • Ширина 1600 мм.
  • Высота 2400 мм.
  • Вес 2550 кг.
  • Объем бетона 1,14 м3
  • Геометрический объем 10,4832 м3
Цена: 25433 руб.
Подробнее
1СК 24 прп-12 (1.188-5)
Кабины санитарно-технические типа "Колпак" для зданий с теплым чердаком Серия 1.188-5
  • Длина 2730 мм.
  • Ширина 1600 мм.
  • Высота 2400 мм.
  • Вес 2550 кг.
  • Объем бетона 1,14 м3
  • Геометрический объем 10,4832 м3
Цена: 25433 руб.
Подробнее
1СК 24 прп-11 р (1.188-5)
Кабины санитарно-технические типа "Колпак" для зданий с теплым чердаком Серия 1.188-5
  • Длина 2730 мм.
  • Ширина 1600 мм.
  • Высота 2400 мм.
  • Вес 2550 кг.
  • Объем бетона 1,14 м3
  • Геометрический объем 10,4832 м3
Цена: 25433 руб.
Подробнее
1СК 24 прп-12 в (1.188-5)
Кабины санитарно-технические типа "Колпак" для зданий с теплым чердаком Серия 1.188-5
  • Длина 2730 мм.
  • Ширина 1600 мм.
  • Высота 2400 мм.
  • Вес 2550 кг.
  • Объем бетона 1,14 м3
  • Геометрический объем 10,4832 м3
Цена: 25433 руб.
Подробнее
1СК 24 прт-01 (1.188-5)
Кабины санитарно-технические типа "Колпак" для зданий с теплым чердаком Серия 1.188-5
  • Длина 2730 мм.
  • Ширина 1600 мм.
  • Высота 2400 мм.
  • Вес 3450 кг.
  • Объем бетона 1,38 м3
  • Геометрический объем 10,4832 м3
Цена: 30788 руб.
Подробнее
1СК 24 прп-12 р (1.188-5)
Кабины санитарно-технические типа "Колпак" для зданий с теплым чердаком Серия 1.188-5
  • Длина 2730 мм.
  • Ширина 1600 мм.
  • Высота 2400 мм.
  • Вес 2550 кг.
  • Объем бетона 1,14 м3
  • Геометрический объем 10,4832 м3
Цена: 25433 руб.
Подробнее
1СК 24 прт-01 р (1.188-5)
Кабины санитарно-технические типа "Колпак" для зданий с теплым чердаком Серия 1.188-5
  • Длина 2730 мм.
  • Ширина 1600 мм.
  • Высота 2400 мм.
  • Вес 3450 кг.
  • Объем бетона 1,38 м3
  • Геометрический объем 10,4832 м3
Цена: 30788 руб.
Подробнее
1СК 24 прт-01 в (1.188-5)
Кабины санитарно-технические типа "Колпак" для зданий с теплым чердаком Серия 1.188-5
  • Длина 2730 мм.
  • Ширина 1600 мм.
  • Высота 2400 мм.
  • Вес 3450 кг.
  • Объем бетона 1,38 м3
  • Геометрический объем 10,4832 м3
Цена: 30788 руб.
Подробнее
1СК 24 прт-02 в (1.188-5)
Кабины санитарно-технические типа "Колпак" для зданий с теплым чердаком Серия 1.188-5
  • Длина 2730 мм.
  • Ширина 1600 мм.
  • Высота 2400 мм.
  • Вес 3450 кг.
  • Объем бетона 1,38 м3
  • Геометрический объем 10,4832 м3
Цена: 30788 руб.
Подробнее
1СК 24 прт-02 р (1.188-5)
Кабины санитарно-технические типа "Колпак" для зданий с теплым чердаком Серия 1.188-5
  • Длина 2730 мм.
  • Ширина 1600 мм.
  • Высота 2400 мм.
  • Вес 3450 кг.
  • Объем бетона 1,38 м3
  • Геометрический объем 10,4832 м3
Цена: 30788 руб.
Подробнее
1СК 24 прт-02 (1.188-5)
Кабины санитарно-технические типа "Колпак" для зданий с теплым чердаком Серия 1.188-5
  • Длина 2730 мм.
  • Ширина 1600 мм.
  • Высота 2400 мм.
  • Вес 3450 кг.
  • Объем бетона 1,38 м3
  • Геометрический объем 10,4832 м3
Цена: 30788 руб.
Подробнее
1СК 24 прт-11 (1.188-5)
Кабины санитарно-технические типа "Колпак" для зданий с теплым чердаком Серия 1.188-5
  • Длина 2730 мм.
  • Ширина 1600 мм.
  • Высота 2400 мм.
  • Вес 3450 кг.
  • Объем бетона 1,38 м3
  • Геометрический объем 10,4832 м3
Цена: 30788 руб.
Подробнее
1СК 24 прт-11 в (1.188-5)
Кабины санитарно-технические типа "Колпак" для зданий с теплым чердаком Серия 1.188-5
  • Длина 2730 мм.
  • Ширина 1600 мм.
  • Высота 2400 мм.
  • Вес 3450 кг.
  • Объем бетона 1,38 м3
  • Геометрический объем 10,4832 м3
Цена: 30788 руб.
Подробнее
1СК 24 прт-11 р (1.188-5)
Кабины санитарно-технические типа "Колпак" для зданий с теплым чердаком Серия 1.188-5
  • Длина 2730 мм.
  • Ширина 1600 мм.
  • Высота 2400 мм.
  • Вес 3450 кг.
  • Объем бетона 1,38 м3
  • Геометрический объем 10,4832 м3
Цена: 30788 руб.
Подробнее
1СК 24 прт-12 (1.188-5)
Кабины санитарно-технические типа "Колпак" для зданий с теплым чердаком Серия 1.188-5
  • Длина 2730 мм.
  • Ширина 1600 мм.
  • Высота 2400 мм.
  • Вес 3450 кг.
  • Объем бетона 1,38 м3
  • Геометрический объем 10,4832 м3
Цена: 30788 руб.
Подробнее
1СК 24 прт-12 в (1.188-5)
Кабины санитарно-технические типа "Колпак" для зданий с теплым чердаком Серия 1.188-5
  • Длина 2730 мм.
  • Ширина 1600 мм.
  • Высота 2400 мм.
  • Вес 3450 кг.
  • Объем бетона 1,38 м3
  • Геометрический объем 10,4832 м3
Цена: 30788 руб.
Подробнее
1СК 24 прт-12 р (1.188-5)
Кабины санитарно-технические типа "Колпак" для зданий с теплым чердаком Серия 1.188-5
  • Длина 2730 мм.
  • Ширина 1600 мм.
  • Высота 2400 мм.
  • Вес 3450 кг.
  • Объем бетона 1,38 м3
  • Геометрический объем 10,4832 м3
Цена: 30788 руб.
Подробнее
2СК 24
Кабины санитарно-технические типа "Колпак" для зданий с теплым чердаком Серия 1.188-5
  • Длина 2730 мм.
  • Ширина 1600 мм.
  • Высота 2400 мм.
  • Вес 3350 кг.
  • Объем бетона 1,34 м3
  • Геометрический объем 10,4832 м3
Цена: 29895 руб.
Подробнее
2СК 24 лп-01 в (1.188-5)
Кабины санитарно-технические типа "Колпак" для зданий с теплым чердаком Серия 1.188-5
  • Длина 2730 мм.
  • Ширина 1600 мм.
  • Высота 2400 мм.
  • Вес 2500 кг.
  • Объем бетона 1,11 м3
  • Геометрический объем 10,4832 м3
Цена: 24764 руб.
Подробнее
2СК 24 лп-01 (1.188-5)
Кабины санитарно-технические типа "Колпак" для зданий с теплым чердаком Серия 1.188-5
  • Длина 2730 мм.
  • Ширина 1600 мм.
  • Высота 2400 мм.
  • Вес 2500 кг.
  • Объем бетона 1,11 м3
  • Геометрический объем 10,4832 м3
Цена: 24764 руб.
Подробнее
2СК 24 лп-01 р (1.188-5)
Кабины санитарно-технические типа "Колпак" для зданий с теплым чердаком Серия 1.188-5
  • Длина 2730 мм.
  • Ширина 1600 мм.
  • Высота 2400 мм.
  • Вес 2500 кг.
  • Объем бетона 1,11 м3
  • Геометрический объем 10,4832 м3
Цена: 24764 руб.
Подробнее
2СК 24 лп-02 (1.188-5)
Кабины санитарно-технические типа "Колпак" для зданий с теплым чердаком Серия 1.188-5
  • Длина 2730 мм.
  • Ширина 1600 мм.
  • Высота 2400 мм.
  • Вес 2500 кг.
  • Объем бетона 1,11 м3
  • Геометрический объем 10,4832 м3
Цена: 24764 руб.
Подробнее
2СК 24 лп-02 в (1.188-5)
Кабины санитарно-технические типа "Колпак" для зданий с теплым чердаком Серия 1.188-5
  • Длина 2730 мм.
  • Ширина 1600 мм.
  • Высота 2400 мм.
  • Вес 2500 кг.
  • Объем бетона 1,11 м3
  • Геометрический объем 10,4832 м3
Цена: 24764 руб.
Подробнее
2СК 24 лп-02 р (1.188-5)
Кабины санитарно-технические типа "Колпак" для зданий с теплым чердаком Серия 1.188-5
  • Длина 2730 мм.
  • Ширина 1600 мм.
  • Высота 2400 мм.
  • Вес 2500 кг.
  • Объем бетона 1,11 м3
  • Геометрический объем 10,4832 м3
Цена: 24764 руб.
Подробнее
2СК 24 лп-11 (1.188-5)
Кабины санитарно-технические типа "Колпак" для зданий с теплым чердаком Серия 1.188-5
  • Длина 2730 мм.
  • Ширина 1600 мм.
  • Высота 2400 мм.
  • Вес 2500 кг.
  • Объем бетона 1,11 м3
  • Геометрический объем 10,4832 м3
Цена: 24764 руб.
Подробнее
2СК 24 лп-11 в (1.188-5)
Кабины санитарно-технические типа "Колпак" для зданий с теплым чердаком Серия 1.188-5
  • Длина 2730 мм.
  • Ширина 1600 мм.
  • Высота 2400 мм.
  • Вес 2500 кг.
  • Объем бетона 1,11 м3
  • Геометрический объем 10,4832 м3
Цена: 24764 руб.
Подробнее
2СК 24 лп-11 р (1.188-5)
Кабины санитарно-технические типа "Колпак" для зданий с теплым чердаком Серия 1.188-5
  • Длина 2730 мм.
  • Ширина 1600 мм.
  • Высота 2400 мм.
  • Вес 2500 кг.
  • Объем бетона 1,11 м3
  • Геометрический объем 10,4832 м3
Цена: 24764 руб.
Подробнее
2СК 24 лп-12 (1.188-5)
Кабины санитарно-технические типа "Колпак" для зданий с теплым чердаком Серия 1.188-5
  • Длина 2730 мм.
  • Ширина 1600 мм.
  • Высота 2400 мм.
  • Вес 2500 кг.
  • Объем бетона 1,11 м3
  • Геометрический объем 10,4832 м3
Цена: 24764 руб.
Подробнее

Как правильно выбрать - Кабины санитарно-технические типа "Колпак" для зданий с теплым чердаком Серия 1.188-5

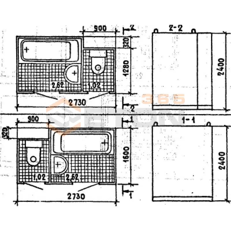
Кабины санитарно-технические типа "Колпак" серии 1.188-5 представляют собой сборные железобетонные конструкции, предназначенные для устройства вентиляционных блоков и размещения санитарно-технического оборудования (стояков, вентканалов) в жилых зданиях с теплым чердаком. Их ключевая функция — обеспечение эффективного воздухообмена и защита инженерных систем в чердачном пространстве. Долговечность и бесперебойная работа всей вентиляционной системы здания напрямую зависят от соответствия кабин "Колпак" проектным решениям и условиям эксплуатации.

Критерии выбора

  • Технические параметры бетона: Изделия изготавливаются из тяжелого бетона марки не ниже М300. Критически важны показатели морозостойкости (F200) и водонепроницаемости (W4-W6), так как кабины работают в условиях перепадов температур и возможного образования конденсата.
  • Армирование: Каркас выполняется из стальной арматуры классов А-I и А-III. Необходимо проверять паспорт на соответствие проектной схеме армирования, обеспечивающей трещиностойкость и несущую способность.
  • Геометрия и конфигурация: Строгое соответствие типоразмерам, указанным в рабочих чертежах серии 1.188-5. Проверяйте наличие и расположение монтажных петель, а также технологических отверстий для пропуска коммуникаций.
  • Комплектность и сопряжение: Убедитесь, что выбранные кабины "Колпак" конструктивно совместимы с элементами покрытия здания (плитами, лотками) и другими сборными деталями вентблока по серии.
  • Нормативная база: Обязательно соответствие ГОСТ 13015.0-83 и техническим условиям (ТУ), регламентирующим производство именно этой серии. Запросите сертификаты и паспорт качества.

Рекомендации по подбору и монтажу

При составлении спецификации на кабины санитарно-технические типа "Колпак" для зданий с теплым чердаком Серия 1.188-5 учитывайте полную комплектацию узла: помимо самой кабины, могут потребоваться доборные элементы и крышки. Приемку на площадке проводите с осмотром на отсутствие сквозных трещин и сколов углов, которые могут нарушить герметичность.

Монтаж кабин "Колпак" выполняйте на подготовленное и выверенное основание — опорный контур плит покрытия. Ключевой момент — обеспечение проектного положения и надежной анкеровки изделия к несущим конструкциям для противодействия ветровым нагрузкам. Герметизацию стыков с сопрягаемыми элементами необходимо выполнять материалами, устойчивыми к атмосферным воздействиям и перепадам температур в чердачном пространстве.

Ответы экспертов на ваши вопросы

Кабины типа "Колпак" обеспечивают эффективную вентиляцию теплого чердака через вытяжные каналы, предотвращая образование конденсата и поддерживая оптимальный температурно-влажностный режим. Они монтируются как готовые блоки, что ускоряет строительство, и соответствуют требованиям серии 1.188-5 по пожарной безопасности и звукоизоляции.

Монтаж выполняется на этапе возведения здания с использованием грузоподъемной техники. Кабины устанавливаются в проектное положение, выравниваются и закрепляются анкерами. Обязательна герметизация стыков и подключение к вентиляционным каналам чердака. Серия 1.188-5 предусматривает четкие требования к подготовке основания и совместимости с другими конструкциями.

Долговечность достигается за счет применения влагостойкого бетона, защитного покрытия внутренних поверхностей и антикоррозионной обработки металлических элементов. Конструкция исключает скопление влаги, а вентиляционные каналы спроектированы для предотвращения обмерзания. Соответствие серии 1.188-5 гарантирует стойкость к температурным перепадам и агрессивной среде.

Серия 1.188-5 включает кабины стандартных размеров, например, 1200x900 мм и 1500x1200 мм, с вариантами по высоте. Модификации различаются по количеству и расположению вентиляционных отверстий, наличию дополнительных технологических люков. Все параметры указаны в рабочих чертежах серии, что позволяет подобрать изделие под конкретные планировочные решения здания.

Да, конструкция способствует энергоэффективности здания: теплый чердак снижает теплопотери, а кабины оптимизируют воздухообмен без излишнего охлаждения помещений. Серия 1.188-5 разработана с учетом актуальных норм по теплозащите, используемые материалы имеют низкую теплопроводность, что помогает соблюдать стандарты энергосбережения.

Уведомление о файлах cookie

Мы используем файлы cookie для улучшения вашего опыта просмотра и анализа трафика. Нажимая "Принять все", вы соглашаетесь с нашей политикой конфиденциальности и политикой обработки файлов cookie.

MAX Дзен Телеграм Вконтакте vk