mobile_sound +7 (930) 655-55-90

Фундаментные блоки пустотные ФБП серия 1.116.1-8 и ГОСТ 13579-78

Поделиться:
Фильтр по характеристикам
Длина (мм.)
keyboard_arrow_down
мм.
мм.
Ширина (мм.)
keyboard_arrow_down
мм.
мм.
Высота (мм.)
keyboard_arrow_down
мм.
мм.
Вес (кг.)
keyboard_arrow_down
кг.
кг.
Поделиться:

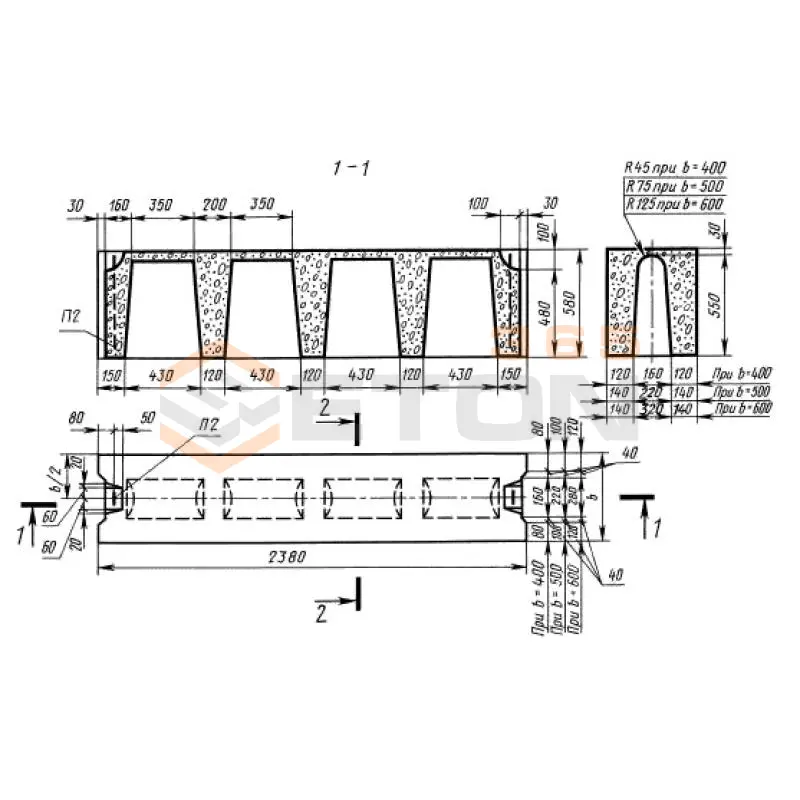
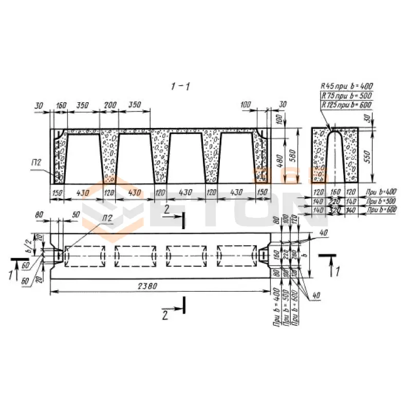
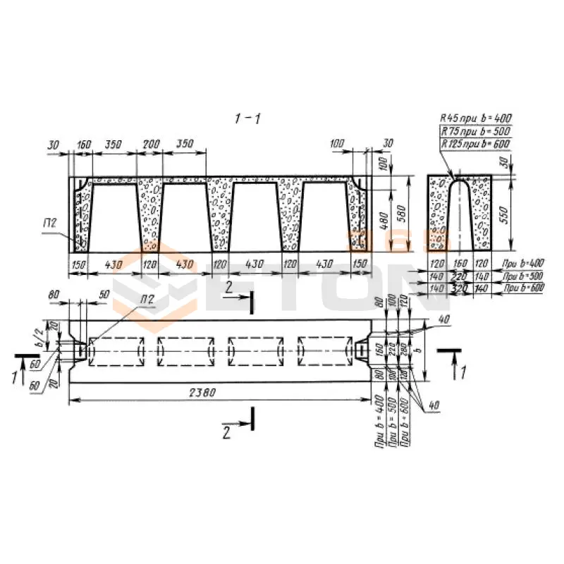
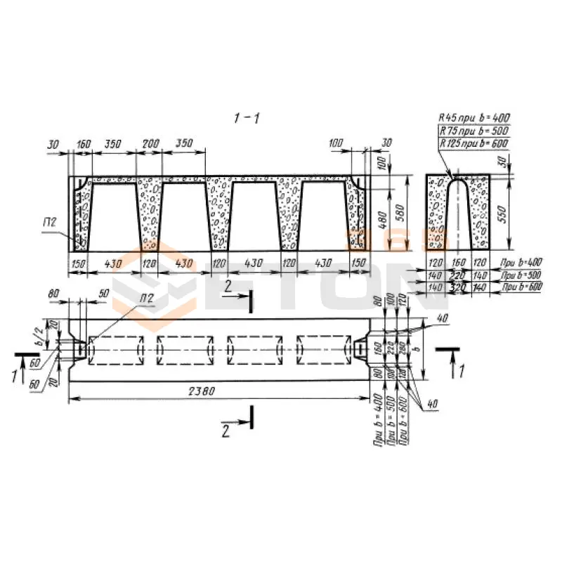
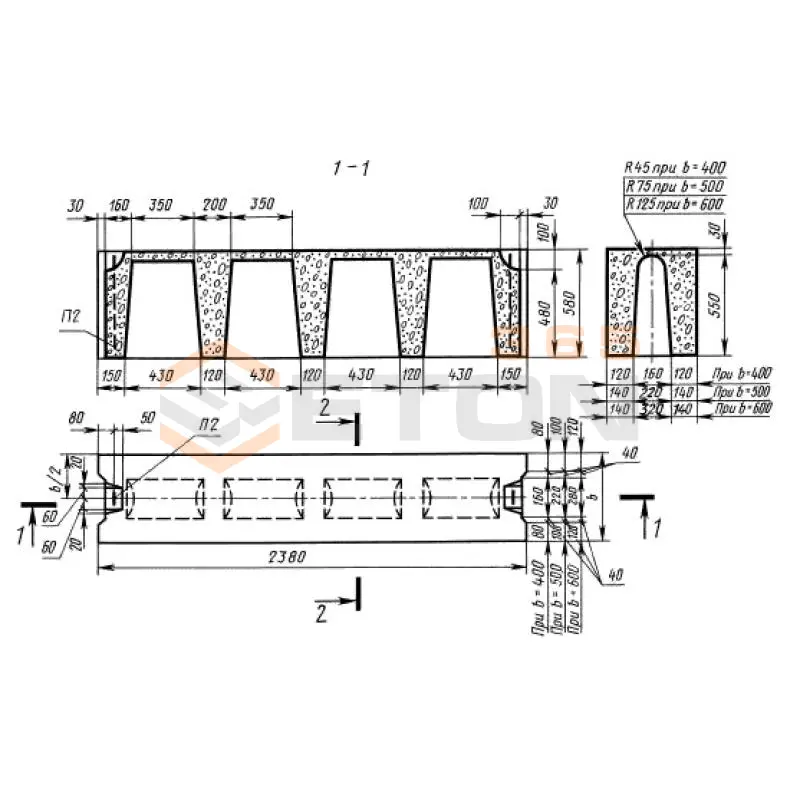
Завод "Бетон365" производит фундаментные блоки пустотные ФБП серии 1.116.1-8, соответствующие требованиям ГОСТ 13579-78 — это современное решение для эффективного строительства несущих стен подвалов и цокольных этажей. Конструктивные особенности изделий с технологическими пустотами обеспечивают оптимальное распределение нагрузок, повышая общую жесткость сооружения, а также позволяют прокладывать инженерные коммуникации без дополнительных работ. Применение таких блоков значительно сокращает сроки возведения объектов различного назначения, гарантируя при этом долговечность и надежность всей конструкции.

В Москве и Московской области мы реализуем пустотные блоки ФБП напрямую от производителя, что позволяет предложить конкурентную цену без посреднических надбавок. Купить фундаментные блоки ФБП серии 1.116.1-8 у нас — это получить сертифицированную продукцию с гарантией качества, оперативной доставкой на объект и профессиональными консультациями по выбору оптимальных решений для вашего строительства. Обращайтесь для расчета стоимости и оформления заказа!

ФБП 24-4-6
Фундаментные блоки пустотные ФБП серия 1.116.1-8 и ГОСТ 13579-78
  • Длина 2380 мм.
  • Ширина 400 мм.
  • Высота 580 мм.
  • Вес 790 кг.
  • Объем бетона 0,44 м3
  • Геометрический объем 0,5522 м3
Цена: 4055 руб.
Подробнее
ФБП 24-4-6 п
Фундаментные блоки пустотные ФБП серия 1.116.1-8 и ГОСТ 13579-78
  • Длина 2380 мм.
  • Ширина 400 мм.
  • Высота 580 мм.
  • Вес 1050 кг.
  • Объем бетона 0,439 м3
  • Геометрический объем 0,5522 м3
Цена: 4045 руб.
Подробнее
ФБП 24-4-6 т
Фундаментные блоки пустотные ФБП серия 1.116.1-8 и ГОСТ 13579-78
  • Длина 2380 мм.
  • Ширина 400 мм.
  • Высота 580 мм.
  • Вес 1050 кг.
  • Объем бетона 0,439 м3
  • Геометрический объем 0,5522 м3
Цена: 4045 руб.
Подробнее
ФБП 24-4-6 с
Фундаментные блоки пустотные ФБП серия 1.116.1-8 и ГОСТ 13579-78
  • Длина 2380 мм.
  • Ширина 400 мм.
  • Высота 580 мм.
  • Вес 1050 кг.
  • Объем бетона 0,439 м3
  • Геометрический объем 0,5522 м3
Цена: 4045 руб.
Подробнее
ФБП 24-6-6
Фундаментные блоки пустотные ФБП серия 1.116.1-8 и ГОСТ 13579-78
  • Длина 2380 мм.
  • Ширина 600 мм.
  • Высота 580 мм.
  • Вес 1050 кг.
  • Объем бетона 0,58 м3
  • Геометрический объем 0,8282 м3
Цена: 5345 руб.
Подробнее
ФБП 24-5-6 с
Фундаментные блоки пустотные ФБП серия 1.116.1-8 и ГОСТ 13579-78
  • Длина 2380 мм.
  • Ширина 500 мм.
  • Высота 580 мм.
  • Вес 1260 кг.
  • Объем бетона 0,526 м3
  • Геометрический объем 0,6902 м3
Цена: 4847 руб.
Подробнее
ФБП 24-5-6 п
Фундаментные блоки пустотные ФБП серия 1.116.1-8 и ГОСТ 13579-78
  • Длина 2380 мм.
  • Ширина 500 мм.
  • Высота 580 мм.
  • Вес 1260 кг.
  • Объем бетона 0,526 м3
  • Геометрический объем 0,6902 м3
Цена: 4847 руб.
Подробнее
ФБП 24-5-6 т
Фундаментные блоки пустотные ФБП серия 1.116.1-8 и ГОСТ 13579-78
  • Длина 2380 мм.
  • Ширина 500 мм.
  • Высота 580 мм.
  • Вес 1260 кг.
  • Объем бетона 0,526 м3
  • Геометрический объем 0,6902 м3
Цена: 4847 руб.
Подробнее
ФБП 24-6-6 п
Фундаментные блоки пустотные ФБП серия 1.116.1-8 и ГОСТ 13579-78
  • Длина 2380 мм.
  • Ширина 600 мм.
  • Высота 580 мм.
  • Вес 1400 кг.
  • Объем бетона 0,583 м3
  • Геометрический объем 0,8282 м3
Цена: 5372 руб.
Подробнее
ФБП 24-6-6 с
Фундаментные блоки пустотные ФБП серия 1.116.1-8 и ГОСТ 13579-78
  • Длина 2380 мм.
  • Ширина 600 мм.
  • Высота 580 мм.
  • Вес 1400 кг.
  • Объем бетона 0,583 м3
  • Геометрический объем 0,8282 м3
Цена: 5372 руб.
Подробнее
ФБП 24-6-6 т
Фундаментные блоки пустотные ФБП серия 1.116.1-8 и ГОСТ 13579-78
  • Длина 2380 мм.
  • Ширина 600 мм.
  • Высота 580 мм.
  • Вес 1400 кг.
  • Объем бетона 0,58 м3
  • Геометрический объем 0,8282 м3
Цена: 5345 руб.
Подробнее

Как правильно выбрать - Фундаментные блоки пустотные ФБП серия 1.116.1-8 и ГОСТ 13579-78

Фундаментные блоки пустотные ФБП серия 1.116.1-8 и ГОСТ 13579-78 применяются для устройства сборных ленточных фундаментов под несущие стены зданий, а также для возведения стен подвалов и технических подполий. Ключевая функция — передача и распределение нагрузок от здания на основание, при этом пустоты позволяют снизить вес и материалоемкость конструкции. Долговечность и надежность фундаментной системы определяются строгим соответствием характеристик блоков ФБП проектным расчетам и реальным условиям грунтов.

Критерии выбора

  • Марка бетона и прочность: Блоки ФБП изготавливаются из тяжелого бетона класса не ниже В12.5 (марка М150) или В15 (М200). Проверяйте паспорт на соответствие.
  • Морозостойкость и водонепроницаемость: Для большинства регионов требуется морозостойкость F100-F200 и водонепроницаемость W4-W6, особенно при высоком УГВ или в пучинистых грунтах.
  • Типоразмер и конфигурация: Сверяйте габариты (длину, ширину, высоту) и расположение пустот с рабочими чертежами. Наличие монтажных петель — обязательное требование ГОСТ.
  • Армирование: Проверяйте класс и схему армирования. Каркасы обычно изготавливаются из стальной арматуры класса А-I или А-III.
  • Качество геометрии и поверхности: Отсутствие трещин, сколов ребер и отклонений по геометрии более чем на ±10 мм — критически важно для плотной стыковки блоков ФБП.
  • Нормативный документ: Убедитесь, что изделие соответствует именно серии 1.116.1-8 и ГОСТ 13579-78, а не ТУ, которые могут допускать упрощения.

Рекомендации по подбору и монтажу

При закупке фундаментных блоков пустотных ФБП серия 1.116.1-8 и ГОСТ 13579-78 требуйте полный комплект сопроводительной документации, включая паспорта качества на каждую партию с указанием фактических прочностных характеристик и марки бетона. Учитывайте, что пустоты в блоках не должны заполняться бетоном при монтаже — их основное назначение снижение нагрузки на основание и, в некоторых случаях, прокладка коммуникаций.

При проектировании и монтаже фундаментов из блоков ФБП обязательна подготовка основания — песчано-щебеночная подушка, выровненная и уплотненная. Монтаж ведется на цементно-песчаный раствор с перевязкой вертикальных швов. Особое внимание уделите гидроизоляции боковых поверхностей и верха блоков, особенно для стен подвалов. Не допускается монтаж блоков с видимыми дефектами торцевых поверхностей, так как это приведет к неравномерной передаче нагрузок.

Ответы экспертов на ваши вопросы

Фундаментные блоки пустотные ФБП имеют несколько ключевых преимуществ:

  • Меньший вес по сравнению с полнотелыми блоками при сохранении прочностных характеристик
  • Экономия материала до 30-40% за счет пустот
  • Улучшенные теплоизоляционные свойства благодаря воздушным полостям
  • Возможность прокладки инженерных коммуникаций через технологические пустоты
  • Снижение нагрузки на основание и транспортные расходы
  • Ускорение монтажных работ за счет меньшей массы

ГОСТ 13579-78 устанавливает следующие основные технические требования:

  • Марки бетона по прочности: В7,5-В15
  • Марки бетона по морозостойкости: F50-F200
  • Марки бетона по водонепроницаемости: W2-W4
  • Классы арматуры: А-I, А-III
  • Допустимые отклонения геометрических параметров
  • Требования к качеству поверхности и внешнему виду
  • Методы контроля и испытаний готовой продукции

Фундаментные блоки пустотные ФБП применяются для:

  • Сборных ленточных фундаментов малоэтажных зданий
  • Стен подвалов и технических подполий
  • Цокольных этажей жилых и общественных зданий
  • Промышленных зданий с небольшой нагрузкой
  • Строительства в сейсмических районах до 7 баллов
  • Временных и вспомогательных сооружений
  • Особенно эффективны при высоком уровне грунтовых вод

Основные особенности монтажа включают:

  • Обязательное устройство песчано-гравийной подготовки
  • Необходимость заполнения пустот бетоном после установки
  • Требование горизонтальной гидроизоляции между блоками
  • Обязательное армирование горизонтальных швов
  • Особое внимание к качеству заделки стыков между блоками
  • Возможность устройства монолитного пояса поверх блоков
  • Необходимость точного выравнивания по осям и отметкам

Серия 1.116.1-8 предусматривает следующие основные типоразмеры:

  • Длина: 1180 мм, 2380 мм
  • Ширина: 400 мм, 500 мм, 600 мм
  • Высота: 580 мм
  • Маркировка: ФБП-Х.Х.Х, где цифры обозначают длину, ширину и высоту в дециметрах
  • Например: ФБП-12.4.6 (1180×400×580 мм)
  • Все блоки имеют сквозные вертикальные пустоты диаметром 127-159 мм
  • Масса блоков варьируется от 300 до 1000 кг в зависимости от размеров

Уведомление о файлах cookie

Мы используем файлы cookie для улучшения вашего опыта просмотра и анализа трафика. Нажимая "Принять все", вы соглашаетесь с нашей политикой конфиденциальности и политикой обработки файлов cookie.

MAX Дзен Телеграм Вконтакте vk