mobile_sound +7 (930) 655-55-90

Знаки Серия 3.503-8/74

Поделиться:
Фильтр по характеристикам
Длина (мм.)
keyboard_arrow_down
мм.
мм.
Ширина (мм.)
keyboard_arrow_down
мм.
мм.
Высота (мм.)
keyboard_arrow_down
мм.
мм.
Вес (кг.)
keyboard_arrow_down
кг.
кг.
Поделиться:

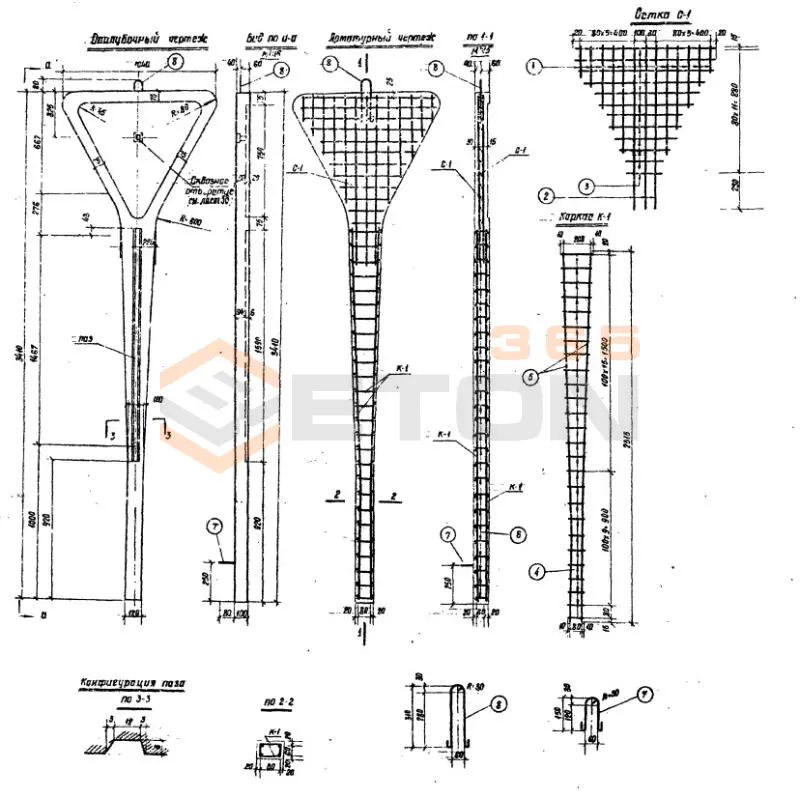
Завод "Бетон365" производит знаки серии 3.503-8/74 — специализированные железобетонные изделия, которые служат для маркировки и организации пространства на строительных площадках, промышленных объектах и территориях различного назначения. Эти элементы изготавливаются в строгом соответствии с ГОСТ, обладают повышенной прочностью и устойчивостью к атмосферным воздействиям, что гарантирует их долговечность даже при интенсивной эксплуатации. Использование таких знаков упрощает навигацию, повышает безопасность и способствует оптимизации рабочих процессов.

Мы реализуем знаки серии 3.503-8/74 по доступной цене от производителя в Москве и Московской области. При заказе предоставляется сертифицированная гарантия качества, а также доступна оперативная доставка на объект. Чтобы купить надежные железобетонные знаки и получить консультацию по их применению, обратитесь к нашим специалистам — поможем подобрать оптимальное решение для ваших задач.

Б 1 (3.503-8/74)
Знаки Серия 3.503-8/74
  • Длина 1040 мм.
  • Ширина 100 мм.
  • Высота 3325 мм.
  • Вес 205 кг.
  • Объем бетона 0,082 м3
  • Геометрический объем 0,3458 м3
Цена: 3182 руб.
Подробнее
Б 2 (3.503-8/74)
Знаки Серия 3.503-8/74
  • Длина 1040 мм.
  • Ширина 100 мм.
  • Высота 3410 мм.
  • Вес 285 кг.
  • Объем бетона 0,114 м3
  • Геометрический объем 0,3546 м3
Цена: 4423 руб.
Подробнее
Б 5 (3.503-8/74)
Знаки Серия 3.503-8/74
  • Длина 850 мм.
  • Ширина 100 мм.
  • Высота 3450 мм.
  • Вес 277,5 кг.
  • Объем бетона 0,111 м3
  • Геометрический объем 0,2933 м3
Цена: 4307 руб.
Подробнее
Б 3 (3.503-8/74)
Знаки Серия 3.503-8/74
  • Длина 850 мм.
  • Ширина 100 мм.
  • Высота 3250 мм.
  • Вес 250 кг.
  • Объем бетона 0,1 м3
  • Геометрический объем 0,2762 м3
Цена: 3880 руб.
Подробнее
Б 4 (3.503-8/74)
Знаки Серия 3.503-8/74
  • Длина 850 мм.
  • Ширина 100 мм.
  • Высота 3250 мм.
  • Вес 250 кг.
  • Объем бетона 0,108 м3
  • Геометрический объем 0,2762 м3
Цена: 4190 руб.
Подробнее
Б 7 (3.503-8/74)
Знаки Серия 3.503-8/74
  • Длина 400 мм.
  • Ширина 100 мм.
  • Высота 2800 мм.
  • Вес 115 кг.
  • Объем бетона 0,045 м3
  • Геометрический объем 0,112 м3
Цена: 1746 руб.
Подробнее
Б 6 (3.503-8/74)
Знаки Серия 3.503-8/74
  • Длина 400 мм.
  • Ширина 300 мм.
  • Высота 2750 мм.
  • Вес 325 кг.
  • Объем бетона 0,13 м3
  • Геометрический объем 0,33 м3
Цена: 5044 руб.
Подробнее

Как правильно выбрать - Знаки Серия 3.503-8/74

Знаки дорожные по Серии 3.503-8/74 предназначены для организации безопасного и упорядоченного движения транспорта и пешеходов на улицах, дорогах и территориях предприятий. Они устанавливаются на металлических опорах или существующих конструкциях и выполняют ключевую функцию информирования и предупреждения участников дорожного движения. Долговечность и эффективность всей системы навигации напрямую зависят от соответствия выбранных знаков проектным условиям и агрессивным факторам внешней среды.

Критерии выбора

  • Типоразмер и исполнение: Определите необходимый типоразмер знака (I, II, III, IV) в соответствии с местом установки (вне населенного пункта, на дорогах с многополосным движением и т.д.), а также тип – плоский или объемный.
  • Качество лицевых поверхностей: Убедитесь, что применяется световозвращающая пленка коммерческого, инженерного или высокоинтенсивного типа в зависимости от требуемой видимости в темное время суток.
  • Основа и конструкция: Проверьте материал основы – алюминиевый сплав или оцинкованная сталь, а также толщину и конструкцию каркаса (двойная отбортовка), обеспечивающую жесткость и стойкость к ветровым нагрузкам.
  • Крепежные элементы: Наличие и тип штатных крепежных отверстий или универсальных узлов крепления («язычки») для надежного монтажа на опору.
  • Соответствие нормам: Изделие должно строго соответствовать требованиям Серии 3.503-8/74, ГОСТ Р 52290-2004 и Техническому регламенту Таможенного союза 014/2011.

Рекомендации по подбору и монтажу

При составлении спецификации на знаки Серия 3.503-8/74 обязательно указывайте не только тип знака, но и класс пленки и тип основы. Запрашивайте у поставщика сертификаты соответствия и паспорта на партию. При проектировании учитывайте розу ветров и интенсивность движения на участке для выбора знаков с достаточной жесткостью и устойчивостью.

Монтаж знаков данной серии должен производиться на подготовленные, устойчивые опоры. Крепеж (хомуты, болты) должен быть оцинкованным для защиты от коррозии. Затяжку креплений необходимо проводить с контролем момента, чтобы избежать деформации каркаса знака. После установки убедитесь в отсутствии вибрации полотна знака при ветровой нагрузке.

Ответы экспертов на ваши вопросы

Серия 3.503-8/74 включает следующие основные типы знаков:

  • Указатели направлений (маршрутные указатели)
  • Предупреждающие знаки
  • Запрещающие знаки
  • Информационные таблички
  • Указатели эвакуационных выходов Назначение данных знаков - обеспечение безопасности и ориентации людей в зданиях и сооружениях, указание направлений движения, информирование о расположении различных помещений и служб.

Согласно Серии 3.503-8/74, знаки изготавливаются из:

  • Листовой стали толщиной 1-2 мм
  • Пластика (винипласт, оргстекло)
  • Алюминиевых сплавов Покрытие знаков должно обеспечивать:
  • Стойкость к внешним воздействиям
  • Хорошую видимость в любое время суток
  • Долговечность (не менее 10 лет эксплуатации) Для стальных знаков применяется грунтовка и эмалевое покрытие, для пластиковых - стойкие красители.

Серия 3.503-8/74 предусматривает следующие типоразмеры знаков:

  • Малые знаки: 100×200 мм, 150×300 мм
  • Средние знаки: 200×400 мм, 300×600 мм
  • Крупные знаки: 400×800 мм, 600×1200 мм Конкретный размер выбирается в зависимости от:
  • Условий видимости
  • Расстояния, с которого должен читаться знак
  • Важности передаваемой информации
  • Архитектурных особенностей помещения

Монтаж знаков по Серии 3.503-8/74 осуществляется следующими способами:

  • На винтах или шурупах к стенам и колоннам
  • С помощью кронштейнов для крепления к потолку или фермам
  • Встраиваемый монтаж в строительные конструкции
  • Навеска на тросах или цепях Требования к монтажу:
  • Надежное крепление, исключающее падение
  • Расположение на высоте 2-2,5 м от уровня пола
  • Обеспечение хорошей обзорности
  • Соответствие требованиям пожарной безопасности

Особенности применения знаков Серии 3.503-8/74 в зависимости от типа зданий:

  • В общественных зданиях: преимущественно информационные и указательные знаки
  • В производственных помещениях: предупреждающие и запрещающие знаки
  • В учебных заведениях: маршрутные указатели и эвакуационные знаки
  • В медицинских учреждениях: специализированные указатели отделений
  • В торговых центрах: навигационные системы и рекламные указатели Для каждого типа здания выбирается соответствующая цветовая гамма, размеры и места размещения знаков.
Ранее смотрели
Плиты многопустотные Серия Б1.041.1-1.2000 ПК 72-12-3 Ат800 (Б1.041.1-1.2000)
ПК 72-12-3 Ат800 (Б1.041.1-1.2000)
Плиты многопустотные Серия Б1.041.1-1.2000
Плиты многопустотные Серия Б1.041.1-1.2000 ПК 60-15-3 Ат800 (Б1.041.1-1.2000)
ПК 60-15-3 Ат800 (Б1.041.1-1.2000)
Плиты многопустотные Серия Б1.041.1-1.2000
Плиты многопустотные Серия Б1.041.1-1.2000 ПК 63-12-4 Ат800 (Б1.041.1-1.2000)
ПК 63-12-4 Ат800 (Б1.041.1-1.2000)
Плиты многопустотные Серия Б1.041.1-1.2000
Плиты многопустотные Серия Б1.041.1-1.2000 ПК 63-12-3 Ат800 (Б1.041.1-1.2000)
ПК 63-12-3 Ат800 (Б1.041.1-1.2000)
Плиты многопустотные Серия Б1.041.1-1.2000
Плиты многопустотные Серия Б1.041.1-1.2000 ПК 60-12-8 Ат800 (Б1.041.1-1.2000)
ПК 60-12-8 Ат800 (Б1.041.1-1.2000)
Плиты многопустотные Серия Б1.041.1-1.2000
Плиты многопустотные Серия Б1.041.1-1.2000 ПК 60-12-4 Ат800 (Б1.041.1-1.2000)
ПК 60-12-4 Ат800 (Б1.041.1-1.2000)
Плиты многопустотные Серия Б1.041.1-1.2000
Плиты многопустотные Серия Б1.041.1-1.2000 ПК 63-12-8 Ат800 (Б1.041.1-1.2000)
ПК 63-12-8 Ат800 (Б1.041.1-1.2000)
Плиты многопустотные Серия Б1.041.1-1.2000
Лотки водосточные без уклона СТО 57388863-001-2008 ЛВК 100-400-410 (в к-те с усил.насадками,чугун.решетками)
ЛВК 100-400-410 (в к-те с усил.насадками,чугун.решетками)
Мотки водосточные без уклона СТО 57388863-001-2008

Уведомление о файлах cookie

Мы используем файлы cookie для улучшения вашего опыта просмотра и анализа трафика. Нажимая "Принять все", вы соглашаетесь с нашей политикой конфиденциальности и политикой обработки файлов cookie.

MAX Дзен Телеграм Вконтакте vk