mobile_sound +7 (930) 655-55-90

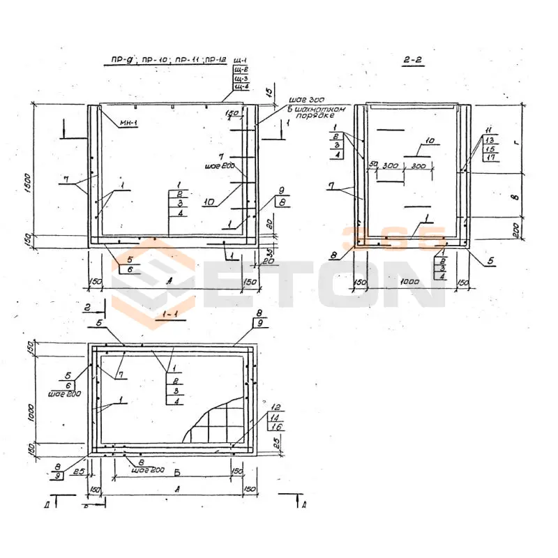
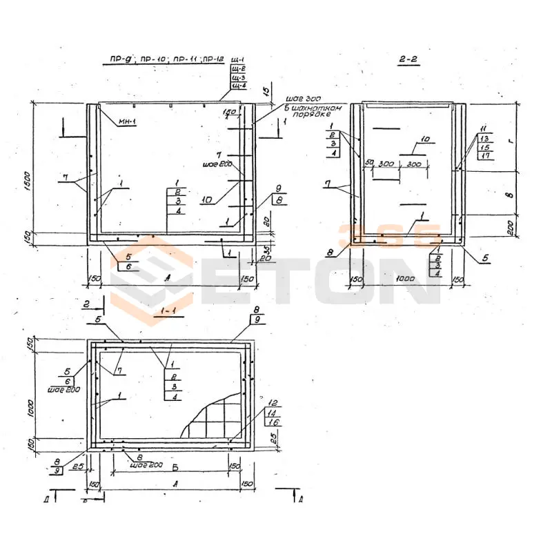
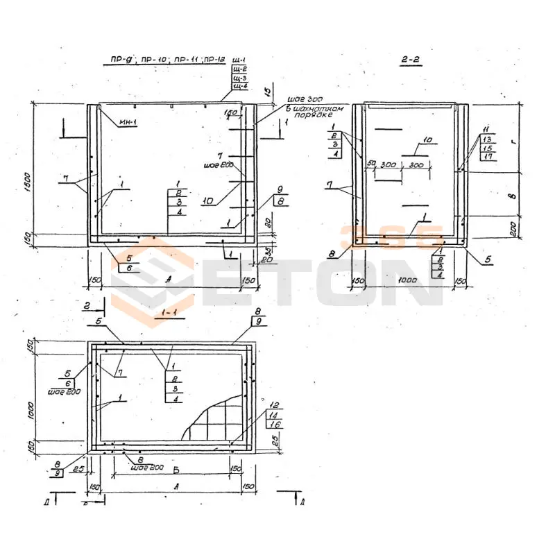
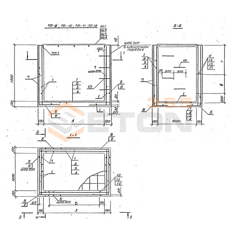
Приямки монолитные Серия 3.006 КР-1

Поделиться:
Фильтр по характеристикам
Длина (мм.)
keyboard_arrow_down
мм.
мм.
Ширина (мм.)
keyboard_arrow_down
мм.
мм.
Высота (мм.)
keyboard_arrow_down
мм.
мм.
Вес (кг.)
keyboard_arrow_down
кг.
кг.
Объем бетона (м3)
keyboard_arrow_down
м3
м3
Поделиться:

Завод "Бетон365" производит приямки монолитные серии 3.006 КР-1 — специализированные железобетонные конструкции для обустройства пристенных приямков в промышленном и гражданском строительстве. Эти изделия обеспечивают надежную защиту подвальных и цокольных окон от затекания воды, механических повреждений и воздействия окружающей среды, одновременно выполняя функцию светопропускающих элементов. Изготовленные в соответствии с требованиями ГОСТ из тяжелого бетона повышенной прочности, наши приямки отличаются долговечностью, устойчивостью к перепадам температур и значительным эксплуатационным ресурсом.

Мы реализуем приямки монолитные серии 3.006 КР-1 напрямую от производителя в Москве и Московской области по конкурентным ценам, что позволяет заказчикам существенно экономить на посреднических наценках. Предлагаем полный комплекс услуг — от помощи в выборе оптимальной конфигурации изделий до оперативной доставки на объект и консультаций по монтажу. Гарантируем соответствие продукции заявленным техническим характеристикам и оперативное исполнение заказов любой сложности — обращайтесь для расчета стоимости и оформления заказа!

ПР 10 (3.006 КР-1)
Приямки монолитные Серия 3.006 КР-1
  • Длина 1600 мм.
  • Ширина 1300 мм.
  • Высота 1300 мм.
  • Вес 3525 кг.
  • Объем бетона 1,41 м3
  • Геометрический объем 2,704 м3
Цена: 54708 руб.
Подробнее
ПР 1 (3.006 КР-1)
Приямки монолитные Серия 3.006 КР-1
  • Длина 1300 мм.
  • Ширина 1300 мм.
  • Высота 950 мм.
  • Вес 1900 кг.
  • Объем бетона 0,76 м3
  • Геометрический объем 1,6055 м3
Цена: 29488 руб.
Подробнее
ПР 11 (3.006 КР-1)
Приямки монолитные Серия 3.006 КР-1
  • Длина 1900 мм.
  • Ширина 1300 мм.
  • Высота 1300 мм.
  • Вес 3950 кг.
  • Объем бетона 1,58 м3
  • Геометрический объем 3,211 м3
Цена: 61304 руб.
Подробнее
ПР 3 (3.006 КР-1)
Приямки монолитные Серия 3.006 КР-1
  • Длина 1900 мм.
  • Ширина 1300 мм.
  • Высота 950 мм.
  • Вес 2500 кг.
  • Объем бетона 1 м3
  • Геометрический объем 2,3465 м3
Цена: 38800 руб.
Подробнее
ПР 12 (3.006 КР-1)
Приямки монолитные Серия 3.006 КР-1
  • Длина 2200 мм.
  • Ширина 1300 мм.
  • Высота 1300 мм.
  • Вес 4350 кг.
  • Объем бетона 1,74 м3
  • Геометрический объем 3,718 м3
Цена: 67512 руб.
Подробнее
ПР 2 (3.006 КР-1)
Приямки монолитные Серия 3.006 КР-1
  • Длина 1600 мм.
  • Ширина 1300 мм.
  • Высота 950 мм.
  • Вес 2150 кг.
  • Объем бетона 0,86 м3
  • Геометрический объем 1,976 м3
Цена: 33368 руб.
Подробнее
ПР 4 (3.006 КР-1)
Приямки монолитные Серия 3.006 КР-1
  • Длина 2200 мм.
  • Ширина 1300 мм.
  • Высота 950 мм.
  • Вес 2800 кг.
  • Объем бетона 1,12 м3
  • Геометрический объем 2,717 м3
Цена: 43456 руб.
Подробнее
ПР 5 (3.006 КР-1)
Приямки монолитные Серия 3.006 КР-1
  • Длина 1300 мм.
  • Ширина 1300 мм.
  • Высота 1000 мм.
  • Вес 2600 кг.
  • Объем бетона 1,04 м3
  • Геометрический объем 1,69 м3
Цена: 40352 руб.
Подробнее
ПР 6 (3.006 КР-1)
Приямки монолитные Серия 3.006 КР-1
  • Длина 1600 мм.
  • Ширина 1300 мм.
  • Высота 1000 мм.
  • Вес 2925 кг.
  • Объем бетона 1,17 м3
  • Геометрический объем 2,08 м3
Цена: 45396 руб.
Подробнее
ПР 8 (3.006 КР-1)
Приямки монолитные Серия 3.006 КР-1
  • Длина 2200 мм.
  • Ширина 1300 мм.
  • Высота 1000 мм.
  • Вес 3600 кг.
  • Объем бетона 1,44 м3
  • Геометрический объем 2,86 м3
Цена: 55872 руб.
Подробнее
ПР 7 (3.006 КР-1)
Приямки монолитные Серия 3.006 КР-1
  • Длина 1900 мм.
  • Ширина 1300 мм.
  • Высота 1000 мм.
  • Вес 3300 кг.
  • Объем бетона 1,32 м3
  • Геометрический объем 2,47 м3
Цена: 51216 руб.
Подробнее
ПР 9 (3.006 КР-1)
Приямки монолитные Серия 3.006 КР-1
  • Длина 1300 мм.
  • Ширина 1300 мм.
  • Высота 1300 мм.
  • Вес 3125 кг.
  • Объем бетона 1,25 м3
  • Геометрический объем 2,197 м3
Цена: 48500 руб.
Подробнее

Как правильно выбрать - Приямки монолитные Серия 3.006 КР-1

Монолитные приямки серии 3.006 КР-1 предназначены для устройства световых и обзорных проемов в стенах подвалов и цокольных этажей, обеспечивая доступ естественного света и организацию аварийных выходов. Они применяются в гражданском и промышленном строительстве, формируя надежную и герметичную конструкцию приямка. Долговечность и функциональность всей подземной части здания во многом определяются корректным подбором параметров этих монолитных приямков в соответствии с проектными решениями и гидрогеологическими условиями площадки.

Критерии выбора

  • Класс бетона и марки по водонепроницаемости/морозостойкости: Изделие изготавливается из тяжелого бетона класса не ниже В25, с высокой маркой по водонепроницаемости (W6-W8) и морозостойкости (F200-F300), что критически важно для контакта с грунтовыми водами.
  • Геометрические параметры и конфигурация: Необходимо сверять габаритные размеры (глубину, длину, ширину) и форму (прямоугольная) с рабочими чертежами. Убедитесь в наличии предусмотренных проектом монтажных петель или закладных деталей для крепления защитных решеток.
  • Армирование: Каркас должен быть выполнен из арматурной стали класса А-III (А400). Проверяйте соответствие паспорта изделия на диаметр и шаг арматуры.
  • Соответствие нормативной документации: Обязательно требование сертификатов соответствия и паспортов, подтверждающих изготовление по Серии 3.006 КР-1 и актуальным ГОСТ на железобетонные конструкции.
  • Система гидроизоляции и дренажа: Уточните конструктивные особенности приямка, обеспечивающие эффективный отвод воды (наличие уклона дна, места для установки дренажного насоса или отвода в систему ливневой канализации).

Рекомендации по подбору и монтажу

При составлении спецификации на приямки монолитные Серии 3.006 КР-1 важно учитывать не только типоразмер, но и уровень грунтовых вод (УГВ) на участке. Для высокого УГВ выбирайте исполнения с максимальной маркой по водонепроницаемости. Перед монтажом обязательна проверка паспорта качества, где указаны фактические прочностные характеристики бетона и дата его изготовления.

Монтаж начинается с подготовки надежного песчано-щебеночного основания и устройства бетонной подготовки. После установки приямка необходимо выполнить его надежную гидроизоляцию по внешним стенкам, совместив ее с гидроизоляцией фундамента и стены подвала. Особое внимание уделите герметизации узла примыкания конструкции приямка к стене здания, используя для этого рекомендуемые производителем герметики и уплотнительные ленты. Правильно подобранные и смонтированные приямки серии 3.006 КР-1 обеспечат долговечную и беспроблемную эксплуатацию подвальных помещений.

Ответы экспертов на ваши вопросы

Ответ: Приямки монолитные серии 3.006 КР-1 предназначены для устройства ввода инженерных коммуникаций (трубопроводов, кабелей) в здания и сооружения через фундаменты и стены подвалов. Они обеспечивают герметичный проход, защищают от проникновения грунтовых вод и используются в гражданском и промышленном строительстве.

Ответ: Приямки изготавливаются из тяжелого гидротехнического бетона класса не ниже В25 (М350) с повышенной водонепроницаемостью (W6-W8) и морозостойкостью (F150-F200). Армирование выполняется стальной арматурой. Основные преимущества: высокая прочность, долговечность, отличная гидроизоляция, стойкость к агрессивным грунтовым водам и перепадам температур.

Ответ: Серия включает стандартные типоразмеры, различающиеся по габаритным размерам (длина, ширина, высота) и диаметру отверстия для пропуска коммуникаций. Например, могут быть модификации с размерами 1000x1000x600 мм, 1200x1200x800 мм и т.д., с отверстиями под трубы диаметром 100, 150, 200 мм. Конкретные параметры указываются в рабочих чертежах серии.

Ответ: Монтаж осуществляется на подготовленное и уплотненное основание из щебня или тощего бетона. Приямк устанавливается строго по проектным отметкам. Стык между приямком и фундаментом/стеной тщательно герметизируется с помощью гидроизоляционных материалов (например, уплотнительными шнурами, герметиками, мастиками). Обязательно выполняется обратная засыпка с послойным уплотнением грунта.

Ответ: Производство приямков серии 3.006 КР-1 ведется в соответствии с ГОСТ и серийной документацией (серия 3.006). На партию продукции предоставляется паспорт изделия, сертификат соответствия требованиям технических регламентов (например, ТР ТС 014/2011 "Безопасность зданий и сооружений"), а также протоколы испытаний бетона на прочность, водонепроницаемость и морозостойкость.

Ранее смотрели
Блоки бетонные Серия 3.503.1-66 Б 2-22-40
Б 2-22-40
Блоки бетонные Серия 3.503.1-66
Тротуарные блоки Серия 3.503.1-61 ТК 4-1,0
ТК 4-1,0
Тротуарные блоки Серия 3.503.1-61
Блоки шахт лифтов Серия 1.089.1-1 БШЛ 100-30-3
БШЛ 100-30-3
Блоки шахт лифтов Серия 1.089.1-1
Вставки Серия 3.015-2 ВВ (ТП 320-55)
ВВ (ТП 320-55)
Вставки Серия 3.015-2
Блоки бетонные Серия 3.503.1-66 Б 2-20-40
Б 2-20-40
Блоки бетонные Серия 3.503.1-66
Столбики бетонные Серия 2.800-2 БС 10 (2.800-2)
БС 10 (2.800-2)
Столбики бетонные Серия 2.800-2
Блоки шахт лифтов Серия 1.089.1-1 БШЛ 100-36-1
БШЛ 100-36-1
Блоки шахт лифтов Серия 1.089.1-1
Кабины санитарно-технические типа "Колпак" Серия 1.188-5 СК 12-11 р (1.188-5)
СК 12-11 р (1.188-5)
Кабины санитарно-технические типа "Колпак" Серия 1.188-5

Уведомление о файлах cookie

Мы используем файлы cookie для улучшения вашего опыта просмотра и анализа трафика. Нажимая "Принять все", вы соглашаетесь с нашей политикой конфиденциальности и политикой обработки файлов cookie.

Дзен Телеграм Вконтакте vk