mobile_sound +7 (930) 655-55-90

Блоки мусорокамер Альбом РМ 2283

Поделиться:
Фильтр по характеристикам
Длина (мм.)
keyboard_arrow_down
мм.
мм.
Ширина (мм.)
keyboard_arrow_down
мм.
мм.
Высота (мм.)
keyboard_arrow_down
мм.
мм.
Вес (кг.)
keyboard_arrow_down
кг.
кг.
Поделиться:

Завод "Бетон365" производит блоки мусорокамер Альбом РМ 2283 — специализированные железобетонные изделия для оборудования мусоропроводов в жилых и коммерческих зданиях. Эти конструкции обеспечивают повышенную пожаробезопасность и гигиеничность, эффективно решая проблему сбора и временного хранения отходов. Изготовленные в строгом соответствии с ГОСТ, блоки отличаются точной геометрией, что упрощает монтаж и обеспечивает герметичность системы.

Мы реализуем блоки мусорокамер РМ 2283 в Москве и МО по выгодной цене от производителя, с гарантией качества и оперативной доставкой на объект. Для заказа и консультации по техническим характеристикам продукции свяжитесь с нашими специалистами — поможем подобрать оптимальное решение для вашего строительного проекта.

БМ 1 (Альбом РМ 2283)
Блоки мусорокамер Альбом РМ 2283
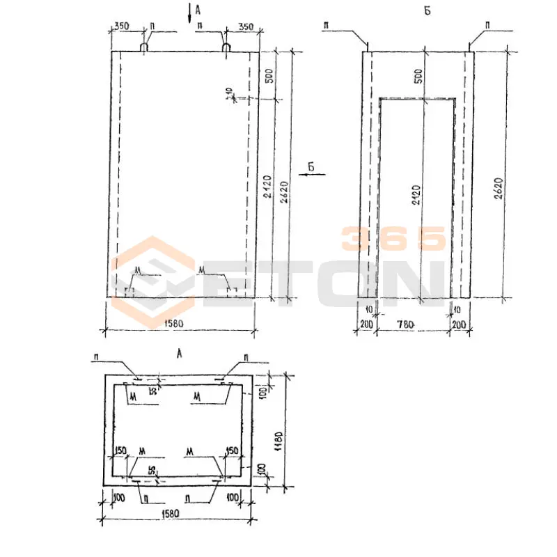
  • Длина 1580 мм.
  • Ширина 1180 мм.
  • Высота 2620 мм.
  • Вес 1730 кг.
  • Объем бетона 0,6917 м3
  • Геометрический объем 4,8847 м3
Цена: 6709 руб.
Подробнее

Как правильно выбрать - Блоки мусорокамер Альбом РМ 2283

Блоки мусорокамер Альбом РМ 2283 представляют собой сборные железобетонные элементы, предназначенные для устройства мусоросборных камер в жилых и общественных зданиях. Они формируют герметичные и долговечные конструкции, обеспечивающие санитарную безопасность и удобство эксплуатации. Прочность и долговечность всей системы зависят от соответствия выбранных блоков проектным требованиям и условиям эксплуатации.

Критерии выбора

  • Марка бетона и прочностные характеристики: Изделия должны изготавливаться из тяжелого бетона марки не ниже М300, что обеспечивает необходимую прочность на сжатие и стойкость к механическим воздействиям.
  • Морозостойкость и водонепроницаемость: Для наружного применения критически важны показатели морозостойкости F150-F200 и водонепроницаемости W6, гарантирующие сохранность конструкции в условиях сезонных перепадов температур и атмосферных осадков.
  • Армирование: Каркас должен быть выполнен из арматурной стали класса А-III, обеспечивающей восприятие нагрузок от давления грунта и мусора.
  • Геометрия и комплектность: Строгое соответствие типоразмерам по серии РМ 2283, наличие монтажных петель и пазов для герметичной стыковки блоков между собой.
  • Наличие закладных деталей: Проверьте наличие и соответствие проекту закладных для крепления люков, дверных коробок и систем вентиляции.

Рекомендации по подбору и монтажу

При закупке блоков мусорокамер РМ 2283 требуйте паспорт качества на партию, где указаны фактические прочностные характеристики бетона и марка стали арматуры. Убедитесь, что поставка комплектная и включает все необходимые доборные элементы согласно спецификации проекта. При проектировании учтите тип грунта и уровень грунтовых вод – при высоком УГВ может потребоваться дополнительная наружная гидроизоляция блоков.

Монтаж блоков мусорокамер Альбом РМ 2283 ведите на подготовленное песчано-щебеночное основание с обязательной проверкой горизонтальности. Стыки между блоками необходимо герметизировать цементно-песчаным раствором с добавками для повышения водонепроницаемости. После установки всех элементов камеры выполните обратную засыпку с послойным трамбованием, чтобы избежать перекоса и неравномерной нагрузки на конструкцию.

Ответы экспертов на ваши вопросы

Блоки мусорокамер по Альбому РМ 2283 предназначены для устройства мусоросборных камер (мусорокамер) в жилых, общественных и промышленных зданиях. Они используются для организации системы удаления твердых коммунальных отходов (ТКО), обеспечивая их временное хранение перед вывозом. Основная область — это встроенные или пристроенные помещения в многоквартирных домах, где требуется соблюдение санитарных и противопожарных норм.

Ключевые преимущества и характеристики включают:

  1. Прочность и долговечность: Изготовлены из тяжелого бетона, что обеспечивает высокую несущую способность и устойчивость к механическим воздействиям.
  2. Огнестойкость: Железобетонная конструкция обладает высокими противопожарными свойствами.
  3. Стандартизация: Изготовление по серийным рабочим чертежам (альбому) гарантирует точность геометрических размеров и совместимость элементов.
  4. Санитарная безопасность: Конструкция позволяет обеспечить герметичность камеры и простоту ее уборки и дезинфекции.
  5. Типовое решение: Использование готового проекта (альбома) ускоряет и удешевляет процесс проектирования и строительства.

Альбом РМ 2283 содержит рабочие чертежи на несколько типоразмеров и модификаций блоков, которые позволяют собирать камеры разного объема и конфигурации. Как правило, в состав входят:

  • Стеновые блоки (прямые и угловые).
  • Блоки перекрытия (плиты).
  • Элементы для устройства загрузочного отверстия с люком.
  • Элементы вентиляции. Точные габаритные размеры (длина, ширина, высота) и маркировку конкретных изделий необходимо уточнять непосредственно в самом альбоме чертежей РМ 2283, так как они могут варьироваться.

При монтаже блоков мусорокамер необходимо учитывать следующие требования и особенности:

  1. Нормативная база: Строительство должно вестись в соответствии с СП (Сводами Правил) на системы мусороудаления, противопожарные нормы и санитарные правила (СанПиН).
  2. Фундамент: Камера устанавливается на подготовленное основание или фундамент, обеспечивающий устойчивость и отвод грунтовых вод.
  3. Герметизация швов: Стыки между блоками должны быть тщательно загерметизированы для предотвращения проникновения запахов и фильтрата в грунт или смежные помещения.
  4. Гидроизоляция: Стены и пол камеры требуют надежной гидроизоляции.
  5. Вентиляция: Обязательно устройство приточно-вытяжной вентиляции согласно проекту для удаления взрывоопасных и вредных газов.
  6. Монтаж: Монтаж осуществляется с помощью грузоподъемной техники. Блоки стыкуются по предусмотренным в проекте схемам.

Основные отличия и преимущества сборной конструкции:

  1. Скорость возведения: Монтаж из готовых блоков происходит в несколько раз быстрее, чем бетонирование монолитной конструкции или кладка из кирпича.
  2. Стабильность качества: Заводское изготовление блоков гарантирует соответствие бетона проектным прочностным характеристикам и точность геометрии.
  3. Снижение трудозатрат: Процесс монтажа менее трудоемок, так как исключаются работы по установке опалубки, армированию и бетонированию на объекте.
  4. Всесезонность: Монтаж можно производить в более широком диапазоне погодных условий по сравнению с "мокрыми" процессами (монолит, кирпичная кладка на растворе).
  5. Типизация: Использование стандартных элементов упрощает проектирование и согласование.
Ранее смотрели
КЦД 10 а (ТП 902-09-46.88)
КЦД 10 а (ТП 902-09-46.88)
Днища колодцев ТП 902-09-46.88
Балки Альбом ПС 103 ДБ 34 (Альбом ПС 103)
ДБ 34 (Альбом ПС 103)
Балки Альбом ПС 103
Балки Альбом ПС 103 ДБ 39 (Альбом ПС 103)
ДБ 39 (Альбом ПС 103)
Балки Альбом ПС 103
Дождеприемник бортовой БО (ТП 902-09-46.88)
Дождеприемник бортовой БО (ТП 902-09-46.88)
Дождеприемники бортовые ТП 902-09-46.88
КЦД 7 (ТП 902-09-46.88)
КЦД 7 (ТП 902-09-46.88)
Днища колодцев ТП 902-09-46.88
Балки Альбом ПС 103 ДБ 29 (Альбом ПС 103)
ДБ 29 (Альбом ПС 103)
Балки Альбом ПС 103
Балки (инд.) ФБ 13-1 а
ФБ 13-1 а
Балки (инд.)
Балки Альбом ПС 103 ДБ 24 (Альбом ПС 103)
ДБ 24 (Альбом ПС 103)
Балки Альбом ПС 103

Уведомление о файлах cookie

Мы используем файлы cookie для улучшения вашего опыта просмотра и анализа трафика. Нажимая "Принять все", вы соглашаетесь с нашей политикой конфиденциальности и политикой обработки файлов cookie.

Дзен Телеграм Вконтакте vk