mobile_sound +7 (930) 655-55-90

Блоки фундаментные сплошные ФБС Серия ИИ 03-02

Поделиться:
Фильтр по характеристикам
Длина (мм.)
keyboard_arrow_down
мм.
мм.
Ширина (мм.)
keyboard_arrow_down
мм.
мм.
Высота (мм.)
keyboard_arrow_down
мм.
мм.
Вес (кг.)
keyboard_arrow_down
кг.
кг.
Поделиться:

Завод "Бетон365" производит фундаментные блоки сплошные ФБС серии ИИ 03-02 – универсальные железобетонные изделия для возведения несущих конструкций в капитальном строительстве. Эти блоки соответствуют строгим требованиям ГОСТ, обеспечивая равномерное распределение нагрузок и создавая жесткое основание для зданий различной этажности. Применение сертифицированных ФБС позволяет значительно сократить сроки монтажа фундаментов и подвальных помещений, гарантируя их многолетнюю надежную эксплуатацию в сложных грунтовых условиях.

В Москве и Московской области вы можете купить фундаментные блоки ФБС серии ИИ 03-02 непосредственно от производителя по конкурентной цене, что обеспечивает существенную экономию без посредников. Мы организуем оперативную доставку на объект и предоставляем полный комплект документов, подтверждающих качество продукции. Для расчета стоимости и получения консультации по техническим характеристикам обратитесь к нашим специалистам.

СП 5 с
Блоки фундаментные сплошные ФБС Серия ИИ 03-02
  • Длина 2380 мм.
  • Ширина 500 мм.
  • Высота 580 мм.
  • Вес 1630 кг.
  • Объем бетона 0,679 м3
  • Геометрический объем 0,6902 м3
Цена: 6257 руб.
Подробнее
СП 3 с
Блоки фундаментные сплошные ФБС Серия ИИ 03-02
  • Длина 2380 мм.
  • Ширина 300 мм.
  • Высота 580 мм.
  • Вес 975 кг.
  • Объем бетона 0,407 м3
  • Геометрический объем 0,4141 м3
Цена: 3751 руб.
Подробнее
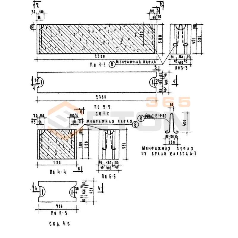
СП 4 с
Блоки фундаментные сплошные ФБС Серия ИИ 03-02
  • Длина 2380 мм.
  • Ширина 400 мм.
  • Высота 580 мм.
  • Вес 1300 кг.
  • Объем бетона 0,542 м3
  • Геометрический объем 0,5522 м3
Цена: 4995 руб.
Подробнее
СП 6 с
Блоки фундаментные сплошные ФБС Серия ИИ 03-02
  • Длина 2380 мм.
  • Ширина 600 мм.
  • Высота 580 мм.
  • Вес 1960 кг.
  • Объем бетона 0,817 м3
  • Геометрический объем 0,8282 м3
Цена: 7529 руб.
Подробнее
СПД 3 с
Блоки фундаментные сплошные ФБС Серия ИИ 03-02
  • Длина 780 мм.
  • Ширина 300 мм.
  • Высота 580 мм.
  • Вес 305 кг.
  • Объем бетона 0,128 м3
  • Геометрический объем 0,1357 м3
Цена: 1180 руб.
Подробнее
СПД 4 с
Блоки фундаментные сплошные ФБС Серия ИИ 03-02
  • Длина 780 мм.
  • Ширина 400 мм.
  • Высота 580 мм.
  • Вес 413 кг.
  • Объем бетона 0,172 м3
  • Геометрический объем 0,181 м3
Цена: 1585 руб.
Подробнее
СПД 5 с
Блоки фундаментные сплошные ФБС Серия ИИ 03-02
  • Длина 780 мм.
  • Ширина 500 мм.
  • Высота 580 мм.
  • Вес 520 кг.
  • Объем бетона 0,216 м3
  • Геометрический объем 0,2262 м3
Цена: 1990 руб.
Подробнее
СПД 6 с
Блоки фундаментные сплошные ФБС Серия ИИ 03-02
  • Длина 780 мм.
  • Ширина 600 мм.
  • Высота 580 мм.
  • Вес 618 кг.
  • Объем бетона 0,257 м3
  • Геометрический объем 0,2714 м3
Цена: 2368 руб.
Подробнее
СПД 4-1
Блоки фундаментные сплошные ФБС Серия ИИ 03-02
  • Длина 1180 мм.
  • Ширина 400 мм.
  • Высота 290 мм.
  • Вес 317 кг.
  • Объем бетона 0,132 м3
  • Геометрический объем 0,1369 м3
Цена: 1216 руб.
Подробнее
СПД 5-1
Блоки фундаментные сплошные ФБС Серия ИИ 03-02
  • Длина 1180 мм.
  • Ширина 500 мм.
  • Высота 290 мм.
  • Вес 396 кг.
  • Объем бетона 0,165 м3
  • Геометрический объем 0,1711 м3
Цена: 1520 руб.
Подробнее
СПД 6-1
Блоки фундаментные сплошные ФБС Серия ИИ 03-02
  • Длина 1180 мм.
  • Ширина 600 мм.
  • Высота 290 мм.
  • Вес 478 кг.
  • Объем бетона 0,199 м3
  • Геометрический объем 0,2053 м3
Цена: 1834 руб.
Подробнее

Как правильно выбрать - Блоки фундаментные сплошные ФБС Серия ИИ 03-02

Блоки фундаментные сплошные ФБС Серия ИИ 03-02 предназначены для возведения сборных ленточных фундаментов, стен подвалов и технических подпольев зданий различного назначения. Эти железобетонные изделия выполняют ключевую несущую функцию, воспринимая и распределяя нагрузки от вышележащих конструкций на основание. Долговечность и устойчивость всего здания определяются точным соответствием характеристик блоков ФБС проектным расчетам и конкретным грунтовым условиям.

Критерии выбора

  • Марка бетона и прочность: Блоки изготавливаются из тяжелого бетона класса не ниже В12.5 (марка М150) или В15 (М200), что обеспечивает необходимую прочность на сжатие. Обязательно уточняйте требуемый класс в проектной документации.
  • Морозостойкость и водонепроницаемость: Для большинства регионов России критически важна морозостойкость F100-F200. Водонепроницаемость бетона (W4-W6) является ключевым параметром для фундаментов, контактирующих с грунтовыми водами.
  • Типоразмеры и геометрия: Серия ИИ 03-02 регламентирует строгие габариты блоков (длина, ширина, высота). Проверяйте соответствие заказываемых типоразмеров спецификации и наличие монтажных петель для безопасной строповки.
  • Эксплуатационные нагрузки: Убедитесь, что расчетная нагрузка на блоки ФБС соответствует весу здания и характеристикам грунтов основания (несущая способность, пучинистость).
  • Соответствие нормативам: Изделия должны производиться в строгом соответствии с ГОСТ 13579-78 и требованиями серии ИИ 03-02, что подтверждается паспортом качества.

Рекомендации по подбору и монтажу

При составлении спецификации на блоки фундаментные сплошные ФБС Серия ИИ 03-02 обязательно учитывайте геологию участка. На водонасыщенных грунтах или при высоком УГВ приоритет следует отдавать блокам с повышенной маркой по водонепроницаемости (W6). Тщательно проверяйте сопроводительную документацию на партию, обращая внимание на дату изготовления (прочность бетона набирается со временем) и результаты контрольных испытаний.

Монтаж блоков ФБС ведется на предварительно выровненное и уплотненное основание (песчаная подготовка) с обязательной перевязкой швов, как в кирпичной кладке. Первый ряд укладывается на цементно-песчаный раствор толщиной не менее 20 мм. Вертикальные швы также заполняются раствором. Критически важно обеспечить точное позиционирование блоков по осям и горизонтальному уровню, так как исправить ошибки после укладки практически невозможно. Для повышения пространственной жесткости конструкции через 2-3 ряда рекомендуется устройство армопояса.

Ответы экспертов на ваши вопросы

Использование ФБС по серии ИИ 03-02 имеет несколько ключевых преимуществ:

  1. Скорость возведения: Монтаж фундамента из готовых блоков происходит в несколько раз быстрее, чем заливка монолита, что сокращает общие сроки строительства.
  2. Отсутствие "мокрых" процессов: Не требуется время на набор прочности бетоном (28 суток), работы можно вести практически в любую погоду.
  3. Стабильность качества: Блоки изготавливаются в заводских условиях с строгим контролем качества, что гарантирует их проектную прочность и геометрию.
  4. Возможность ведения работ в зимний период: Монтаж блоков возможен при отрицательных температурах, в то время как монолитные работы требуют специальных мер (прогрев, противоморозные добавки).
  5. Снижение трудозатрат на объекте.

Фундаментные блоки ФБС по серии ИИ 03-02 являются универсальными и применяются для устройства ленточных фундаментов и стен подвалов практически на всех типах грунтов, кроме особо проблемных:

  • Рекомендуемые грунты: Супеси, суглинки, глины, песчаные грунты средней и высокой плотности.
  • Для каких зданий: Блоки предназначены для возведения фундаментов малоэтажных жилых домов, коттеджей, хозяйственных построек, гаражей, а также для стен технических подполий и подвалов. Они рассчитаны на нагрузку от зданий со стенами из кирпича, блоков (газобетон, пенобетон) и других штучных материалов.

Не рекомендуется применять на просадочных грунтах II типа, набухающих грунтах и в сейсмических районах без дополнительного расчета и конструктивных усилений, предусмотренных проектом.

Выбор марки бетона и размера блока регламентируется проектом, который разрабатывается на основе геологических изысканий и расчетных нагрузок.

  1. Марка бетона:
    • F50 (стандартная) – подходит для большинства грунтов с нормальной агрессивностью.
    • F75, F100, F150, F200 – применяются в условиях повышенной влажности и при воздействии агрессивных грунтовых вод. Чем выше цифра, тем выше морозостойкость.
    • W2 (стандартная водонепроницаемость) – для сухих грунтов.
    • W4, W6 – для грунтов с высоким уровнем грунтовых вод.
  2. Размер блока:
    • Стандартные размеры по длине: 880 мм, 1180 мм, 2380 мм.
    • По ширине (толщине стены): 300, 400, 500, 600 мм. Ширина выбирается исходя из толщины стены здания и несущей способности грунта.
    • По высоте: 580 мм. Ключевой принцип – перевязка швов (как в кирпичной кладке). Поэтому в проекте всегда используется несколько типоразмеров блоков (например, основной и доборный).

Монтаж должен производиться в строгом соответствии с проектом и СП (Сводами Правил). Основные требования:

  1. Подготовка основания: Устройство песчаной или песчано-гравийной подушки толщиной 100-200 мм с обязательным послойным уплотнением.
  2. Гидроизоляция: Перед укладкой первого ряда блоков на подготовленное основание укладывается слой рулонной гидроизоляции (например, рубероид).
  3. Кладочный раствор: Монтаж ведется на цементно-песчаный раствор марки не ниже М50. Толщина горизонтальных швов должна быть 10-15 мм, вертикальных – 8-15 мм.
  4. Перевязка швов: Вертикальные швы каждого последующего ряда должны перекрываться блоками вышележащего ряда. Минимальная величина перевязки – 250 мм (0,25 высоты блока).
  5. Контроль геометрии: Обязателен постоянный контроль вертикальности стен и горизонтальности рядов с помощью уровня и отвеса.
  6. Заделка монтажных петель: После монтажа стальные монтажные петли должны быть загнуты и замоноличены.

Несмотря на массу преимуществ, у сборного фундамента из ФБС есть свои недостатки и ограничения:

  1. Не монолитность: Фундамент состоит из отдельных элементов, что делает его менее устойчивым к неравномерным деформациям грунта по сравнению с монолитной лентой. На нестабильных грунтах (торф, плывуны) требуется устройство монолитного пояса поверх блоков или сплошного монолитного фундамента.
  2. Наличие швов: Швы между блоками являются потенциальным местом проникновения влаги, поэтому требуется тщательная гидроизоляция всей поверхности фундамента.
  3. Необходимость в грузоподъемной технике: Для монтажа блоков требуется кран, что увеличивает стоимость работ и требует наличия подъездных путей.
  4. Высокая теплопроводность: Бетон хорошо проводит холод, поэтому фундамент из ФБС требует обязательного утепления для комфортного проживания в доме с подвалом.
  5. Ограниченная номенклатура: Стандартные размеры блоков не всегда позволяют идеально вписаться в план здания, часто требуются доборные элементы или резка блоков.
Ранее смотрели
Дождеприемник бортовой БО (ТП 902-09-46.88)
Дождеприемник бортовой БО (ТП 902-09-46.88)
Дождеприемники бортовые ТП 902-09-46.88
КЦД 7 (ТП 902-09-46.88)
КЦД 7 (ТП 902-09-46.88)
Днища колодцев ТП 902-09-46.88
Балки Альбом ПС 103 ДБ 29 (Альбом ПС 103)
ДБ 29 (Альбом ПС 103)
Балки Альбом ПС 103
Балки (инд.) ФБ 13-1 а
ФБ 13-1 а
Балки (инд.)
Балки Альбом ПС 103 ДБ 24 (Альбом ПС 103)
ДБ 24 (Альбом ПС 103)
Балки Альбом ПС 103
Балки Альбом ПС 192 ДБ 44
ДБ 44
Балки Альбом ПС 192
Блоки бетонные ТПР 709-09-29.84 ФБС 12-4-6 ти (ТПР 709-09-29.84)
ФБС 12-4-6 ти (ТПР 709-09-29.84)
Блоки бетонные ТПР 709-09-29.84
Блоки бетонные ТПР 709-09-29.84 ФБС 24-4-6 ти (ТПР 709-09-29.84)
ФБС 24-4-6 ти (ТПР 709-09-29.84)
Блоки бетонные ТПР 709-09-29.84

Уведомление о файлах cookie

Мы используем файлы cookie для улучшения вашего опыта просмотра и анализа трафика. Нажимая "Принять все", вы соглашаетесь с нашей политикой конфиденциальности и политикой обработки файлов cookie.

Дзен Телеграм Вконтакте vk