mobile_sound +7 (930) 655-55-90

Балки подкладочные Серия 1.100.1-7

Поделиться:
Фильтр по характеристикам
Длина (мм.)
keyboard_arrow_down
мм.
мм.
Ширина (мм.)
keyboard_arrow_down
мм.
мм.
Высота (мм.)
keyboard_arrow_down
мм.
мм.
Вес (кг.)
keyboard_arrow_down
кг.
кг.
Поделиться:

Завод "Бетон365" производит балки подкладочные серии 1.100.1-7 — специализированные железобетонные изделия, которые служат надежной опорой для подкрановых путей в промышленных зданиях. Эти конструкции изготавливаются из тяжелого бетона высоких марок с соблюдением требований ГОСТ, что гарантирует их устойчивость к динамическим нагрузкам и агрессивным производственным условиям. Применение готовых балок позволяет равномерно распределять давление от движущихся кранов, предотвращая деформацию фундамента и значительно ускоряя монтаж промышленных объектов.

Мы реализуем балки подкладочные серии 1.100.1-7 напрямую от производителя в Москве и Московской области по конкурентным ценам. Предлагаем полный комплекс услуг — от помощи в выборе оптимальных решений до оперативной доставки на вашу строительную площадку. Все изделия сопровождаются сертификатами качества и паспортами. Чтобы уточнить стоимость и оформить заказ, свяжитесь с нашими специалистами!

ПБ 15-15-20 л
Балки подкладочные Серия 1.100.1-7
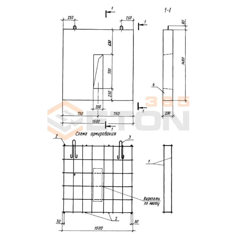
  • Длина 1500 мм.
  • Ширина 1480 мм.
  • Высота 200 мм.
  • Вес 480 кг.
  • Объем бетона 0,42 м3
  • Геометрический объем 0,444 м3
Цена: 18333 руб.
Подробнее

Как правильно выбрать - Балки подкладочные Серия 1.100.1-7

Балки подкладочные Серия 1.100.1-7 предназначены для использования в качестве опорных элементов под железобетонные лотки теплотрасс, каналов и других подземных инженерных коммуникаций. Их ключевая функция — обеспечение стабильного и надежного основания, распределяющего нагрузку от вышележащих конструкций на грунтовое основание. Долговечность и безопасность всей системы зависят от точного соответствия характеристик балок проектным нагрузкам и специфическим условиям строительной площадки.

Критерии выбора

  • Марка бетона и прочность: Изделия изготавливаются из тяжелого бетона марки не ниже М300 (класс прочности на сжатие В22,5), что обеспечивает необходимую несущую способность.
  • Эксплуатационные характеристики бетона: Обращайте внимание на морозостойкость (F200) и водонепроницаемость (W6), критически важные для работы в условиях переменного уровня грунтовых вод и сезонного промерзания.
  • Армирование: Каркас выполняется из стальной арматуры классов А-I и А-III, что гарантирует стойкость к изгибающим моментам и трещиностойкость.
  • Геометрические параметры: Строго сверяйте типоразмеры (длину, высоту, ширину) и конфигурацию, указанные в серии 1.100.1-7, с проектными чертежами для обеспечения точной стыковки с лотками.
  • Наличие монтажных петель: Убедитесь в наличии и корректном расположении закладных деталей или монтажных петель для безопасной и удобной строповки.
  • Нормативный документ: Все балки должны соответствовать требованиям рабочих чертежей серии 1.100.1-7 и ГОСТ на железобетонные конструкции общего назначения.

Рекомендации по подбору и монтажу

При составлении спецификации на балки подкладочные Серия 1.100.1-7 обязательно учитывайте геологию участка: тип и несущую способность грунта, уровень агрессивности грунтовых вод. Это влияет на выбор марки бетона по водонепроницаемости и необходимость дополнительной гидроизоляции. Запросите у производителя паспорта качества на партию, где указаны фактические прочностные характеристики бетона и результаты контроля арматурных каркасов.

Монтаж балок подкладочных должен производиться на тщательно выровненное и уплотненное песчано-гравийное основание. Контролируйте горизонт укладки с помощью нивелира, так как даже незначительный перекос может привести к неравномерной нагрузке на лотки и их преждевременному разрушению. Перед обратной засыпкой убедитесь, что все опорные поверхности лотков плотно прилегают к балкам, не образуя пустот.

Ответы экспертов на ваши вопросы

Ответ: Основное назначение балок подкладочных серии 1.100.1-7 – это устройство опорных конструкций под рельсовые пути кранового оборудования (как правило, мостовых и подвесных кранов) в промышленных зданиях и сооружениях. Они служат для восприятия и передачи нагрузок от движущихся кранов на подкрановые балки и далее на колонны каркаса здания.

Ответ: Балки данной серии изготавливаются из тяжелого бетона классов по прочности на сжатие В30-В35 и армируются предварительно напряженной арматурой (стержневой или проволочной). Основные преимущества: высокая прочность и трещиностойкость благодаря предварительному напряжению, долговечность, устойчивость к динамическим и вибрационным нагрузкам, а также стандартизированные размеры, что упрощает проектирование и монтаж.

Ответ: Балки серии 1.100.1-7 рассчитаны на восприятие вертикальных и горизонтальных нагрузок от кранов определенной грузоподъемности (например, 5т, 10т, 20т и т.д.) и группы режима работы крана (например, 1К-6К). Подбор конкретной марки балки осуществляется по рабочим чертежам серии на основе расчетных нагрузок, пролета (шага колонн) и других параметров, приведенных в таблицах серии.

Ответ: В серии предусмотрены балки различной длины (например, 6м) и ширины. Маркировка балки, например, БП1, расшифровывается следующим образом: "БП" – балка подкладочная, а цифра указывает на типоразмер и несущую способность. Полная марка включает в себя серию и выбранный тип, например, 1БП-1 (для кранов 5т) или 1БП-5 (для кранов 20т). Точные геометрические параметры (высота, ширина, длина) и масса указываются в спецификациях и альбомах чертежей серии.

Ответ: При монтаже необходимо обеспечить точное выверенное положение балок по осям и высотным отметкам, надежное анкерование к подкрановым балкам. Крепление рельсов к балкам выполняется с помощью специальных скоб или болтов через предусмотренные отверстия. При эксплуатации важно регулярно проверять состояние бетона (отсутствие сколов, трещин), целостность арматуры и надежность креплений рельсов, особенно в условиях интенсивной вибрационной нагрузки.

Ранее смотрели
КЧ 11-17-16-150 т
КЧ 11-17-16-150 т
Контрфорсы Серия 1.169.1-1
Межколонные плиты (МП) Серия 1.420.1-25 МП 1-1
МП 1-1
Межколонные плиты (МП) Серия 1.420.1-25
РПС 18-3 с
РПС 18-3 с
Полурамы Серия 1.822.1-2/82
Откосные стенки Серия 3.501.1-179.94 СТ 8 п
СТ 8 п
Откосные стенки Серия 3.501.1-179.94
РПС 12-37,5-4 АтIVс
РПС 12-37,5-4 АтIVс
Полурамы Серия 1.822.1-6
Рабочие камеры Альбом РК 2201-82 ВГ 15
ВГ 15
Рабочие камеры Альбом РК 2201-82
Стойки железобетонные серия 3.407.1-136; серия 3.407.1-143 СВ 164-2
СВ 164-2
Стойки железобетонные серия 3.407.1-136; серия 3.407.1-143
РПС 18-5 с
РПС 18-5 с
Полурамы Серия 1.822.1-2/82

Уведомление о файлах cookie

Мы используем файлы cookie для улучшения вашего опыта просмотра и анализа трафика. Нажимая "Принять все", вы соглашаетесь с нашей политикой конфиденциальности и политикой обработки файлов cookie.

Дзен Телеграм Вконтакте vk